Bagno e lavanderia

2 bagni nuovi e più funzionali con pochi lavori

Un progetto a cui ispirarsi per sfruttare meglio lo spazio in bagno. Una coppia di lettori ha acquistato una casa con due bagni, di uguale metratura ma diversi per pianta: ecco i progetti dell’architetto CF style per rispondere alle loro richieste

La casa dei nostri lettori ha già due bagni che, però, sono datati e male organizzati. Il bagno padronale è grande (cm 320x175), rettangolare, con vasca, sanitari e lavabo, ma si affaccia direttamente sull’ingresso. La richiesta è di ‘isolarlo’ con un antibagno che serva da filtro. Il secondo bagno, quasi quadrato, è di uso esclusivo della camera matrimoniale: i proprietari vogliono eliminare la lavatrice e aumentare così lo spazio contenitivo. Ecco i progetti del nostro architetto CF Style Manuela Merolla.

I PROGETTI

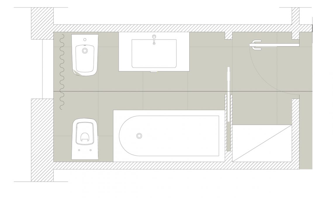
BAGNO 1:
  • Si riduce leggermente la lunghezza del locale per creare un antibagno da cm 175x80, nel quale viene inserita un’armadiatura che può ospitare anche la lavatrice che, così, non sarà più a vista nell’altro bagno.
  • Il bagno vero e proprio ora misura cm 175x230 e, per mantenere la presenza della vasca (così come richiesto dai proprietari), prevede che i sanitari non siano più affiancati ma uno di fronte all’altro. Il vaso rimane nella sua posizione, mentre il bidet viene spostato accanto al mobile lavabo, ora più vicino alla porta di ingresso al locale (che è un modello scorrevole a scomparsa affinché non si creino scomodi ingombri in fase di apertura).
BAGNO 2:
  • La soluzione proposta richiede pochi ma sostanziali lavori. Tolti i sanitari esistenti, si mantengono tutti gli attacchi e gli scarichi delle acque nella posizione attuale.
  • La piccola doccia monoblocco stondata è sostituita da un piatto filo pavimento e da un box in cristallo da cm 90x100. Al posto del lavabo a colonna, ora c’è un mobile sospeso con cassetti e specchiera più lavabo integrato.
  • Le varie zone del locale vengono personalizzate con rivestimenti in ceramica di dimensioni e tonalità diverse di bianco e grigio.

Puoi scrivere all’architetto Manuela Merolla all’indirizzo [email protected]

Vuoi anche tu una consulenza da un architetto CF Style? Clicca su » professionisti.casafacile.it e trovi la lista completa, divisa per zone d’Italia.
 
Testi

Elena Favetti

Progetto

arch. Manuela Merolla

Ti potrebbe interessare