In questo bilocale milanese di 70 mq vivono Beatrice, matematica, e la sua cagnolona Cora. Gli spazi sono stati rivoluzionati: ora il living
ha 4 finestre rivolte a Ovest. In questo modo l’ambiente è
luminoso tutto il giorno, anche grazie al guscio creato dalle pareti e
dai pavimenti nello stesso bianco caldo (codice RAL 9001) che
riveste anche porte e finestre. Sul divano modulare [G.R. Salotti], cuscini
Atelier e Bahia in lino [Élitis]; sul
tappeto Post Icon in pura lana
[Kasthall],
tavolini vintage acquistati al
mercatino dell’usato [La Tienda a
Dervio].
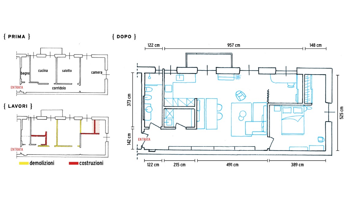
La pianta delle demolizioni e costruzioni e il nuovo progetto. Prima la casa aveva una
divisione rigida in 3 ambienti
serviti da un lungo corridoio
e questo li rendeva molto
piccoli e poco luminosi.
Eliminando i divisori, la luce
è stata liberata! (disegni di Sofia Marella)
La moodboard è a tema 'favole e animali': natura e grafica
giocano da padrone in questa casa
a partire da colori, forme e pattern
che danno vita agli ambienti. «I colori che
definiscono i volumi
sono quelli amati da
Beatrice: sono caldi e
si abbinano bene al
legno di betulla dei
mobili minimali
che abbiamo
disegnato per lei»
dice Linda Greco
di Studio Falù.
La prospettiva del living verso la cucina. Copia l'idea di una panca con lampada ad
arco fissata a
parete: ha anche
il ruolo di creare
un movimento
tridimensionale. Tavolo e panca realizzati
artigianalmente su disegno di Studio Falù in
multistrato di betulla spesso 3 cm con
finitura in smalto all’acqua effetto naturale. Sul top zuppiera [Frutta e Lettura] più
vasi [Nap Atelier
e Zara Home]; sedie vintage acquistate al
mercatino dell’usato [La Tienda di Dervio],
lampada da parete Hanging Lamp N° 3
color bordeaux [Valerie Objects]. Quadri e poster in
tutta la casa [Archivi Vitali]. Idropittura
verde sulle pareti codice NCS S 4010 G70Y.
Per isolare lo studio è stata scelta una porta tessile che
con un gesto crea un effetto 3D. Porta tessile in tessuto Sp Mag colore 6018 dotata di binario a soffitto,
accessori e maniglia bianchi [Dooor, cm 200x298h]. A terra
linoleum Marmoleum Cocoa in colore White chocolate [Forbo]. Poltroncina rossa e mobile toeletta acquistati al
mercatino dell’usato [La Tienda a
Dervio]. Le piante in tutta
la casa sono di [Fratelli Ingegnoli].
Lo studio è anche una camera jolly, grazie al soppalco con letto sopra la libreria, realizzato su disegno di Studio
Falù da [Abet]. Sotto la finestra, piano scrittoio realizzato su disegno di Studio Falù, sedia vintage acquistata al mercatino dell’usato
[La Tienda a Dervio]. Idropittura sulle pareti codice RAL 9001 e
su pareti e soffitto dell’alcova del letto codice colore NCS S 4040 Y80R.
Tende Ready Made Curtain in misto lino e cotone [Kvadrat].
La cucina era abitabile ma fin
troppo grande e rubava
metri quadri utili al soggiorno,
che era molto sacrificato. La
realizzazione dell’open space
ha permesso di ridistribuire
gli spazi in modo più funzionale
senza rinunciare né a
una comoda zona pranzo né
a un’ampia area cottura.
In ingresso, subito dopo il bagno è stato creato
un ripostiglio-lavanderia che cela la cucina alla
vista di chi entra. Questa, organizzata a C, ha un
intero lato a colonne realizzate in multistrato
rivestito in linoleum verde oliva: «È uno dei colori
preferiti di Beatrice», raccontano le architette,
«così abbiamo pensato di stenderlo anche sulle
pareti esterne del blocco servizi per dare rilievo e
un’atmosfera avvolgente anche alla zona pranzo.
Per questa abbiamo anche disegnato tavolo
e panca, minimali con un tocco nordico grazie al
legno lasciato al naturale».
Le colonne della cucina arrivano fino al soffitto: sono
talmente contenitive da poter eliminare i pensili sugli altri lati. Cucina realizzata dal falegname su disegno di Studio Falù con basi a L con ante in multistrato di betulla e fronte rivestito in linoleum
desktop colore 4176 Mushroom e top in Silestone Faro White Suede, più
colonne con ante in multistrato e fronte rivestito in linoleum desktop
colore 4184 olive [linoleum di Forbo]. Sul top, salsiera vintage e
oggettistica [Frutta e Lettura]. Tappeto Cubrick Icon in lana [Kasthall].
Per la mise en place: tovaglia e tovaglioli in
lino [La Fabbrica del lino], piatti con decoro di fiori e piante ottanio
[Laboratorio Paravicini], sottopiatti bianchi [Excelsa], bicchieri
[Zara Home], posate e piattino vintage acquistati da [Mercatino La
Tienda di Dervio], zuppiera vintage. Piante [Fratelli Ingegnoli].
La stanza padronale era di
ben 20 mq e portava via
spazio al soggiorno. Invece
di mantenerla uguale e di
ricavare qui una zona office,
è stata rimpicciolita per
dare vita allo studio nel living.
La ristrutturazione ha dato alla
camera una nuova forma, più
funzionale: accanto alla porta c’è
il letto e, dietro la testata, una
quinta e il pianale in cartongesso
del soppalco dello studio hanno
permesso di creare una cabina
con armadio da cm 200x60x201h
chiuso da due ante scorrevoli.
Letto con struttura in metallo che si allarga da 90 a 180 cm
grazie alla rete a doghe sdoppiabile [Moebe, cm 180x180x39h],
vestito con lenzuola in lino giallo [Fazzini], plaid grigio [Zara
Home] e cuscini Twist e Bahia [Élitis]; comodino vintage da [La Tienda di Dervio],
con lampada da tavolo Oket in metallo e ottone satinati [Aromas del
Campo].
La
zona sopra
l’armadio
accoglie il
soppalco con il
letto dello studio. I pannelli scorrevoli sono in
multistrato di betulla rivestiti in Linoleum Furniture colore Olive realizzati
su disegno di Studio Falù [cm 105+105x3x188h], interno realizzato con sistema armadio Pax bianco
[Ikea].
Sul mobile vetrina vintage acquistato al mercatino
dell’usato [La Tienda di Dervio], vasi in vetro [da Nap Atelier]. Idropittura verde sulle pareti codice NCS S 4010 G70Y.
ll bagno stretto e lungo
aveva addirittura la vasca
che costringeva in fondo
sanitari e lavabo. Ora gli
elementi sono organizzati
per essere fruibili al meglio. Sanitari della serie Comoda [Azzurra
Ceramica], box doccia con profili in acciaio inox satinato [Aisi Design], rubinetteria serie Source in acciaio
inox satinato [Quadro Design], piastrelle Cromatica colori Citrus e Superbranco Soft [Revigres].
Anche se largo solo 124 cm, con
la nuova organizzazione il bagno
risulta più ampio: i sanitari
compatti rendono più facilmente
accessibile la maxi doccia e la
nicchia del lavabo ha guadagnato
un lungo pensile a specchio. Sul mobile acquistato da [La Tienda a Dervio] con top e pensile in multistrato di betulla realizzati su disegno
di Studio Falù, lavabo [Ceramica Cielo], asciugamano bianco [Fazzini].
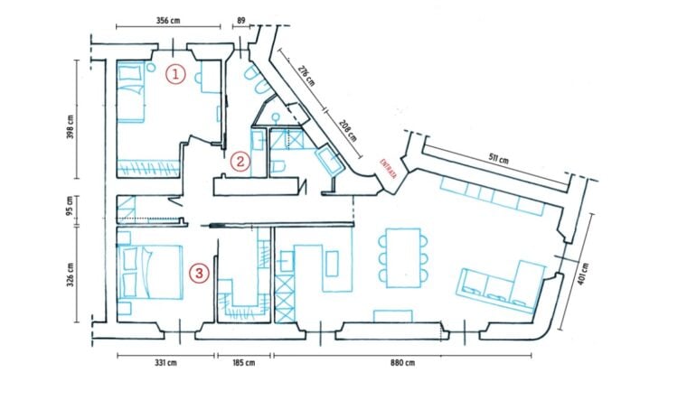
Come guadagnare metri quadri e luce in un classico 2 locali? Eliminando corridoio e stanze piccole, in favore di nuovi spazi per living e studio in cui le armadiature definiscono gli ambienti
«Con Beatrice è stato un vero colpo di fulmine. Ci ha contattate dopo averci studiate su Instagram» dice l’architetta Linda Greco, «e noi ci siamo innamorate del grande entusiasmo con cui guardava al mondo e alla sua nuova casa».
Le scelte fatte
L’obiettivo era rendere gli ambienti più ampi e conviviali, più funzionali e luminosi. «Tolte le rigide partizioni iniziali e il lungo corridoio abbiamo creato un ampio living da vivere in compagnia o anche da soli in totale relax, oltre a camera con angolo cabina e lavanderia che si aggiunge al bagno esistente» spiega l’architetta.
I volumi dell’area servizi e della stanza da letto danno vita a una zona giorno a T che ha nel corpo centrale salotto e pranzo e nelle due ali cucina e studio, a vista ma... non troppo! Lo studio non solo si può chiudere con una porta tessile, ma sulla parete di fondo ha un letto per gli ospiti sul soppalco in cartongesso, che sotto accoglie una libreria per lo studio e un armadio.
Il tocco di stile
I colori e le finiture scandiscono gli spazi: il verde sottolinea il volume di pranzo- cucina e camera-armadio, il rosso la nicchia del soppalco, il giallo senape il bagno, mentre il crema avvolge le pareti e persino il pavimento; e il linoleum da terra raggiunge le ante dei mobili su misura in betulla.
Cristina Gigli ha curato lo styling per il servizio fotografico con tessili dalle texture 3D e dai pattern grafici, più oggetti scultorei che completano gli arredi vintage collezionati da Beatrice e acquistati nel mercatino dove fa volontariato.
progetto: Studio Falù foto: Giandomenico Frassi testi: Elena Favetti