«La presenza di travi a vista e di graniglie a terra ci ha spinti a osare con il colore: alcune strutture e la scala sono in metallo tinto rosso come le gambe del tavolo da pranzo. A contrasto, gli altri arredi sono in tinte soft».
Il soppalco era già presente ma era addossato alla parete e raggiungibile attraverso una scala a pioli: praticamente non veniva mai utilizzato. Anche la mancanza di una finestra in falda lo rendeva
poco pratico e privo di una funzione utile.
Scala in lamiera metallica e balaustra del soppalco realizzate su disegno di Matca Studio [Enrico Pistoia]. Mobile tv in legno realizzato su disegno di Matca Studio da [Woodlab74].
Accanto al divano Monopoli di [Désirée] come il pouf giallo, tavolino Lövbacken [Ikea, cm 77x39x51h]; a parete applique IO blu a luce direzionabile ruotando il paralume in metallo [FontanaArte, ø cm 16,5x10,5].
Tavolo da lavoro con base in metallo tinto rosso e piano in legno acquistato da [Estremi Roma] con sedie Odger in plastica e legno, qui
in azzurro ma oggi disponibili soltanto in antracite, beige e rosso [Ikea].
Il soppalco in legno esistente era in ottimo stato ma in una posizione poco utile. Fissando dei nuovi profili in ferro a L (poi laccati in rosso come la ringhiera) alle pareti laterali a 245 cm d’altezza, struttura e assito sono stati letteralmente traslati di 60 cm verso il centro della stanza in modo da poter inserire nel nuovo spazio libero la scala sospesa, sempre in ferro rosso e con parapetto a tondini, disegnata da Matca Studio. Ora sopra
c’è una zona relax-lettura tutta nuova, tutta da sfruttare.
Divano componibile con pouf quadrati e cuscini simile a Madurai di [Maisons du Monde, cm 195x95x82h + cm 100x100x42h], sedia a dondolo Eames RE RAR [Vitra, cm 52x81x76h]. Finestra da tetto manuale con apertura a bilico Velux GGL in legno naturale con vetrata standard stratificata [Velux, cm 55x78].
Una vecchia scaffalatura, poco capiente, si trovava sulla parete opposta rispetto a quella sulla quale ora è stata posizionata una libreria visivamente leggera con montanti in metallo e ripiani in mdf, qui in finitura Black Jade. Oltre a essere molto spaziosa, riprende nella geometria e nel colore la greca delle cementine a pavimento e il disegno di parete e porta in ferro e vetro che dividono il living dalla cucina: anche questo accordo aiuta a creare una sensazione di ordine nell’ambiente.
Cucina modello K105 in laccato bianco e rovere [Zecchinon], sospensioni realizzate con elementi di [Creative Cables],
panca in legno realizzata su disegno di Matca Studio da [Woodlab74], tavolino bistrot In Between [&tradition,
ø cm 60x73h], libreria pensile Crossing [Kriptonite].
Soggiorno e cucina prima erano del tutto separati: così per portare in tavola i piatti era necessario passare dall’ingresso; in più i due locali godevano solo della luce che entrava dalle rispettive finestre. Adesso
gli ambienti sono comunicanti, si è mantenuta solo parte del vecchio tramezzo, che per metà diventa un muretto sormontato da una finestra e si conclude con una porta scorrevole in metallo e vetro.
Il soppalco è una grande risorsa se si crea un collegamento comodo con la stanza sotto e si ricava una finestra nel tetto. Scopri tutto in questo progetto dallo spirito informale!
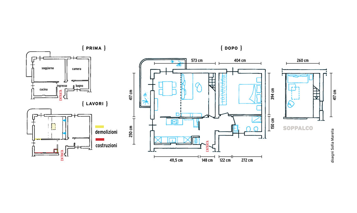
A Roma dietro le Terme di Caracalla c’è il rione San Saba, degli Anni ’20 con palazzine di 3, 4 piani dai grandi cortili interni. È in uno di questi condomini che abita Denise, all’ultimo piano in un appartamento che in soggiorno gode di doppia altezza e ha bellissime travi a vista; c’è anche un soppalco che però è poco più di un magazzino, dato che vi si sale solo con una scala a pioli. Per non parlare della cucina lunga, stretta e separata da living: Denise vorrebbe creare uno spazio più accogliente e conviviale. Così si affida a Matca Studio – 17 Metri Quadri che riesce letteralmente a moltiplicare lo spazio, soprattutto nella zona giorno.
Le scelte fatte
«Per prima cosa abbiamo pensato di spostare il soppalco» dice l’architetto Tania Castagno. «Per renderlo facilmente accessibile è stato traslato di 60 cm verso il centro della stanza in modo da inserire lungo la parete una scala sospesa in metallo che abbiamo fatto realizzare su disegno. In più, chiesti i permessi, abbiamo aggiunto una finestra sul tetto per aumentare anche la luminosità». Tra ingresso, cucina e soggiorno sono state realizzate delle aperture rifinite in ferro e vetro: danno la sensazione che gli ambienti siano un open space pur rendendoli divisibili all’occorrenza.
Il tocco di stile
Le graniglie e le travi in legno originali sono esaltate da una palette di colori fatta da rosso, ottanio e bianco con punte di nero: tinte sempre attuali e qui perfette!