Tavolo tondo allungabile in quercia [Miliboo,
ø cm 120x150x75h € 339,99], sedie Finn All Wood [S•CAB Design da € 503 cad] e con seduta impagliata da [Nap Atelier]; sul top, vasi di [Coincasa e Sambonet], sospensione Meringa [Servomuto]. Tappezzeria Figari Agave [Lelièvre € 182,40 il rollo da m 10x70 cm], tende con bordo colorato [Lisa Corti € 90 cad], frigorifero [Smeg], sotto la finestra vasi [Bitossi].
Tovaglia in organza di cotone [Lisa Corti] come la presina, piatti in porcellana e bicchieri [La DoubleJ], posate Corallo Rosso [Ashanti € 143 il posto tavola], ciotola in
legno più macina pepe e sale [Alessi].
Armadi laterali e copertura in laminato turchese sopra e attorno alla cucina sono fatti su misura dal falegname. tappeto in pvc Vera [Pappelina]. scaletta pieghevole Lucano [Metaphys].
Mobile basso Besta finitura rovere [Ikea, cm 180x40x38h da € 75] con vaso [Coincasa], scatole in tessuto [Lisa Corti da € 25] e lampada con paralume decorato [Nap Atelier]. Divano Stocksund blu [Ikea, cm 154x97x84h € 599] con cuscino [Lisa Corti]. Sul camino dipinto con lo smalto giallo codice colore E4.32.68 [Sikkens], vaso rosa grande Strypy di [Bosa] come la statuetta in ceramica Most Illustrious Alessandro, lampade a forma di cane Rio Lamp e di topolino Mouse Lamp [Seletti €279 e €72], vaso arancione [da LaRinascente]. A terra, sgabelli Colonna in tecnopolimero [Kartell €264] e Oblique Stool in rovere tinto giallo [Ferm Living su » designrepublic.com € 229].
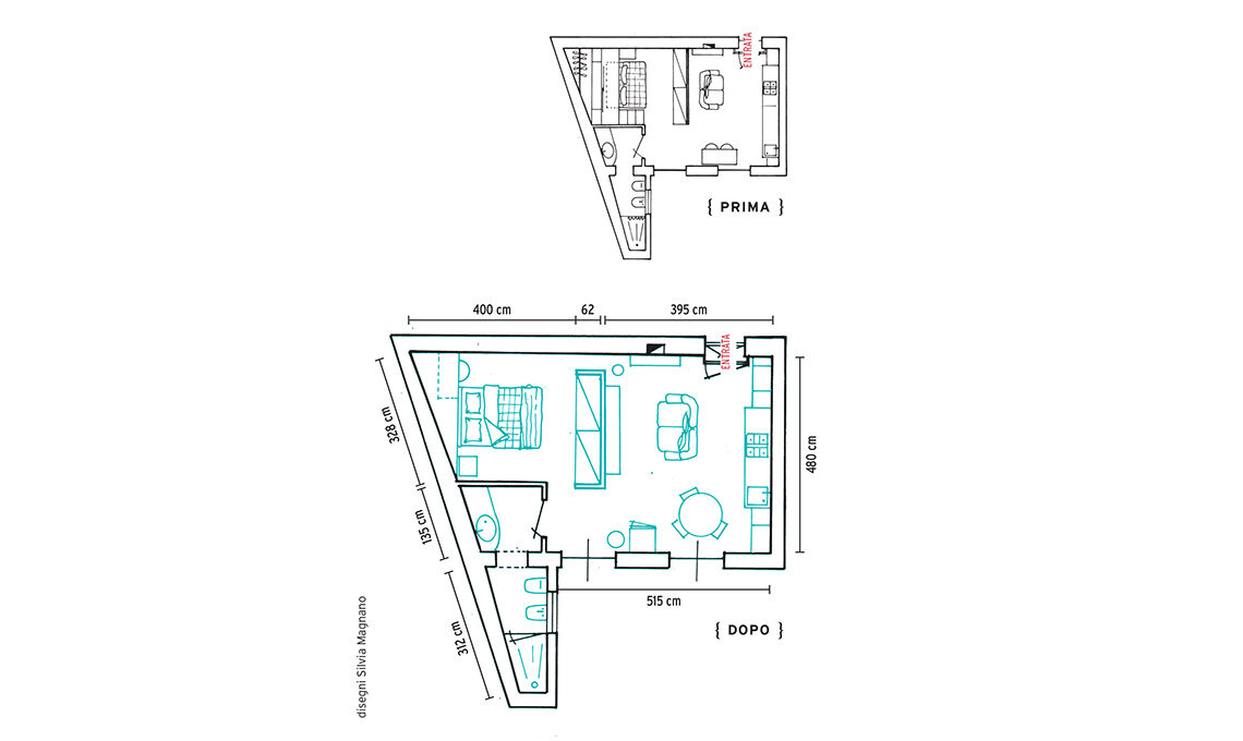
La quinta addossata al camino e l’aggetto della porta creavano zone difficili da usare. Con l’armadiatura che ‘avvolge’ la cucina e svolta sopra la porta, non ci sono centimetri sprecati.
In camera, testata attrezzata del letto con vano contenitore, ripiani e scrivania realizzato su misura dal falegname, copriletto e cuscini in organza [Lisa Corti], cuscino a righe [Nap Atelier]; sul piano, orologio Infinity Clock [Bosa], lampada da tavolo Type 75 [Anglepoise su designrepublic.com € 253]. Armadio Pax con ante Flisberget [Ikea, cm 200x60x236 da € 536] decorate con nastri adesivi [MT Masking Tape]; tappezzeria Petite Tile [Cole & Son da Nuance Interni Tessili].
L’armadio è incassato nella quinta a C che ne nasconde le spalle, ma non oscura la luce dalla finestra. La camera ha privacy ma non perde luminosità. Le cornici delle ante sono messe in evidenza con un decoro semplicissimo e realizzato con nastro adesivo giallo in carta di riso giapponese.
Chi l'ha detto che per ampliare visivamente una mini casa serve il total white? Qui toni accesi e tappezzerie iper decorative danno l'impressione che il monolocale sia molto spazioso!
Cecilia ama gli animali e i colori estivi che la caricano di energia. «Quando al primo incontro è arrivata vestita di toni solari e in compagnia del suo Jack Russel, ho subito capito in che direzione andare...» dice la stylist Giovanna Fra. A Cecilia la casa era piaciuta perché, pur essendo un monolocale, consentiva di avere una zona notte schermata: «Però era tutto troppo bianco per i miei gusti, e i mobili non sfruttavano al meglio lo spazio irregolare» racconta. «Ho chiamato CasaFacile perché mi serviva un aiuto per rendere lo spazio più funzionale e ad arredarlo in modo che parlasse di me e avesse un tocco sorprendente».
Le scelte fatte
«Innanzitutto abbiamo ricostruito la quinta che isola il letto, spostandola di 40 cm verso la camera e rendendola a forma di C perché fosse più stabile e inglobasse l’armadio» spiega Giovanna Fra. «Così il soggiorno si è ‘aperto’ godendo della luce che entra dalle due finestre e dando più spazio alle zone relax, pranzo e cucina. Quest’ultima, posta al centro della parete minore, è ‘incastonata’ in una sorta di portale al quale si appoggiano i due armadi dispensa e ripostiglio, fatti su misura in laminato turchese come la nuova testata attrezzata del letto che ospita anche l’home office. Il mobile del bagno, invece, è stato semplicemente ridipinto; parquet e infissi sono stati mantenuti perché in ottimo stato».
Il tocco di stile
La carta da parati botanica che si vede appena entrati in casa racchiude tutti i colori che ritroviamo su mobili, pareti e tessuti... e gli animali adorati da Cecilia si posano su tappezzerie e oggetti décor, portando allegria.