In soggiorno il divano bianco [Salvetti Salotti €3.500 ca.] è ‘arredato’ da cuscini grafici [L’Opificio, da €95]. Davanti al camino a gas, poltroncina [Eumenes] con tavolino [ClassiCon €755]. Tappeti Seta e In-Canto [GT Design].
In opposizione alle linee nette del living e della libreria a maxi riquadri [Mdf Italia], l’angolo pranzo punta sulle rotondità con pezzi storici come il tavolo e le sedie Tulip disegnate da Eero Saarinen [Knoll da €2.500 e €290 cad] illuminati dalla lampada Twiggy [Foscarini, da €1.290]. Vaso rosso e candelabro [Bosa], vaso in grigio in vendita da [Mia Home Design Gallery].
Sull’isola: accanto al vaso giallo [Muuto da €98], portafrutta [Antonino Sciortino], bicchieri più piatti da [C.u.c.i.n.a.] e strofinaccio a righe [Linum]. A soffitto, sospensione Skygarden [Flos €2.590].
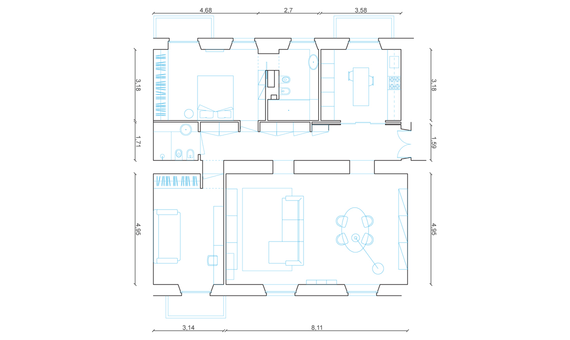
I volumi e le trasparenze si alternano per dare vita e rendere funzionale il lungo corridoio. Nello schizzo degli architetti si vede l’ampia apertura chiusa da ante in vetro, dietro alla quale si ‘nasconde’ la cucina, accanto all’effetto 3D generato dall’armadio in legno nella stessa essenza del parquet.
Prima il corridoio era solo uno spazio inutilizzato sul quale si affacciavano tutte le stanze. Questo rendeva i locali visivamente più bui e costretti. Nella zona giorno gli infissi sono stati eliminati e solo in cucina è stata installata una porta scorrevole – ma in cristallo trasparente – che la mette
in collegamento con il living.
Il lungo corridoio prima non era sfruttato. L’idea degli architetti è stata unirne le parti e realizzare un armadio che dalla porta della cucina si allunga per tutta la lunghezza e, in fondo, ingloba l’accesso al bagno per gli ospiti, ricavato riducendo la larghezza della camera da letto.
Il corridoio è stato attrezzato con una armadiatura a muro dalle ante in wengé che girano a ‘L’ anche sul lato corto (l'armadio è realizzato nella stessa essenza del parquet) che nasconde, in fondo, il secondo servizio.
Per dare movimento alla parete dietro al letto (qui è un sommier, cioè privo di testata), è possibile creare una nicchia lunga quanto o più del letto stesso, da adibire a libreria/esposizione di foto. Basta realizzare una scatola in cartongesso o in legno grezzo profonda 20 cm e lunga quanto la parete nella quale ‘scavare’ la nicchia. Per finire, dipingerla come la parete o rivestirla con carta da parati. Il letto sommier [Oggioni] è vestito con lenzuola
e cuscini [Zucchi e Bassetti]. Come comodino c’è il tavolino Adjustable Table [ClassiCon, ø cm 51 da €755]. Tappeto Seta [GT Design].
Il bagno padronale si trova al posto della vecchia cucina: è più ampio di prima e accessibile direttamente dalla stanza da letto. Qui il bianco e nero viene ripreso anche dagli accessori e dai tessili scelti da Cristina. Le pareti del bagno sono rivestite con piastrelle sfalsate e in misure diverse [Brix] nere come il lavabo da appoggio [Flaminia]. Rubinetto [Gessi]. Salviette [Marimekko], profumi [Olfattorio].
Come trasformare una casa con lungo corridoio centrale in un moderno appartamento con arredamento di design? Giocando con il contrasto tra pavimenti scuri e mobili bianchi
La struttura era quella tipica delle case d’epoca: un lungo corridoio che serve da accesso alle stanze; un solo bagno e una cucina piccola. Questo è l’appartamento che hanno trovato gli architetti dello Studio Carraffa e Ragosta di Roma. La loro ‘mission’ era renderlo più funzionale ricavando un secondo bagno e sfruttare meglio la luce. Cominciando con le magiche porte in cristallo che invitano a entrare in cucina...
La cucina con le porte scorrevoli trasparenti
La prima richiesta dei padroni di casa era una cucina più grande e che si integrasse con lo stile del soggiorno, pur restando separata. Così gli architetti l’hanno spostata vicino all’ingresso in modo da sfruttare anche il balconcino come ‘giardino per le erbe aromatiche’.
Ora la cucina è quasi raddoppiata nelle dimensioni e, al centro, ha un’isola di lavoro. Le pareti maggiori sono super organizzate, una con colonne a tutta altezza, l’altra con la zona operativa definita da un lungo top nero.
Per collegarla al living è stata realizzata una porta scorrevole a tre ante in cristallo trasparente. I pochi tocchi di colore dati dalla stylist Cristina rafforzano la scelta di stile: giocare con il chiaroscuro.
Copia l'idea
Vuoi collegare e lasciar passare la luce tra cucina e living, ma tenere lontano gli odori di cottura dal soggiorno? Fai come qui: la cucina è chiusa da tre ante scorrevoli in cristallo con dei fori tondi come maniglie. Tenere ordine è d’obbligo!
In soggiorno divano bianco e tavolo di design
A stretto contatto con la cucina (che si trova dall’altro lato del corridoio) c’è il living, ampliato nelle dimensioni e ora invaso dalla luce. Qui gli spazi sono stati naturalmente divisi in zona pranzo, di fronte alla cucina, e area relax: al centro, tra le finestre, un camino a gas che scalda l’atmosfera.
Il design gioca da protagonista, dal tavolo di Saarinen al maxi divano con penisola alle librerie-contenitore che occupano interamente le due pareti minori: tutto in un alternarsi di bianco e nero come nel resto della casa.
Luci a incasso per il living
La cura dei dettagli è presente ovunque: dall’illuminazione fissa, nascosta dagli architetti nella controsoffittatura, a quella ‘puntuale’ rappresentata da lampade di design scelte dalla nostra stylist.
Cristina ha scaldato e dato personalità al living con gli accessori e i complementi: da un lato ha ripreso con pattern grafici il leitmotiv bianco e nero della casa, dall’altro ha smorzato le linee nette degli arredi con la morbidezza dei tappeti e dei cuscini.
Camera da letto con bagno
La camera da letto principale è una vera e propria suite con bagno privato, piena di luce grazie all’uso sapiente di elementi vetrati che si alternano alle armadiature. In questo ambiente è tutto un gioco di pieni e vuoti e di materiali a contrasto, definito dai contenitori in legno e dalla nicchia orizzontale ricavata nella parete dietro il letto in cui Cristina ha esposto le foto di famiglia.
Testi
Elena Favetti
Progetto
Architetto Giorgio Carraffa e architetto Giuseppe Ragosta