Benedetta ama il gusto francese: come ricrearlo
in un appartamento degli Anni ’50? «Le ho proposto
di costruire una boiserie di stile classico alta 120 cm
lungo le pareti del salotto e su un lato della zona
pranzo» dice Cristina. Per dare continuità è dipinta in
un azzurro-verde chiaro che si ritrova nella carta
da parati dietro il tavolo. A completare, interruttori a
leva in ottone e applique in paglia di Vienna. Parquet posato a spina ungherese
[da De Masi], divano
angolare Extrasoft [Living Divani]
con cuscini Basile Ocre,
Jane e Atelier
di [Élitis], poltrone Luftballon
Lounge in rosa e grigio [Gebrüder
Thonet Vienna], sul tappeto Sahara
[Cassina], tavolino
Alanda ’18 [B&B Italia] con vasi Torri [Rina
Menardi], lampadari realizzati da
[Il Paralume Roma], appliques
Bikini [Servomuto].
Boiserie realizzata da [Falegnameria
Teknocoop] su disegno di Cristina
Gigli e dipinta con lo smalto nel
colore Light Blue 22 [Farrow & Ball].
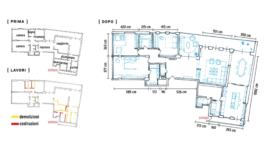
Le piantine dell'appartamento di 195 mq di Benedetta e Andrea, istruttori e proprietari di una palestra di Gyrotonic.
Vivono in questa casa nel quartiere Parioli a Roma con le due figlie.
Dietro la zona giorno,
tantissimo spazio
era adibito a piccole aree di
servizio che a Benedetta
non servivano: sfruttandone
una buona parte, salotto,
pranzo e cucina sono
stati ampliati e messi in
comunicazione tra loro.
I toni pastello di pareti
e mobili sono perfetti con il
parquet che riprende quello
originale della zona notte.
L’ingresso è stato studiato da Cristina Gigli perché
si percepisse da subito l’ispirazione francese
della casa. In sostituzione del classico bianco,
su armadio, pareti e soffitti – impreziositi da
boiserie e cornici che lei stessa ha disegnato –
si posa un blu-grigio polveroso molto raffinato
che avvolge chi entra: abbinato al parquet
posato a spina ungherese, vibra grazie alla luce
che entra dalla portafinestra che si apre sul
terrazzo. Questa è stata ampliata per dare più
luminosità all’ambiente e rendere il salotto
esterno parte integrante dell’appartamento. Su pareti e soffitto smalto colore De Nimes 299 [Farrow
& Ball] che riveste anche l’armadio disegnato da Cristina Gigli e
realizzato da [Falegnameria Teknocoop]; sul mobile vintage con ante
e cassetti [da Spazio Ampio], vasi Roman [Polspotten] e Le Torri [Francesca Verardo] più libri [Phaidon];
tappeto Jaipur Wunderkammer [Jaipur Rugs],
lampadario in tessuto realizzato da [Il Paralume Roma], tende
Linten in garza di lino [Zimmer Rohde da JVD], appliques Soul bianche
[DCW éditions].
Il terrazzo è un vero salotto open air. Pavimento in listoni di
legno e frangisole Ultrashield Stilo [Déco], tappeto Disco
da esterno [Élitis], divano Agra outdoor e poltrone Mini
Tombolo [Living Divani da De Masi], tavolino Fusto Oval Coffee Table II
[Forma&Cemento], applique Camouflage,
design Piero Lissoni [Flos da Obor Illuminazione].
Il pranzo è tutt’uno con la
grande cucina poiché a
separarli c’è soltanto una
porta scorrevole in ferro
e vetro che lascia passare
luce e sguardo. Il verde
di parete e boiserie
che sale fino sul soffitto
arriva dalla wallpaper
botanica. Ad aggiungere
leggerezza ci sono
le sedie-icona colorate. Tavolo da pranzo Galileo ovale in
frassino tinto nero [Porro da Vitale Arredamenti], sedie CH24 in legno in diversi colori con seduta impagliata [Carl Hansen
& Søn da Vitale Arredamenti] e Czech in
legno laccato giallo [Gebrüder Thonet Vienna da Vitale Arredamenti], appliques Bikini [Servomuto], lampadari Flamingo [Vibia].
Carta da parati Palma con decoro panoramico di alberi [Les
Dominotiers da JVD], apparecchiatura realizzata con: piatti decorati [Bitossi Home] e
bicchieri This Side Up [Studio Kalff]. Torte realizzate da
[Benedetta Righi @manawa_lab e Giorgia di Bono @giorgiadbn].
La cucina era lunga e stretta,
preceduta da un grande
disimpegno e affiancata da
un bagno di servizio: con la
ristrutturazione tutto è stato
reso un unico ambiente,
affacciato sulla zona pranzo
di cui è il proseguimento. Cucina realizzata su misura
[Zampieri] con top in acciaio inox
[Barazza] e marmo di Carrara [da
De Masi], sgabelli Pelleossa
[Miniforms]. Porta scorrevole in
ferro e vetro Officina [ADL Design]. Sui fuochi, casseruola
Lily Granatina [Staub].
La cucina è tra le passioni di
Benedetta, che ha chiesto a
Cristina di crearne una con
isola che per materiali e
organizzazione richiamasse
quelle dei ristoranti. Ecco
allora piani di lavoro in acciaio
e marmo e colonne per
elettrodomestici e dispensa;
pavimento, pareti e soffitto
sono in resina verde. Rivestimenti in resina della
collezione Cementoresina a terra e
Cementoresina Wall a parete e
soffitto nel colore KK 51 [Kerakoll],
«Per i colori della camera matrimoniale
tutto è cominciato da un tessuto visto
in un negozio con il quale sono poi state
confezionate le tende» dice Cristina. Da
lì arriva non solo l’azzurro che riveste pareti,
soffitto e persino l’armadio che nel disegno
riprende la boiserie, ma anche il rosa scelto
per l’effetto scatola del bagno en suite. Armadio realizzato su disegno di Cristina Gigli da
[Falegnameria Teknocoop]; a parete placche interruttori in finitura
ottone spazzolato [Modelec].
La camera da letto
padronale era grande
ma male organizzata.
Ora è diventata una
vera suite con bagno
privato e anche qui
lo stile francese del
guscio è in equilibrio
perfetto con gli arredi
contemporanei.
Testata del letto Ovidio imbottita e rivestita in tessuto [Maxalto],
comodini Formosa Appoggiata con anta e cassetto e Formosa
Accucciata con anta [Minotti Italia]. Lampade a sospensione sui
comodini Odyssey Single LG [Schwung da Obor Illuminazione]; sul letto cuscino in tessuto stampato Tibet Print Powder
uguale a quello delle tende colorate e dell’applique accanto alla
finestra [Clarence House]. Lampadario Serpentine Light [Moooi]. Boiserie realizzata su disegno di Cristina Gigli da
[Falegnameria Teknocoop] e dipinta come le pareti con smalto in
colore Bone China Blue 107 [Little Greene].
Il bagno padronale non è stato ingrandito ma la
nuova disposizione della porta e dei vari elementi
ha permesso di sfruttarlo meglio, con una doccia
da 165 cm e con un mobile lavabo disegnato da
Cristina che regge due bacinelle. A dare charme,
il rosa terracotta della resina che riveste tutto. Mobile bagno dal profilo
stondato realizzato su misura da [Falegnameria Teknocoop] su disegno
di Cristina Gigli con lavabo da appoggio Ago3 [Antonio Lupi] e
rubinetti da parete [Fantini], specchio F.A. 33 Wall Mirror [Gubi], applique Clemente [Visual Comfort&Co. da Obor Illuminazione].
Rivestimenti in resina: Cementoresina sul pavimento e Cementoresina
Wall su pareti e soffitto, tutti nel colore KK 112 [Kerakoll].
La camera ospiti è diventata la magica stanza delle
bambine che per ora
dormono qui insieme.
Ritorna la boiserie ma in
chiave moderna: dipinta
nello stesso rosa
dell’armadio con le ante
in paglia di Vienna e
della libreria, è abbinata
a una wallpaper che
raffigura colorati animali
disegnati al tratto. Tavolino-gioco MuTable™ V2 [Stokke®], sospensione Nelson Saucer Bubble Pendant
Large Off White [Hay], carta da parati Bestiaire
Enchanté [Pierre Frey da JVD], applique Flowerpot terracotta
[&tradition]. Boiserie, armadio e librerie sono dipinte con
smalto nel colore rosa Masquerade 334 [Little Greene].
Gli arredi montessoriani erano una richiesta di Benedetta: Cristina le
ha proposto un letto a casetta e un tavolino-
gioco che aiutano a sviluppare la fantasia. E
sotto le finestre ha realizzato delle librerie
pensate per la crescita autonoma dei bimbi. Letto evolutivo Zero+ Dream in legno massello naturale
con sponde e tettino a casetta [Nabè, cm 96,5x201,5x141,5h],
tappeto Lytte Gobi Multicolor [Benuta, cm 140x200].
Armadio con ante in paglia di Vienna, libreria sotto la finestra e
boiserie realizzati su misura da [Falegnameria Teknocoop] su disegno
di Cristina Gigli.
Dove una volta c’era uno
studio è stata ricavata la
stanza dei giochi, che
all’occorrenza fa anche da
camera degli ospiti. Pochi
ma funzionali gli arredi: ci
sono un grande armadio
multitasking più un divano
letto, oltre all’iconica
sedia a dondolo di design. Boiserie e armadio con vani
divanetto e librerie realizzati su
disegno di Cristina Gigli da
[Falegnameria Teknocoop] dipinti
con smalto colore Lichen 19
[Farrow & Ball].
Anche nella stanza dei giochi, come
nella cameretta, il lampadario
è in carta di riso a forma di bolla:
leggerissimo, rende soft la luce,
proprio come il lino delle tende. Parquet posato
a spina ungherese [da De Masi],
sospensione Nelson Ball Bubble
[Hay], divano
letto Ghost [Gervasoni], sedia a
dondolo Eames Fiberglass Armchair
RAR [Vitra], appliques
ricamate da [Creazioni_Nadir].
Traslato di circa 150 cm
verso la cameretta per dare
agio alla stanza dei giochi,
ora il bagno delle bambine
punta su grigi e azzurri. Per
non risultare freddo, le
piastrelle sono decorate con
stelle in stile marocchino.
Che cambiamento rispetto
al grigio-beige di prima!
Il mobile lavabo stondato con le
ante cannettate, le due bacinelle
blu e la vasca ovale sono pensati
per rendere più facile l’uso del
bagno alle bambine ma strizzano
l’occhio al design e regalano
un carattere chic all’ambiente. Mobile bagno realizzato su disegno di Cristina Gigli da [Falegnameria Teknocoop] con lavabi
a bacinella Catino Tondo di [Ceramica Cielo] come gli specchi Oval, rubinetteria da parete nera [Fantini],
appliques Mini Glo-Ball [Flos]. Piastrelle in cemento Hex Star [Popham Design], sulle
altre pareti e a soffitto resina Cementoresina Wall nel colore KK 18 [Kerakoll].
L’appartamento anni ’50 non aveva tratti interessanti da preservare. Perciò è diventato la cornice ideale in cui importare un gusto elegante e raffinato ma conviviale. Che comincia con una boiserie classica...
Benedetta e Andrea sono atleti attenti al benessere fisico e mentale, al cibo e alla natura: «Tutto questo doveva riflettersi nella loro casa» ci racconta la stylist Cristina Gigli. «Quando mi hanno contattata è iniziato un lungo lavoro di ricerca e confronto con loro e con l’architetto Antonello Feliciangeli (che ha curato la parte tecnica e la direzione lavori) perché l’appartamento li rispecchiasse al 100%». Benedetta ha una passione per lo stile francese: lo trova elegante e confortevole, così ha chiesto a Cristina di ricrearlo in questa casa Anni ’50 molto grande ma che andava riadattata, anche negli spazi, alle loro esigenze.
Le scelte fatte
La zona giorno ha subito le modifiche più ingenti: eliminati i disimpegni, il salotto si è ampliato e la cucina ha quadruplicato il suo spazio, separata dal pranzo con pannelli scorrevoli in ferro e vetro che creano un ambiente fluido, luminoso e conviviale.
Per avere più luce e connettere al meglio il terrazzo, che ora è un secondo living open air, qui tutte le finestre sono diventate portefinestre. Nella zona notte le stanze sono state ridimensionate per ricavare due camerette con bagno e una suite matrimoniale.
Il tocco di stile
Per ottenere un’allure francese Cristina ha disegnato boiserie e armadi di gusto rétro e dato a ogni stanza una nuance chiara e rilassante a contrasto con quelle scure ma avvolgenti di ingresso e cucina. Il tutto accostato a pezzi iconici di design in versione colorata che danno un raffinato tocco di leggerezza.
progetto tecnico arch. Antonello Feliciangeli – foto Giandomenico Frassi – testi Elena Favetti