Armadio Hemnes [Ikea, cm 120x59x197h €299] è stato tinto dello stesso azzurro del muro [P1.11.63 di Sikkens]. Sopra, uccellino [Zara Home] e porta vasi [Coincasa]. Tavolo vintage, con sgabello Ninho [Trabà €341], lampada JJ Junior [Leucos].
Sgabelli con seduta in paglia Donut [Mogg] e vintage rivestito con tessuto [Designers Guild]; sospensione Cloche [FontanaArte], canovacci [Lanificio Leo].
Frullatore [Magimix €200], cocotte e bollitore [Le Creuset, €109 e €89], bilancia [Brandani]. Piastrelle a parete [Made a Mano], e a terra [Sil Ceramiche].
Armadio Busunge rosa [cm 80x52x139h €119,90] di [Ikea] come il tappeto Stickat [€9,99] e il lettino Sundvik [cm 60x120x84,8h €119,90], scatole [Ferm Living su taninihome.com €205 il set da 3]; attaccapanni Pierrot [Alessi €185] e alce dondolo [Davide Paganotti €149].
Poltroncina turchese Acapulco Mini [Ok Design €242,78] con cuscino di [Ferm Living] come il tappeto Dots [€42] tutto in vendita su taninihome.com piantana [Misha €314,99], poltrona Unam [Very Wood €926].
Biancheria letto [Gabel], comodino Aky [Trabà, cm 48x48x60h €733], vaso [Coincasa], sveglia Tieni Il Tempo [Brandani] e tazza [Giovelab]. Tende Aina [Ikea €44,99].
Piccolo angolo lettura con la poltroncina Ava turchese [Bross], piantana Tribeca [Mogg, Ø cm 44x170h €779]. Coperta blu [Somma], vassoio in bambù e laminato Emma [Stelton, cm 30x43x3,5h €89,95]; quadro [Christopher Pisk].
Un appartamento luminoso ma con poca personalità si trasforma nella casa dei sogni
Un appartamento in centro a Milano da rendere funzionale, bello e solare per una giovane famiglia: sfida accettata!
La proprietaria è una vera appassionata di design nordico, per non affollare troppo gli ambienti si è scelto di avere pochi mobili dalle linee essenziali ma molto funzionali, come il tavolo allungabile e il divano letto del soggiorno. Guarda il video della trasformazione!LA CUCINA
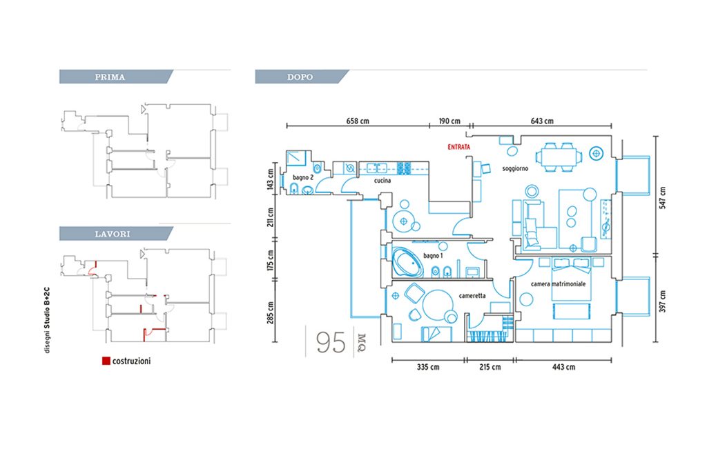
Per dare più luce in cucina sono stati scelti mobili minimal e bianchi. La stanza era piccola e male utilizzata, lunga e stretta con la zona di ingresso più larga, prima aveva un’area pranzo troppo grande rispetto a quella operativa e si affacciava direttamente sul bagno di servizio. Sfruttando la prima parte con le colonne frigo e forno più un tavolo colazione, la cucina è più funzionale ed è stato possibile creare il disimpegno con lavanderia.
LA CAMERETTA
Per la cameretta della loro bambina, i proprietari cercavano una soluzione che potesse andare bene per i primi anni e che, con poche modifiche, si potesse adattare alla sua crescita. Per rendere più giocosa e accogliente la stanza, ci sono tante poltroncine small e large e le pareti lunghe sono una fucsia e una a pois.
Per rendere la stanza più funzionale alla crescita della bambina, senza ricorrere a eccessivi cambiamenti o spese future, è stata creata una cabina armadio, che sarà utilissima tra qualche anno: basterà poi aggiungere un letto singolo e uno scrittoio.
LA CAMERA DA LETTO
Spirito minimal e sfumature del blu, accostate a bianco e grigio. I colori del letto vengono ripresi sulla poltroncina del mini angolo lettura, un piccolo sogno della proprietaria di casa.
IL BAGNO
Il bagno principale era stato ristrutturato di recente, ma con un gusto un po’ anonimo. Cambiando lo stretto necessario e aggiungendo qualche tocco di grigio al color pesca del mosaico e arricchendolo di dettagli moderni. Il rivestimento effetto mosaico rosa pesca non convinceva molto ma rimuoverlo per sostituirlo sarebbe stato inutilmente dispendioso. Così la nostra stylist ha suggerito di dipingere la fascia tra le piastrelle e il soffitto in grigio cemento... è bastato questo, con l’aggiunta di accessori in nuance, a cambiare volto al locale.