Tavolo, sedie e sospensione Anni ’50 da [Magazzino76], mobile bianco&nero, restyling di Laura Claus [Il Ciliegio], parquet industriale come quello di [Cristiani]. Sul mobile basso a listelli, di famiglia, lampada da tavolo Dioscuri [Artemide, ø cm 35h €315].
Librerie K1 [Kriptonite, un modulo basic da cm 60x198h con 5 ripiani prof. cm 29 €512], poltrona vintage in legno simile a Peggy di [Pols Potten, da €789], specchio Anni ’50 sul camino da [Magazzino76]. Lampada Cocoon Taraxacum 2 dei fratelli Castiglioni [Flos].
Piano cottura, forno, lavelli e rubinetto [Smeg], utensili da cucina Grunka
[Ikea, €7/4 pezzi]. A parete, applique Mesmeri [Artemide, cm 34x22,1x7,9h
da €220].
Orologio con cassa in alluminio simile a Orologio di [Kriptonite, ø cm da 15 a 62, €100 il modello di ø cm 30]. Piastrelle rosa con superficie lucida simili alla linea Trasparenze d [Ceramica Vogue, formati quadrati da cm 5 a 20].
Letto tessile Peonia [Flou, cm 178x217x110h da €2.123 esclusi materasso e biancheria], petineuse e pouf vintage, di famiglia, scultura [Tiziana Cera Rosco], finestra da tetto [Velux].
Lampada Tizio [Artemide da €290], poltroncina vintage come quella vista al piano inferiore, due ritratti fotografici di Federica opera di [Max Cardelli]. Il parquet industriale è lo stesso usato nella zona giorno.
A casa di Federica, attrice appassionata di arte e design, tutto parla dei favolosi fifties... Arredi in legno dalle forme leggere, dettagli 'da film' e una cucina tutta rosa.
Incontriamo Federica in una pausa tra uno spettacolo teatrale e la registrazione di una serie tv... Luminosa come l’appartamento in cui vive, racconta della sua ‘nuova’ casa. In realtà vive qui da circa vent’anni ma aveva voglia di renderla più somigliante a lei e al suo stile.
Le scelte fatte
Con l’aiuto dell’interior designer Dario Zordan ha rivisto l’appartamento dandogli quel mood Anni ’50 che ama e che le somiglia. Dopo tanti anni, l’alternativa era tra cambiare casa o cambiare la casa e Federica ha scelto la seconda strada.
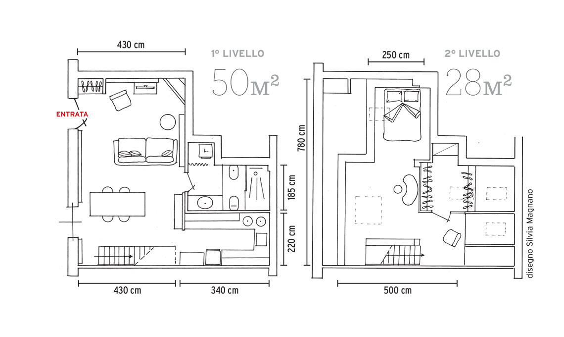
Il blu scuro e il nero delle pareti sono stati sostituiti da tanto bianco, azzurro e grigio, è stato dato spazio a molte librerie e ci sono un piccolo-ma-prezioso guardaroba all’ingresso e una capiente cabina armadio in camera. La cabina armadio è stata ricavata in modo molto semplice, approfittando della presenza di un pilastro.
Il tocco di stile
L’amore per il vintage ha guidato Federica nella scelta di arredi e complementi. Anche in cucina e in bagno, per un risultato coerente e di grande effetto.