La cameretta Bit V60K di Mondo Convenienza qui è
nei colori faggio, bianco e malva [€ 680 la composizione tipo che comprende: armadio a 3 ante e 4 cassetti, letto singolo, comodino, scrivania, sedia e 2 mensole; sono esclusi coperture e materassi].
La composizione a L con letto a soppalco e armadio a ponte permette a ogni figlio di avere il suo letto a vista e lo spazio per studiare e giocare
I genitori di Sara, Luca e Andrea, rispettivamente 10, 7 e 4 anni non riescono proprio a trovare una soluzione al fatto che la camera dei loro figli è, sì, grande (14 mq) ma è unica e deve rispettare le esigenze completamente differenti di 3 bambini di età e sesso diversi.
La richiesta:
Si cerca una soluzione super pratica, funzionale e bella per sfruttare questa stanza in modi diversi dando a ciascun figlio, dalle esigenze diverse, il proprio spazio.
La soluzione:
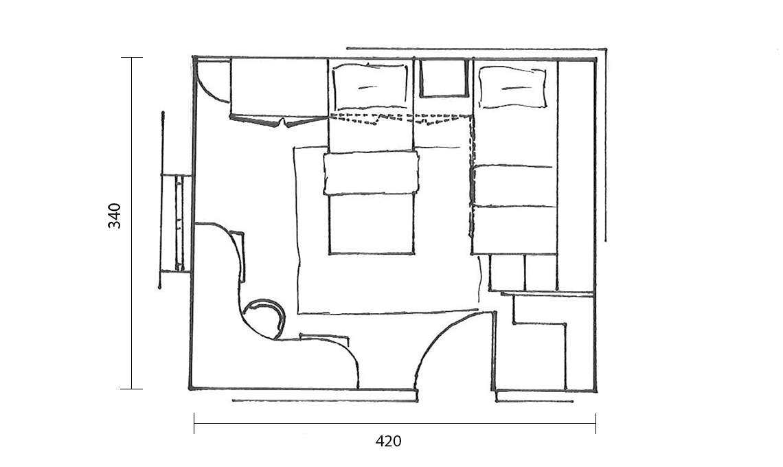
Le dimensioni (cm 420x340) e la forma pressoché quadrata della camera consentono di poter organizzare lo spazio in modo da avere tutti e 3 i letti ‘a vista’ senza dover ricorrere a elementi nascosti o sottorete. La bimba dorme sul soppalco in modo da avere più privacy, i maschietti nei due letti sottostanti. Per studiare c’è un’ampia scrivania angolare e per tenere in ordine libri e giochi, ognuno ha parte delle 2 librerie facilmente accessibili.
La cameretta Bit V60K di Mondo Convenienza, dunque, nella composizione in foto è formata da: un letto sul soppalco raggiungibile tramite scala a cassetti, più due letti a terra su ruote, comodino, un armadio con ante e cassetti a terra e uno a 3 ante a ponte, un terminale a libreria più uno scaffale a L accanto alla scala, il tutto nei colori faggio, bianco e malva.