Una vista di ingresso, cucina e pranzo dalla zona relax: qui, vani chiusi e a giorno si alternano tra loro, per dare movimento al locale. A terra, un parquet a maxi listoni in Iroko è perfetto per scaldare il bianco totale.
Nel disimpegno: sfruttando la nicchia a doppia profondità che si trova tra le due porte (verso il soggiorno e verso la camera), l’architetto ha creato una zona lavanderia e un ripostiglio attrezzati con una serie di scaffalature chiuse da ante di larghezza diversa. Qui c’è posto sia per la biancheria della casa, sia per gli attrezzi per la pulizia.
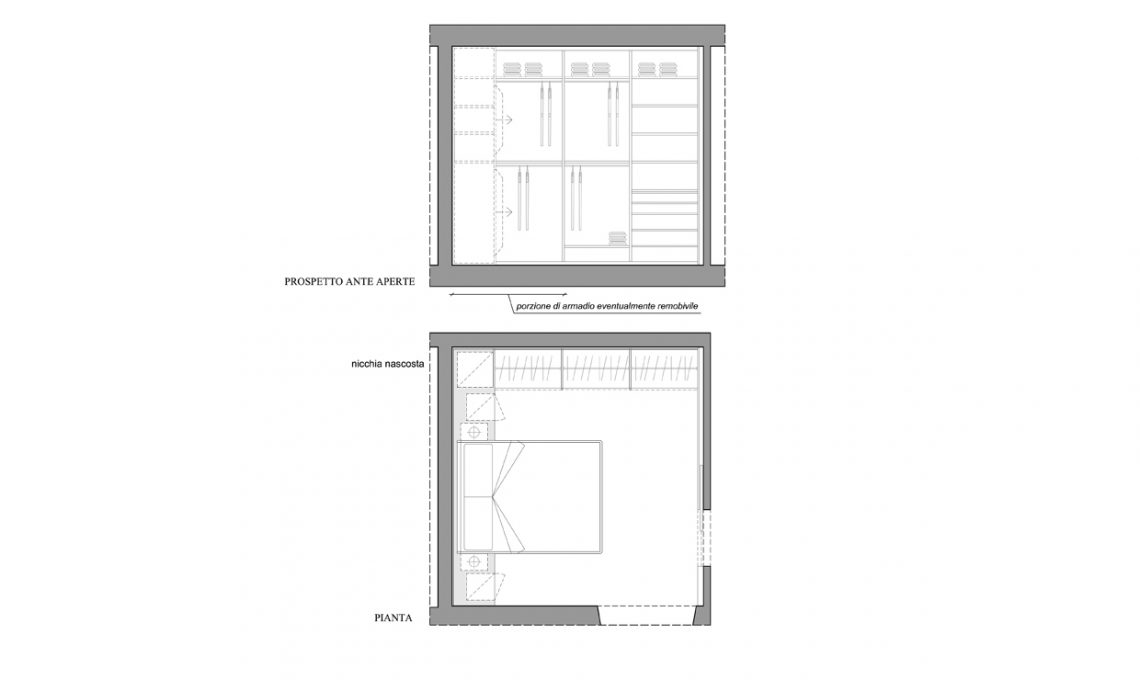
In camera: sulla parete più corta è stata realizzata una struttura in cartongesso che si sviluppa a ponte, nella quale una serie di nicchie si aprono verso la stanza e verso il letto, così da inglobare i comodini. Lungo la parete maggiore, invece, è stato inserito un pratico armadio doppia stagione, chiuso da maxi ante scorrevoli.
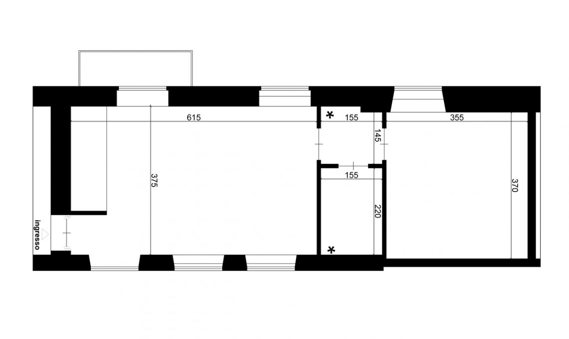
Due locali poco funzionali sono stati riprogettati dal ‘nostro’ architetto: ora ospitano un soggiorno con cucina, pranzo, zona relax e studio. Tutto in soli 43mq!
Giuseppe ha acquistato questo bilocale a pianta rettangolare in cui la presenza di pareti oblique rendeva poco fruibili gli spazi. Così ha chiamato la nostra architetto CF style Carlotta Pesce che, per lui ha sviluppato questo progetto.
Eliminate le pareti oblique, il bagno è stato ridimensionato e reso rettangolare e cieco (si può, vista la metratura inferiore a 70 mq). Ora è organizzato con maxi doccia, lavabo e sanitari.
Il living, adesso di 23 mq, è suddiviso in 4 zone: la cucina (all’entrata), il pranzo, la zona relax e l’angolo studio accanto a una delle finestre.
La camera da letto si restringe leggermente rispetto a prima, è attrezzata con nicchie e armadiature realizzate su disegno dell’architetto (così come per quelle nel resto della casa).
Il disimpegno serve anche da lavanderia e ripostiglio, grazie a scaffali celati dietro ad ante scorrevoli.
Vuoi anche tu una consulenza di un architetto CF style? Clicca qui.