L'appartamento protagonista di questa ristrutturazione è collocato in una palazzina liberty dei primi del '900 a Milano.
Le richieste
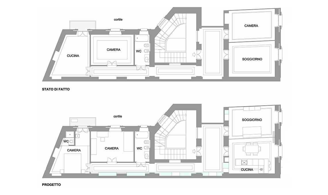
I proprietari di casa volevano creare una zona giorno compatta e dividere nettamente dalla zona notte (prima la cucina era in fondo all'appartamento, dalla parte opposta rispetto al soggiorno che confinava con la camera matrimoniale); in più c'era la necessità di creare un secondo bagno.
Il progetto
L’idea principale del progetto è stata quella di invertire la camera con la cucina (situata lontano dal soggiorno) e creare una separazione netta fra zona giorno e zona notte. Nella nuova camera è stato creato anche un bagno ad uso esclusivo. Ecco le specifiche del progetto:
- nella zona living (che si sviluppa in un unico locale dove prima c'erano soggiorno e camera padronale) sono state posizionate delle pareti manovrabili che possono chiudere parzialmente o interamente i due ambienti creando all’occorrenza una stanza indipendente per gli ospiti. Questi pannelli, scorrendo unicamente sul binario superiore, non incidono esteticamente sulla continuità della pavimentazione in parquet;
- la cucina, pensata come un semplice elemento di arredo, è centrata simmetricamente nella cornice del pavimento e si distingue per il colore nero opaco e per le linee minimali, dal contesto retrò. Il frigo è nascosto nel mobile adiacente in nicchia che presenta anche un’apertura dalla quale si intravvede il disimpegno;
- il corridoio, contraddistinto da diverse nicchie irregolari sulla parete di confine, è stato reso più lineare da un armadio su misura (sul modulo della pavimentazione in cementine) che le ingloba: lungo più di 13 metri è adibito a guardaroba e libreria all’ingresso, ripostiglio e libreria nella prima parte e guardaroba padronale nella parte finale. I “vuoti” delle librerie sono sottolineati da una attenta illuminazione a led (temperatura 3000K) che valorizza l’intero corridoio;
- nella camera padronale, caratterizzata dal camino preesistente della ex cucina, è stato inserito il bagno sottolineato dalla differente pavimentazione (resina cementizia grigia che ben si armonizza con le cementine esagonali esistenti color granata);
- il bagno vero e proprio contiene il vano doccia 70x90 cm e un wc-bidet ed è chiuso da una porta in vetro temperato extrachiaro (10 mm) trasparente a tutta altezza per non rovinare la simmetria del camino posto al centro della parete. Il wc e gli elementi funzionali della doccia (soffioni, doccino e rubinetteria) sono stati collocati nella parete più interna lontano dalla vista in modo che questo ambiente sembri il prolungamento naturale della stanza. Sulla stessa idea la zona lavabo con quest’ultimo che è pensato come un vero e proprio elemento di arredo;
- gli arredi realizzati su misura (cucina e mobili di soggiorno, corridoio e camera padronale) si distinguono per il design minimale che fa da contrappunto ed esalta la ricchezza di decoro degli ambienti esistenti;
- tutte le finiture originali della casa sono state recuperate: il parquet è stato rilamato e la pavimentazione in cementine micro levigata, mentre alle porte interne sono stati sostituiti i vetri con dei semplici vetri satinati e gli infissi esterni (finestre e persiane) sono stati risistemati con un lungo lavoro di recupero della ferramenta e con l’aggiunta di vetrocamera per le finestre.
Il progetto è stato realizzato dagli architetti Carlo Andrea Gorelli e Keiko Kondo
