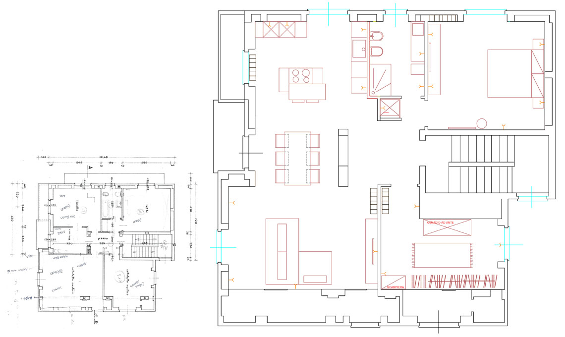
La richiesta fin da subito è stata quella di creare un’ampia zona giorno, andando ad eliminare le ripartizioni presenti nella mansarda (soggiorno - cucina - pranzo). Cucina con isola per piano snack, sala da pranzo, ingresso e salotto: tutto doveva convivere all’interno dello stesso ambiente senza creare confusione. Al contempo il proprietario, una persona molto decisa, voleva degli ambienti ordinati e ben distinti, in cui potersi muovere comodamente. Così ho lavorato alla pianta definendo le varie zone attraverso una serie di accorgimenti funzionali ed estetici come ribassamenti in cartongesso e impianto di illuminazione con faretti led che servono a circoscrivere le aree. L'intervento maggiore l'ha subito la zona giorno che, ora è un unico grande ambiente in cui le funzioni sono, comunque, distinte e allo stesso tempo gli spazi fluidi si inseriscono gli uni negli altri.
Interventi di ristrutturazione
La ristrutturazione dello spazio voleva portare ad un aumento in termini di efficienza dello stabile. Riscaldamento a pavimento, nuovi serramenti, impianto di illuminazione a led. Tutto è stato studiato nell’ottica di soddisfare le richieste del cliente che voleva un ambiente da poter vivere quotidianamente con piacere. Anche la scelta dei materiali è stata attenta e curata. Piastrelle in gres porcellanato con effetto legno e finiture effetto cemento per la cucina. Anche in questo caso ho lavorato sulla moodboard che ha svolto il ruolo di guida per l’intero progetto.
La scelta dei complementi
Al termine dei lavori si da il via alla parte più divertente come sempre. Blocco appunti e biro alla mano abbiamo preso nota di tutto quanto serviva per disporre in modo pratico e funzionale gli ambienti. Poi abbiamo lavorato sullo stile, sulle forme, sui materiali e sui colori. E grazie alla realizzazione dei rendering anche il cliente si è reso fin da subito conto di quello che sarebbe stato il risultato finale: arredi neutri in bianco, grigio e nero con qualche tocco di colore per dare personalità nella zona giorno, legno e cemento in bagno scaldano l'atmosfera.
