Nell'assonometria si vede in primo piano il nuovo micro-bagno con doccia (color verde acqua). Dietro (color viola) il bagno più grande con vasca, 2 sanitari e ampio mobile con lavabo, che nasconde la lavatrice.La doccia è chiusa da un'anta in cristallo pieghevole. Il vetro fisso a filo soffitto assicura la luce naturale al nuovo bagno.
La nostra lettrice Sandra ci chiede un progetto per realizzare il suo grande desiderio: ricavare un altro bagno per la sua famiglia di 4 persone, con 2 bambini
Sandra ci racconta: «Ho un solo grande bagno, con vasca e lavatrice, ma siamo in 4 e sarebbe un sogno avere anche il 2° bagno! Devo mantenere vasca e lavatrice, mi piacerebbe molto aggiungere la doccia».
Ecco la soluzione che abbiamo pensato per creare il 2° bagno nella casa di Sandra, che anche voi potrete copiare se avete una situazione simile.
_ Per realizzare il progetto è necessario rifare anche il bagno che c’è ora.
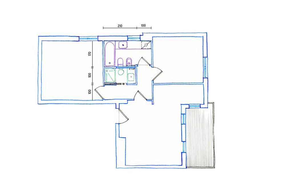
_ Il bagno esistente si divide in due: la zona con finestra si allunga di cm 40 verso la camera piccola, per consentirne l’accesso con una nuova porta dal corridoio; la seconda parte, molto più piccola, con la porta dov’è adesso, diventa il nuovo bagno.
_Nel primo rimane una vasca di cm 170, come quella attuale, nella stessa posizione. Sulla parete lunga sotto la finestra è previsto un mobile di cm 230, con lavabo e lavatrice. Di fronte a questo sono affiancati i 2 sanitari.
_ Il nuovo micro-bagno, adiacente al primo, ha una doccia di cm 70x90, con di fronte un mobile di cm 100x50 con lavabo incassato, e al centro un mini-wc. La porta a battente è sostituita da una scorrevole a scomparsa e la luce naturale è garantita da un vetro fisso largo cm 120 e alto da sopra il box doccia fino al soffitto, che sfrutta la finestra del bagno adiacente. Sarà necessario in ogni caso un impianto di aria forzata.
_ I wc sono installati in corrispondenza tra loro; e anche i 2 scaldasalviette coincidono sulla parete in comune: nel bagno grande sopra il bidet e nel piccolo sopra il mobile lavabo.