Mobile bagno Luxor con struttura in alluminio Oro, base in quarzo resina Dark con frontale Millerighe, top con lavabo integrato Kukiin quarzo resinaDark e specchio Pandora [Arbi Arredobagno].
Finestra VentoThermTwist assicura un ricambio
d’aria controllato: 2 ventilatori alternati consentono di fare entrare l’aria fresca e rimuovere quella viziata. [Schüco PWS Italia].
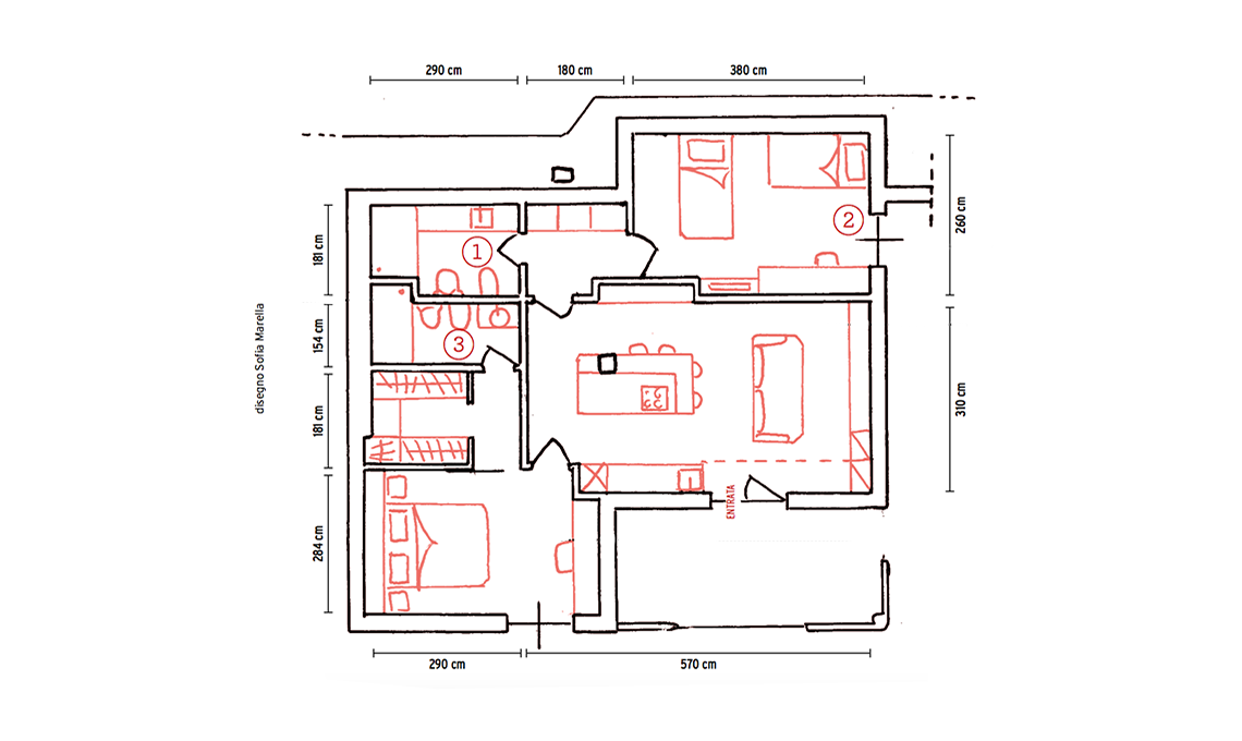
Recuperando 5 mq esterni al perimetro della casa e rivedendo la suddivisione degli ambienti, il bilocale ha guadagnato una stanza e un bagno in più. Con un buon progetto a volte lo spazio si può 'inventare'...!
Anna e Paolo, storici lettori di CasaFacile, volevano ricavare una stanza in più nella loro casa al mare, al piano terra di un condominio di 3 piani e con ingresso autonomo dal giardino. Il bilocale era formato da soggiorno con angolo cottura, una camera, un bagno e un ampio locale di sgombero ma senza finestre e illuminato da una parete in vetromattoni dalla stanza confinante.
La soluzione
L’architetto CF style Manuela Marconi, da loro contattata, propone di sfruttare parte dell’intercapedine posta sul retro della palazzina per ingrandire l’appartamento. Ottenuto il permesso del condominio (poiché si manteneva la funzione primaria di ventilazione dell’intercapedine stessa), è stato possibile recuperare 5 mq di superficie e aprire una nuova finestra sul lato del palazzo: questo ha permesso di ricavare una stanza in regola per i bambini. Per la finestra è bastata una SCIA (Segnalazione Certificata di Inizio Attività) perché rientrava nella manutenzione straordinaria ed è stata aperta in corrispondenza di quelle sovrastanti. L’area cieca della casa è stata riorganizzata con una cabina armadio e due bagni. La camera padronale è stata personalizzata con la costruzione di una struttura in cartongesso che fa da testiera del letto giocando sul colore blu notte e le tonalità dei grigi, leitmotiv di tutto l’appartamento. Nel soggiorno doppio, la protagonista adesso è l’isola della cucina, che ingloba (e ’nasconde’) anche il pilastro portante del palazzo.
BUDGET*
Demolizioni tramezzi in muratura e vecchi pavimenti, compresa apertura porta finestra €6.000
Costruzione tramezzi in muratura €10.000
Realizzazione nuovo solaio per ampliamento camera €2.350
Impianto idrico-sanitario di bagni e cucina €7.800
Piastrellatura bagni e cucina €5.650
Impianto elettrico €7.500
Impianto condizionamento €4.750
Fornitura e posa pavimento flottante €2.750
Fornitura e posa nuova finestra €1.800
Fornitura e posa tappezzeria €2.500
Tinteggiatura pareti e soffitti e opere di finitura €8.200
Totale (iva esclusa) €59.300
* il preventivo si riferisce a questo progetto; l’immobile si trova a Varazze (SV).