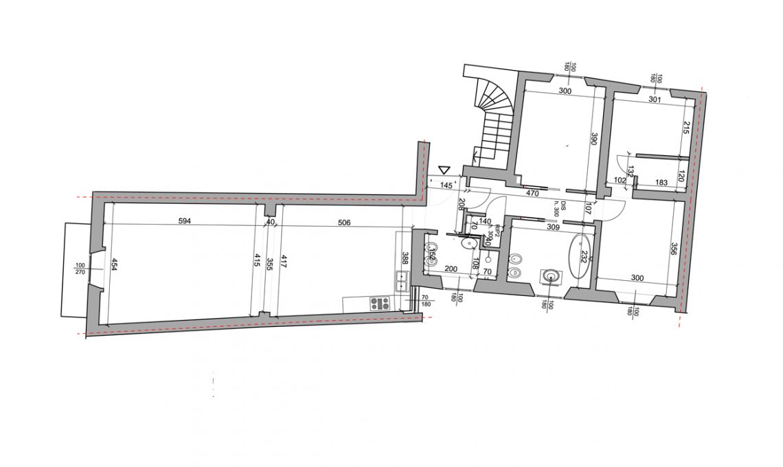
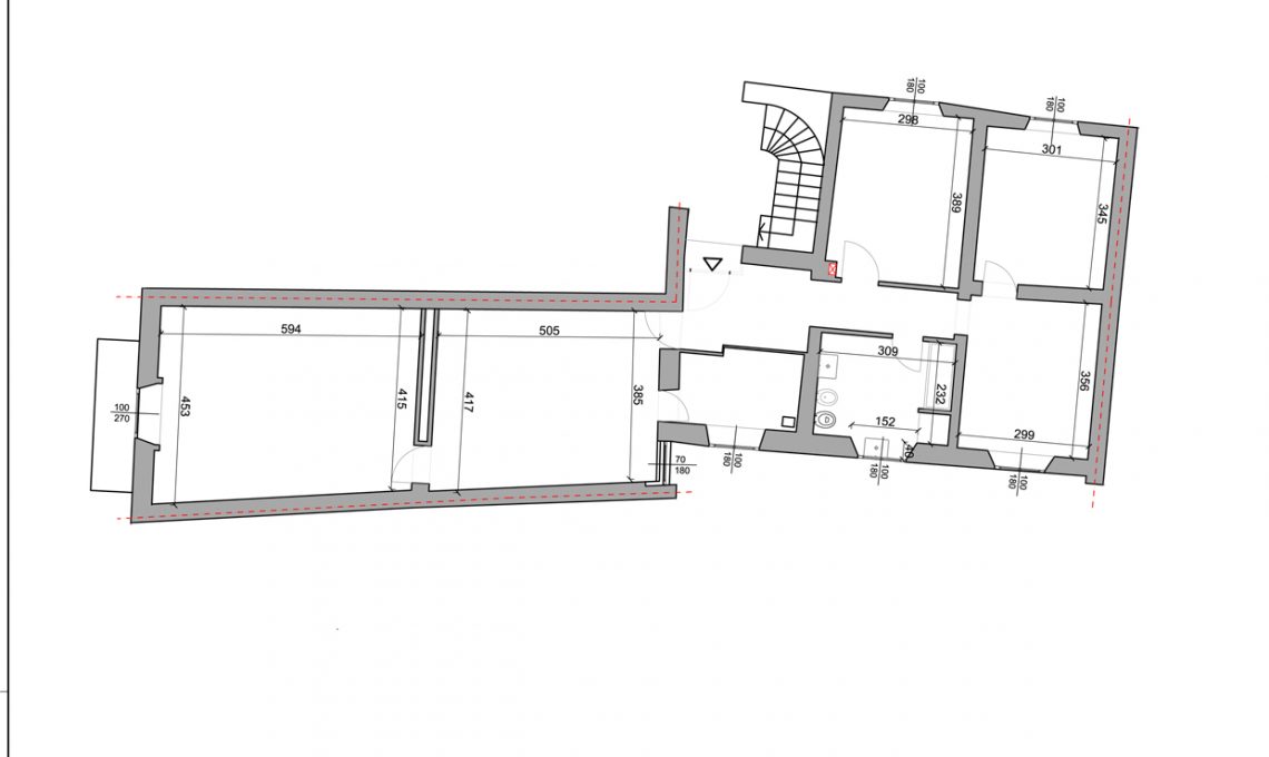
Il progetto: la cucina ora fa parte del soggiorno ma è separata dalle pareti vetrate, si crea il secondo bagno e un angolo lavanderia, una delle camere da letto viene adibita a ripostiglio più cabina armadio
La cucina, su disegno, è resa essenziale dalla laccatura nera dei frontali e dal marmo del top. È perfetta con le cementine che sfumano dal bianco al grigio e la struttura in ferro nero delle pareti che la contengono.
C'è grande attenzione per i particolari ovunque: in bagno, per esempio, i mobili per i lavabi sono stati creati su disegno dell'architetto. Uno, recuperando la base di una vecchia macchina per cucire.
Una tipica casa ‘vecchia Milano’ con ambienti divisi in modo poco razionale si trasforma in un moderno quadrilocale con una suddivisione degli spazi perfettamente funzionale
Il nostro architetto CF style Selina Bertola è stato contattato per ristrutturare una tipica casa sui Navigli milanesi caratterizzata da tanti muri portanti, ambienti piccoli e da una zona giorno suddivisa in due locali poco luminosi. Ecco il progetto.
Il living è stato reso un unico grande ambiente con, in sequenza, cucina, pranzo e (in fondo verso il balcone) la zona relax. Le travi in legno, prima nascoste da un controsoffitto, sono state riportate a vista.
La cucina è il gioiello della zona giorno: organizzata a C, è ‘racchiusa’ all’interno di un box in ferro e vetro con passa-vivande; le pareti vetrate separano ma al tempo stesso fanno passare la luce tra i due ambienti.
All’ingresso, dove c’era il cucinotto è stato creato il 2° bagno e un disimpegno con lavanderia.
La zona notte è ora composta da 2 camere, una stanza con armadi più ripostiglio e il bagno principale.
Lo stile? Un mix molto curato ed equilibrato tra stile classico all'inglese e il mood industriale.