Il sistema Rautitan facilita la realizzazione di impianti ad anello in tempi ultrarapidi [Rehau, su progetto].
CasaFacile > Ristrutturare > Evita la stagnazione dell’acqua nella rete domestica con l’impianto idrico ‘ad anello’
Con l’impianto idrico ‘ad anello’ l’igiene dell’acqua è garantita al 100%
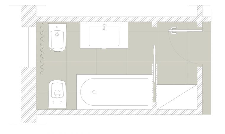
Per l'impianto di distribuzione dell'acqua calda sanitaria, puoi optare per uno schema distributivo delle tubazioni ‘ad anello’ (detto anche a circuito chiuso), molto utilizzato nei paesi del Nord Europa e che si sta diffondendo anche in Italia perché garantisce la massima igiene dell’acqua potabile ed evita i fenomeni di stagnazione. Una soluzione ideale anche per le seconde case, in cui l’impianto idrico si utilizza meno. L'impianto idrico 'ad anello' è una soluzione che puoi fare realizzare con il sistema Rautitan di Rehau.
Come funziona
Tutte le utenze (quindi vasca/doccia, lavabo e sanitari) sono collegate ‘in serie’ tra loro, in un circuito chiuso che garantisce il ricambio generale dell’acqua nell’impianto, anche quando si utilizza un solo apparecchio: ogni punto di prelievo è collegato a quello successivo mediante dei particolari raccordi (detti terminali) ad angolo che, privi di strozzature, agevolano il flusso dell’acqua ed evitano il proliferare di batteri. È importante, in fase di progettazione, individuare già l’utenza che verrà utilizzata maggiormente dalla famiglia (per esempio il lavabo) per collocarla alla fine della serie, così da potenziare i benefici di un totale ricambio d’acqua.