«Le tonalità fresche ma calde tanto amate da Leighla richiamano i colori delle case romane del primo ’900: un connubio perfetto in questi ambienti in cui la tradizione locale convive con lo spirito eclettico della proprietaria».
Accanto all’ingresso c’era
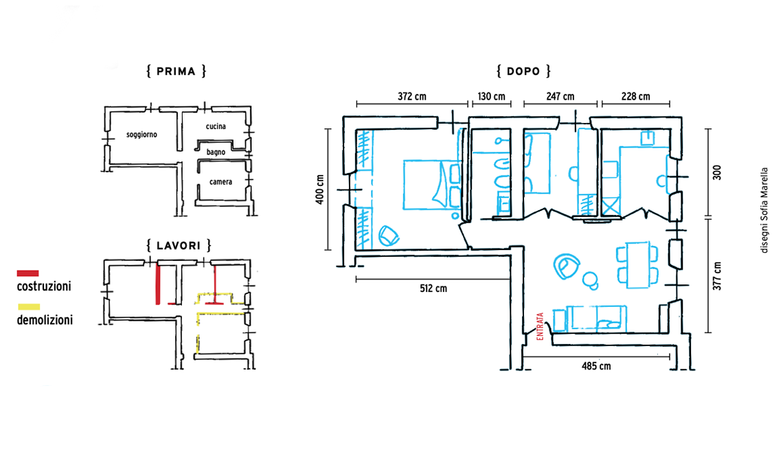
la camera da letto, seguita dal bagno: una posizione scomoda che di certo non dava la giusta intimità alla stanza. Così Cecilia ha proposto a Leighla di invertire le zone notte e giorno, anche per sfruttare al meglio
il triplo affaccio della casa.
Sul divano componibile Söderhamn rivestito con fodera Gransel [Ikea, cm 198x99x83h], cuscini in varie dimensioni e fantasie [Eklettikarte] e quadrato con riquadri rosa [L’Opificio]. Accanto alla finestra cabinet Loreto in legno laccato nero con ante in rattan incannucciato [Maisons du Monde, cm 90x40x115h], con specchio Petit Miroir Convexe [Cargo]; sulla parete stampe con vari soggetti [The Poster Club].
La tavola è apparecchiata con tovaglia e tovaglioli in lino grigio e rosa [La Fabbrica del Lino], piatti della linea Fiori dal decoro floreale impresso su vetro di Murano in collaborazione con Andrea Merendi [Vetrofuso di Daniela Poletti], set di posate in acciaio finitura rame [Bitossi Home], calici in vetro [Villa d’Este Home Tivoli], alzatina e brocca a righe bianche rosa [Eklettikarte].
Sul tavolo Rhea con gambe metalliche e piano in vetro temperato con stampa effetto marmo bianco [Maisons du Monde, cm 140x90x 76,5h] e accompagnato dalle sedie nere con schienale in paglia di Vienna [Cargo], vasi colorati [Polspotten da De Masi]. Sospensione a lanterna sul tavolo [Piccola Bottega TNC Luce].
Il soggiorno è stato ricavato dove prima c’erano camera, bagno e corridoio di ingresso e ha guadagnato anche quella che era la finestra del servizio. Qui è stata posizionata la zona pranzo, arredata con mobili in stile vintage in nero con dettagli in paglia di Vienna.
La cucina ha mantenuto
la sua posizione angolare ma è stata rimpicciolita per fare posto allo studio.
I due nuovi locali si richiamano nell’uso del legno di rovere così come nei colori pastello dei rivestimenti in tappezzeria e in maiolica delle pareti. Alle zellige acquamarina Cristina ha accostato dettagli in palette così come volumi morbidi o sfaccettati che riprendono il taglio a scaglia di pesce delle piastrelle.
Sul top della cucina: vaso bianco
in grès vetrificato con bolle [H&M Home], centrotavola Anemone di Arianna De Luce [da Galleria Mia], tea towel [da Galleria Mia, piastra e bollitore da [Cargo]. Sulla mensola, vaso Minori di Reinaldo Sanguino per Made in EDIT [da Galleria Mia], bicchieri turchesi [Eklettikarte], vaso rosa [Polspotten]. Sospensione Chestnut in carta origami [Studio Snowpuppe], fascia paraspruzzi realizzata con zellige a scaglie di pesce [Mosaic Factory]; porte vetrate verniciate Ral 6034.
Organizzata in fondo a
un breve disimpegno, si trova al posto del vecchio soggiorno: la camera da letto gode di due finestre mentre il bagno è cieco (la metratura della casa lo consente) ma prende luce da una ‘veletta’ vetrata posta in alto per tutta la sua lunghezza.
In camera, il letto è vestito con lenzuola azzurre [La Fabbrica del Lino], cuscino tinta unita e a pois[L’Opificio], lampada da tavolo con base ottone [Piccola Bottega TNC Luce], cornice fatta a mano [Eklettikarte], pouf [Eklettikarte]. Sulla panca realizzata su disegno come l’armadio, cuscino
una palette fresca
Pur godendo di tantissima luce derivante dal doppio affaccio,
la camera di Leighla è molto intima
e personale soprattutto grazie alla scelta di dettagli e tessili nei suoi colori preferiti. Questo effetto è dovuto anche alla presenza del controsoffitto che qui è stato lasciato per creare una intercapedine che isola termicamente e acusticamente la stanza dal
terrazzo condominiale sovrastante.
Anche in camera i colori scelti da Cristina sono quelli della zona giorno e scaldano nonostante siano in gran parte freddi. con scritta [Eklettikarte].
Mobile bagno realizzato su misura con cassettoni laccati turchese e top bianco più maniglie ottone, cementine multicolore realizzate su disegno [Le Cementine], specchio Clovis dal mood classico [Sklum], asciugamani rosa con bordo a contrasto [da Galleria Mia].
Il bagno, ricavato fra la camera e lo studio, è privo di finestra, quindi
per renderlo più luminoso, anche qui insieme al bianco è stata creata una palette pastello con dettagli dorati.
Il tocco in più è dato dalle cementine che rivestono il pavimento e che sono state realizzate su disegno di Cecilia. Ai colori rosa e terracotta del decoro delle cementine si richiamano gli accessori e i tessili proposti da Cristina.
Ecco un esempio di come ridisegnare con sapienza gli spazi dia l'impressione di moltiplicarli e non finisce qui: nella zona giorno le porte vetrate in un colore inedito sono la chiave di volta del progetto.
Qualche anno fa Leighla, una social media manager americana a Roma per lavoro, si innamora dell’ex rione operaio Testaccio sorto a partire dal 1910 e oggi quartiere vivacissimo. Qui trova un appartamento all’ultimo piano di un edificio dell’epoca di cui le piacciono atmosfera e triplo affaccio ma non la distribuzione: camera e bagno all’ingresso e, in fondo a un lungo corridoio, cucina e soggiorno. Dopo una ricerca online, contatta Cecilia Tomassini di Studio L2architettura, di cui apprezza lo stile, per la ristrutturazione.
Le scelte fatte
«Leighla voleva un unico ambiente giorno con cucina a vista, che potesse godere di tanta luce, una camera da letto, un bagno e un piccolo studio che potesse diventare stanza per gli ospiti» dice Cecilia. Così si ridistribuiscono totalmente gli spazi per renderli più funzionali e luminosi: il living si sposta all’ingresso, camera e bagno al posto del vecchio soggiorno. E la cucina? «Con un piccolo ‘trucco’ l’abbiamo separata dal salotto ma tenendo i due ambienti comunicanti: una quinta a T divide studio e cucina e come filtro con il living ci sono due grandi porte a vetri».
Il tocco di stile
Per dare ancora più luminosità e calore, la palette di colori passa dal turchese al cipria, con dettagli ottone; le tinte più accese sono presenti sui tessili comprati durante i viaggi da Leighla. E a dare il tocco finale ci ha pensato Cristina Gigli che ha aggiunto sedie, lampade e accessori che danno ancora più personalità a questo piccolo-grande appartamento.