In questo elegante appartamento milanese
ristrutturato da Studio Pisk vive Alina, docente di Giurisprudenza, con il marito, i due figli e la corgi Adelina. Il relooking del living è partito
dal divano Camaleonda
disegnato da Mario Bellini nel
1970: rivestito in pelle moka,
abbina le linee sinuose alla
possibilità di combinare i
moduli in base alle occasioni.
Dal suo colore deriva la
palette di bianchi, sabbia e
beige abbinati a un nero
elegantissimo e all’originale
accento del color senape.
«Un dettaglio del palazzo ha colpito
Alina», dice Vanessa Pisk, «ed è il profilo
curvo dei balconi. Ci ha chiesto
di riproporlo in casa». È da qui che
nascono i frontali cannettati del
mobile in soggiorno e i semi-archi
delle pareti e delle porte vetrate
disegnate da Studio Pisk. Al posto del lampadario è stata
installata la sferica Dioscuri di Michele De Lucchi:
per sottolinearla è stata realizzata una cornice
circolare in gesso che corrisponde al tappeto a terra. Sul mobile in legno cannettato con top in marmo
realizzato su disegno di studio Pisk da [Falegnameria F.lli Casali], scatola
Napea e vassoio Auset avorio e nero [Vical Home],
calici Firenze [Casarialto], vasi [HKliving da Design & Lifestyle Italia], fermalibri Booknd in marmo nero
[Woud] e lampada Atollo Metallo [Oluce].
Per sottolineare
gli imbottiti curvy nel living
è stata scelta
una credenza
dal forte accento
geometrico: è Ritratti di [Mogg,
cm 120x47x165h]. Accanto, poltrona
Rico Louisiana [Ferm Living] con cuscino Carrè
Degradè [L’Opificio]. A soffitto, lampada Dioscuri [Artemide]. A parete, opera d’arte Ambra Fossile [Paolo Fiore].
Nel soggiorno l’intera
parete di fondo era
caratterizzata da una
grande finestra: «Ci è
venuto naturale proporre
ad Alina di rendere vetrata
anche quella tra salotto e
cucina-pranzo» racconta
Vanessa. In questo modo i
due ambienti sono in
costante connessione
(anche grazie alla scelta di
arredi importanti ma
minimali nelle stesse
nuance e stile) e la luce può
fluire liberamente. Sulla credenza, vaso in terracotta
Musa nero [ICS], decoro Mekubo
nero [La Redoute] e cestino
Turn rettangolare [Antonino Sciortino].
Sospensioni Kandinsky smoked
brown [Pholc]. Sul tavolino in primo
piano, ciotola in porcellana
Checkerboard [Prada],
scatola Ratna avorio nero e oro
[Vical Home] e bicchiere
[Mario Luca Giusti].
Alle spalle del divano è stata ricavata la zona pranzo
perfettamente in linea con il mood del soggiorno. Super chic la colonna a vetro fumé per
esporre il servizio in porcellana black&white. La parete con
porta filomuro che dà sul corridoio è
rivestita con una wallpaper botanica: è Samue colore KMN08 E collezione Kimono [LondonArt].
In cucina le linee
sinuose di tavolo e sedie spiccano sia sui listelli del
parquet posato a spina italiana sia sulla cucina in
linea in stile minimal ma in una calda nuance
bronzata. Tavolo Millerighe con piano in marmo nero
marquinia [Ibfor, cm 100x240] con sedie CH24 Wishbone Chair nere
[Carl Hansen&Søn]. Lampadario Large Pendant [Seyvaa]. Idropittura codice colore E6.05.68 [Sikkens], carta da
parati Samue colore KMN08 E collezione Kimono [LondonArt]. Sul tavolo, vasi in ceramica cappuccino [HK Living
da Design & Lifestyle Italia] e Glacies in vetro nero [Aytm],
alzata nera [La Redoute], bicchiere Dolce Vita [Casarialto].
La cucina è in una nuance più scura rispetto
alle pareti e il look minimal la rende quasi
invisibile dal soggiorno. Alzata e top in grès
Calacatta richiamano il marmo del soggiorno. Sul tavolo alzata Sapoto [Gejst],
ciotola Checkerboard e piatto Stripes entrambi di [Prada]. Placche luce Living Now [Bticino]. Le sedute sono le iconiche Whishbone total black di [Carl Hansen&Søn].
Il top in marmo chiama una mise en place chic anche senza tovaglia. L’apparecchiatura è allestita con: tovaglioli sfrangiati a mano in puro lino italiano H5 [Casarialto],
posate collezione Neutra finitura mirror PVD 2Black [Sambonet], caraffa Firenze,
bicchieri acqua e bicchieri vino serie Dolce Vita [Casarialto],
ciotole Checkerboard e piatti dessert Stripes in porcellana in bianco e nero [Prada].
Per la camera padronale Vanessa ha scelto un rosa tenue. Sul letto Biggie in pelle con set
copripiumino in raso, cuscini,
copriletto in velluto e plaid con
frange [tutto di Twils], vassoio Auset
avorio e nero [Vical Home]
più tazza e piatto Grès antracite
[KnIndustrie]. Sul comodino Tetris
[Twils], lampada Laguna [Artemide].
Wallpaper 3D Rayures Jumelles
Pilastre colore Au-delà des apparences
[Elitis], idropittura colore D2.15.55
[Sikkens], tappeto Ålægres 440 straw
[Kasthall], lampadario Salinas
[Eichholtz], tende [I Vigna].
Il rosa in versione cipria e
nude è il colore
preferito da Alina,
che lo ha voluto
per la camera
matrimoniale e il
bagno padronale. In
entrambi gli
ambienti queste
nuance spiccano
sul bianco di
armadio e soffitto
nella stanza, e
sanitari più
superfici in marmo
nel bagno. Il tema
delle curve viene
ripreso anche qui
per rendere gli
spazi più fluidi ed
eleganti. Piastrelle Rombini Rose [Mutina],
colore Ducorama H YR 7653 [Duco],
sanitari Atelier [The Artceram],
rubinetterie Uno Ring oro matt
[Bellosta].
Nel
bagno ritorna il
canneté presente
nel living. È sia sul
mobile lavabo sia
sulle piastrelle 3D
della zona vasca. Il dettaglio
perfetto? Le
rubinetterie e
placca in finitura
dorata satinata.
Sul mobile lavabo con
specchio, entrambi realizzati su
disegno di Studio Pisk da [Falegnameria
F.lli Casali], vaso crema [HKliving da
Design & Lifestyle Italia]. applique
S14d [Zangra], sospensione
IC Light S2 [Flos],
asciugamani Nettare in bianco e rosa
boho [Fazzini], tappeto Damascus
Rosette [Abyss & Habidecor].
Nella cameretta Alina
non voleva un armadio
incombente. Vanessa
ha pensato a una
parete attrezzata
abbinando una panca
con cassetti che ospita
la tv a un elemento
contenitore pensile
fino al soffitto. Il parquet è nuovo e
riprende in posa
ed essenza quello
degli altri locali [Colombo Parquet]. Sospensione Mobil 100 in
ottone [Pholc], tappeti Doris 80
White Pearl e Arkad Uni 3011 Pastel
Green [Kasthall]. Scrivania e
mensole realizzate come il
soppalco da [Falegnameria F.lli
Casali] su disegno di Studio Pisk
come la ringhiera in metallo di
[Martino1930]. Sullo scrittoio,
lampade Leaf [Muuto];
poltroncina girevole Rico [Ferm
Living]. Armadio laccato
bianco [Moretti Compact].
Vanessa ha disegnato un
soppalco che ospita l’area
notte con un sommier con
letto estraibile per gli ospiti.
Davanti allo scrittoio c’è il
volume del bagno, piccolo
ma con doccia da 140 cm. La zona sonno
rimane così riparata dalla
luce che entra dalla finestra.
Il colore della stanza è preso dalla punta di azzurro della tappezzeria Savuti colore
Blush and Sky Blue on Duck Egg di [Cole
& Son].
Idropittura codice colore P8.12.61
[Sikkens]. Sommier
con secondo letto estraibile, set
copripiumino in raso, cuscini,
copriletto in velluto e plaid a nido
d’ape [tutto di Twils]. Sul tavolino in
ottone, lampada Laguna [Artemide], applique
Liila Muuse Small [Nuura].
Il bagno en suite dei ragazzi è classico in bianco
e nero con un
tocco di azzurro
chiaro per essere
luminoso. Idropittura codice colore P5.05.81 [Sikkens], pavimento in
marmo Ottagono&Tozzetto bianco Carrara e nero Marquina [Fangorosa],
rivestimenti Metro talco diamantato e Metro lava [Ce.Si]. Lavabo con
colonna, sanitari e rubinetterie collezione Carmen in nero [Roca da BGB],
placca di comando di risciacquo [Bellosta].
Box doccia in finitura cromo
acquistato da [BGB], accappatoio Pied de Poule in cotone [Fazzini].
Maniglia della porta, come in tutta la casa, H 1057 retrò [Valli Maniglie].
Il balcone è arredato
come un’ulteriore zona
conversazione-relax. Il
divanetto dalla forma
sinuosa è nero come le
sedute del pranzo e
circondato da piante diventa
un prezioso angolo green. Progetto del verde a cura di [Lefty Gardens], divano da 2 posti e tavolino da outdoor Bramant in acciaio in finitura nera [Kave Home], cuscino Longue 2675 [L’Opificio], lampada da tavolo Cassias ricaricabile [Cozy Living da Design &
Lifestyle Italia], vassoio Donovan e bicchieri Milly [Mario Luca Giusti].
Nell'ingresso, i mobili vecchio
stile insieme alle
porte con sopraluce
cieco nella stessa
essenza rendevano
l’ambiente greve.
Con arredi più
minimali, le porte a
vetro e lo specchio
che riflette la
finestra, ora tutto
è più luminoso. Specchio e panca realizzati su disegno di Studio Pisk da
[Falegnameria F.lli Casali] con cuscino Carrè 3043 [L’Opificio, cm 43x43] e vaso Puma [H&M Home], luci a soffitto Liila 1 small in
vetro opalino e ottone [Nuura].
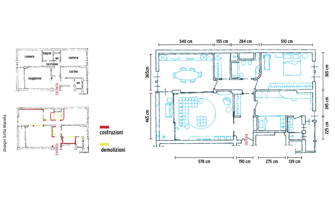
La stanza padronale adesso è posizionata dove
prima c’era la cameretta.
Ora l’uso del rosa tenue e
la presenza di pochi
elementi essenziali ma
caratterizzanti ha dato
personalità all’ambiente.
Accanto al soggiorno
c’era la camera da letto
padronale che l’affaccio su
strada rendeva rumorosa.
La cucina-pranzo è stata
spostata qui e ora si
affaccia sul soggiorno e sul
lungo balcone piantumato.
Come ‘trasportare nel presente’ un appartamento anni ’70, senza tradire la sua origine? Studio Pisk ha giocato di echi stilistici: le righe, il marrone, i tocchi giallo senape... e un divano-icona (il Camaleonda di Mario Bellini) nato proprio nel 1970
È il 2016 quando Alina arriva a Milano con la famiglia: acquistano un appartamento in un edificio Anni ’70 che ha la classica organizzazione con living e cucina vicino all’ingresso e zona notte in fondo al corridoio, con la camera padronale affacciata sulla strada come il soggiorno.
All’inizio non fanno lavori ma dopo qualche anno, anche a causa della via rumorosa, decidono di ristrutturare la casa per renderla anche più ‘silenziosa’ e funzionale ma senza perderne lo spirito originale. Alina, appassionata lettrice di CasaFacile, contatta Studio Pisk che, con l’aiuto tecnico di Studio A Capo, realizzerà i suoi desideri.
Le scelte fatte
«Il primo step? Accorpare la cucina al living in modo che tutta la zona giorno si affacciasse su strada e potesse godere del balcone» racconta Vanessa Pisk. «Ora la cucina-pranzo è al posto della stanza padronale, che si è spostata dove c’era la cameretta, che a sua volta si trova dove c’era la cucina».
In questo modo, non soltanto la zona notte gode della vista del giardino interno, ma è anche molto silenziosa. La ridistribuzione degli spazi ha permesso di creare in ingresso un ampio armadio a muro e grazie alle grandi porte in ferro e vetro la luce circola copiosa nella zona giorno.
Il tocco di stile
Per Alina era importante rifarsi al contesto: Studio Pisk ha creato per il living una palette Seventies minimale ma calda di colori neutri, lasciando le nuance pastello alla zona notte. E il gioco di geometrie nette a contrasto con i dettagli curvi completa il mood.