Le icone del design sono la passione della proprietaria di questa casa, Mariangela, ingegnera milanese. Per arredare il living, diviso dalla cucina da una vetrata in stile Art Dèco, ha abbinato al tavolo Tulip una serie di Eames chair in materiali e forme diverse. Le lampade come la Taccia o la 2026 chiudono il cerchio in perfetto equilibrio. Divano-daybed rivestito in velluto senape [Valentini da Tonetti Arredamenti], cuscini décor in varie fantasie e dimensioni [Élitis]. Sul pavimento in parquet prefinito in rovere a spina francese [Original Parquet], tappeto Sliding [Karpeta]. Credenza di ispirazione vintage realizzata da un artigiano, trovi modelli simili di [Lack00danishlab e Maisons du Monde]. Quadro a olio Sybil della serie Moonlight [Luca Ballestra, cm 110x110].
La parete e la porta in ferro e vetro con archi sono realizzate su disegno dello Studio Lascia La Scia. La libreria si ispira all’iconica Infinito di Franco Albini.
Dalla cucina si lavora e si mangia guardando il soggiorno ma non viceversa: la soluzione ideale per far passare la luce ma non... l’eventuale disordine!
Mariangela desiderava una casa eclettica come lei: l’appartamento è degli Anni ’70 ma ristrutturandolo
gli è stata regalata un’allure francese con il parquet a spina, la boiserie a cornici sulla parete dietro il tavolo e la parete in metallo e vetro che divide salotto e cucina. Non solo, non mancano mobili vintage perfettamente accostati a pezzi classici del design internazionale. Tavolo Tulip, design Eero Saarinen [Knoll, ø cm 120x 72h] con sedie Wire Chair [cm 49x51x85h], Eames Plastic Side Chair RE DSR [cm 46,5x 55x83h] e Eames Plastic Armchair RE DAR [cm 62,5x60x83h], tutte di [Vitra]. Sospensione Model 2065 con paralume bianco e nero [Astep, ø cm 53,8x132,4h], libreria vintage di cui trovi modelli simili di [Zalf, Alf DaFrè e Rimadesio]; scimmietta in legno, design Kay Bojesen [su » finnishdesignshop.it, cm 20h] e lampada da tavolo Taccia, design Achille e Piergiacomo Castiglioni [Flos, ø cm 49,5x64,5h].
La cucina non è grande ma
è completa di tutto grazie all’organizzazione a C con fuochi e lavello su due lati adiacenti, ottima dal punto di vista dell’ergonomia. Per non risultare troppo invasivi, i pensili sono stati installati solo sulla parete meno visibile dal living e il muretto che ospita la vetrata cela anche un bancone lavoro/ snack servito
da una coppia di sgabelli bar. Cucina con ante in colore Minerva e piano di lavoro in Caranto Calacatta Gold [Veneta Cucine], sgabelli bar neri modello Form in polipropilene e metallo [Normann Copenhagen, cm 42,5x42,5x77h], frigorifero freestanding a doppia porta FAB32RBL5 nero [cm 60,1x72,8x196,8h] di [Smeg] come il tostapane [cm 32,5x19,5x20h]. A terra, piastrelle effetto cementine Tanger [Harmony Inspire, cm 12,3x12,3]. Lampada a parete con due bracci: ne trovi di simili di [La Redoute, Serge Mouille e Delightfull]. Miscelatore nero simile di [Guglielmi, Grohe e Leroy Merlin].
In camera Mariangela ha voluto il colore e ha scelto con le architette una palette di rosa molto avvolgente ma soprattutto una carta da parati di grande effetto con aironi in taglia XL. Per incorniciare la wallpaper è stata realizzata una boiserie a tutta altezza in legno cannettato che, da un lato, prosegue sull’armadio.
Il letto a sommier è vestito con lenzuola rosa [Casa Parini], copriletto più plaid [Marina C.] e cuscini in tinta unita e fantasia geometrica [Élitis]. Sulla parete, carta da parati rosa con maxi aironi Heron [Gucci], sospensione scultorea Gravity 2 [Forestier, ø cm 68], lampada da terra AJ in nero [Louis Poulsen, ø cm 27,5x130h], armadio e boiserie in legno cannettato realizzati su disegno di Studio Lascia la Scia. Sul comodino Gladom nero [Ikea, ø cm 45x53h], lampada da tavolo Ombre [Northern, ø cm 30x47h].
Il bagno è un gioco di contrasti in perfetto equilibrio tra loro: a terra c’è un pavimento in lastre di grès effetto resina grigio chiaro, sulle pareti è stata realizzata una finta boiserie dipinta azzurro polvere delimitata da una cornice in poliuretano e completata fino a soffitto dalla più classica delle tappezzerie firmata William Morris.
Un tocco vintage è dato dal mobile lavabo realizzato partendo da una credenza
e dalla rubinetteria rétro; a tutto ciò si aggiunge una punta di stile industrial data
dal box doccia. Il mobile lavabo è stato realizzato modificando la credenza Wapong in noce con serrandine [La Redoute, cm 110x 50x80h], boiserie dipinta con smalto opaco colore Inchyra Blue [Farrow & Ball], wallpaper Golden Lily [Morris & Co. da Verdeolivia], specchio e lampada sono vintage, simili da [Mercatino Penelope e Carrozzeria ’900]. A terra piastrelle Insideart [Ceramica Sant’Agostino], rubinetteria e accessori Canova in oro rosa spazzolato [Cristina Rubinetterie].
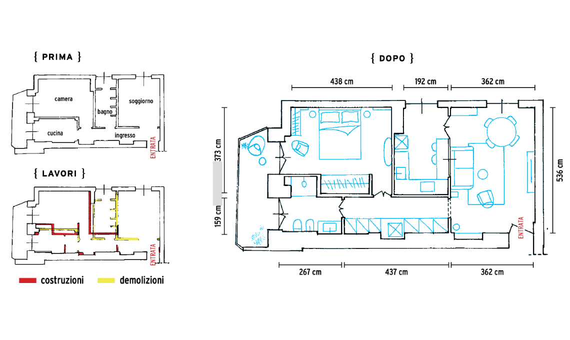
Il salotto prima era separato dall’ingresso e, dietro la parete con il divano, c’era un bagno fin troppo grande mentre la cucina era distante e vicino alla camera. Eliminato l’ingresso e scambiate le zone di servizio, il living ora è più ampio e comunica con la cucina attraverso una parete vetrata di grande impatto.
Prima della ristrutturazione
il servizio era in mezzo alla casa: ora questo locale è stato trasformato in cucina
e l’accesso avviene dal soggiorno e non più dal corridoio: questo, su suggerimento delle architette, è diventato un utile spazio armadiato con lavanderia.
Prima la camera era soffocata da un armadio a tutta parete di fronte al letto. Con lo spostamento del bagno una doppia nicchia accoglie da un lato la doccia e dall’altro un nuovo armadio su misura.
La cucina era nel locale più lontano dal living: ora qui
c’è il bagno che così è accanto alla camera. La presenza della portafinestra non permetteva l’inserimento di una doccia comoda, quindi è stata ‘rubata’ una piccola porzione alla stanza da letto creando una nicchia in cui ricavarla.
Diresti mai che questo è un appartamento anni ’70? Con il giusto parquet e cornici bianche sulle pareti ha cambiato sapore. Le porte vetrate fanno da ‘macchina del tempo’ e il design sixties completa la scena. Guarda che cambiamento!
Dopo anni in cui è stata in affitto in questa casa, Mariangela, ingegnera giramondo per lavoro e per passione, ha deciso che doveva diventare sua. Dopo averla acquistata l’ha ristrutturata per cucirsela addosso e renderla più funzionale. Insieme alle architette dello Studio Lascia la Scia si è scelto di rivoluzionare la distribuzione dei locali, che era poco pratica, e di usare i colori e dare spazio alle tappezzerie per caratterizzare alcune stanze.
Le scelte fatte
Eliminato l’ingresso, ingombrante ma non sfruttabile, sono stati scambiati bagno e cucina per creare una zona notte più intima e una zona giorno più ampia e comoda; infine il ridimensionamento del corridoio ha permesso di inserire un lungo armadio realizzato su disegno, che ospita anche la zona lavanderia totalmente nascosta.
La cucina ora si apre sul soggiorno attraverso una parete vetrata di ispirazione Art Déco che crea una connessione visiva tra gli ambienti. Ogni locale è definito da un colore dominante: in camera troviamo il rosa, in bagno c’è l’azzurro, in cucina il verde polvere e in soggiorno una palette neutra di bianchi e neri scaldata da un tono d’accento come il giallo oro del divano.
Il tocco di stile
In ogni stanza convivono elementi di epoche diverse che si esaltano a vicenda: dalle finiture rétro delle pareti agli infissi dal sapore industrial, dai pezzi icona del design ai mobili in stile vintage originali o realizzati ex novo. Una casa ‘cozy’ con tanti spunti da copiare.