Il soggiorno della casa di Wanda, chirurgo, dopo la ristrutturazione. L'appartamento di 70 mq si trova a Rapallo, in Liguria. Il soggiorno prima era uno
stanzone lungo e stretto,
buio e pieno di mobili. Scambiando bagno e cucina, ora quest’ultima fa
parte del living. «Eliminato il tramezzo, è rimasto
a vista un pilastro» racconta Vanessa Pisk, che ha curato il restyling. «Invece di
mascherarlo lo abbiamo evidenziato rivestendolo
con le stesse piastrelle della fascia paraspruzzi
della cucina». E per dare risalto anche alla trave
del soffitto, la si è dipinta nella stessa nuance.
La moodboard. «La palette di azzurri
e turchesi è perfetta
abbinata al bianco
luminoso e scaldata
da rossi e terracotta.
E i decori marini e
botanici fanno sempre
estate» dice Vanessa Pisk.
Dal living-cucina si accede al terrazzo, anche questo rivisto e sfruttato come 'camera' in più. Sul pavimento in piastrelle della collezione Stone Look
Carácter Mix Multicolor [Marazzi], tavolo da esterno in Artwood [Jysk]
con poltroncine Remind 3735 in polietilene [Pedrali], vassoio in
ferro dipinto a mano [Les-Ottomans], caraffa Pesciolino in vetro
trasparente con pesciolino rosso e bicchiere Millerighe da acqua
[Casarialto], cestino Track bianco
[Normann Copenhagen]. Piante in
tutta la casa e sul terrazzo fornite da
[Il Geranio Azienda Agricola].
Per l’apparecchiatura, tovaglia in puro lino
Laguna Triangolo, tovaglioli in puro lino color
smeraldo sfrangiato a mano, bicchiere coll.
Dolcevita grigio, bicchiere da vino Petalo color
tiglio, tutto di [Casarialto]. Posate Bamboo Cutlery
[Les-Ottomans], sottopiatto Sfumatura con ossido
di rame nero sfumato e piatto Frao Rosso, piatti ovali
Pesce abbocca tutti in maiolica di Faenza [Egal Ceramiche].
Anche il terrazzo
era stato molto
trascurato e
praticamente era
inutilizzato. Con la
ristrutturazione è
stato ripavimentato,
riempito di piante
ed è diventato una
stupenda stanza
da pranzo open air. «Una delle cose che ho sempre amato di questa casa è il
terrazzo che circonda l’appartamento» dice Wanda.
«Dove è più profondo abbiamo organizzato una seconda
zona pranzo. Vanessa ha avuto l’idea giusta
proponendoci di trasformare la finestra in portafinestra
per raggiungerlo più facilmente. Adesso, non solo il
soggiorno si allunga verso l’esterno ma entra più luce!». Piante fornite da
[Il Geranio Azienda Agricola].
Il tavolo della cucina è realizzato su disegno di
Studio Pisk da [Falegnameria Fratelli
Casali] ed è completato da sedie
Tribeca 3665 color RA100E [Pedrali].
Sul top sfera e cilindro Brushy
più tazzina Sixty in maiolica di
Faenza con ossido di rame nero [Egal
Ceramiche]. Sospensioni Lorosae
bianche [Nemo Lighting, ø cm 20]. Cucina modello Color Trend
laccata colore Bianco Ice Opaco con
piano in grès bianco [Stosa, fornita
da Elce Arredamenti]. Piastrelle
di rivestimento del paraspruzzi e del pilastro Flauti [Ceramica
Vogue]. Idropittura sulla trave
codice colore P0.10.40 [Sikkens],
parquet fornito e posato da [Paolo
Colombo Parquet]. Placche luce Living now [Bticino].
La tavola è apparecchiata con runner misto lino a tinta
unita, tovagliette in tessuto vegetale, tovaglioli in puro cotone con
palme ricamate e piatto piano in ceramica a righe circolari di
[Coincasa],
posate del set Gold Bamboo Cutlery [Les-Ottomans],
caraffa Pesciolino Rosso in vetro trasparente [Casarialto],
calici Veneziano Mixology 52 cl soffiati e lavorati a mano [Zafferano], ciotola in vimini Udongo [La Redoute].
Da bagno a... cucina! La
precedente distribuzione degli
spazi era bizzarra,
ora tutto è più
funzionale con la
zona cottura ampia
e ben accessibile
aperta sul salotto,
che così, acquista
un’altra finestra. Sul top
della cucina, vaso Inka colore caramello [Oyoy], vassoio Bastian
Contrario [Casarialto], sottopiatto Sfumatura in maiolica di
Faenza con ossido di rame nero sfumato [Egal Ceramiche],
caffettiera Linea Classica azzurra da tre tazze [Angelina Made In
Italy] e svuotatasche Brushy con pennellate in maiolica di
Faenza con ossido di rame nero [Egal Ceramiche], passatoia Vera Pop
colore Jade Pale Turquoise [Pappelina, cm 70x200].
Questa nuance di verde
è stata scelta da Wanda
perché desse carattere
a tutta la casa, al punto
che anche le porte e gli
elementi architettonici
ne sono ‘rivestiti’... Così
si creano anche giochi
di pieni e vuoti unici. Le vecchie porte
erano irrecuperabili:
Vanessa le ha fatte
rifare uguali con le
maniglie di Gio Ponti
riprendendo il mood
originale della casa.
«Questa casa, che io ho frequentato fin da
bambina anche in inverno, doveva dare
la possibilità di viverla in tutte le stagioni
anche con ospiti (soprattutto gli amici dei miei
figli)» dice Wanda. Vanessa ha proposto che il
divano del soggiorno si trasformasse in letto
matrimoniale, mentre il grande tavolo della
cucina può ospitare fino a 8 persone. Inoltre,
lasciando aperta la porta tessile che chiude
la camera dei ragazzi, si può ricavare un unico
ambiente ampio e versatile, giorno e notte. Divano letto Ghost 15 in lino bianco con bordo verde acqua [Gervasoni],
applique Mini Lampe De Marseille bianca [Nemo Lighting],
tavolino Play rosso [Hubsch, cm 50x35x43h] con sul top piatto
frutta stoneware con decoro [Coincasa], caraffa
Firenze in vetro trasparente e colorato Tiglio e bicchiere da vino Petalo
colore tiglio [Casarialto].
Sul tavolo runner misto lino a tinta unita e tovaglioli da cocktail in cotone
colorati [Coincasa], sfera Brushy
piccolina con pennellate [Egal Ceramiche], caraffa Firenze in vetro
trasparente e colorato Tiglio, bicchiere da vino Petalo color tiglio
[Casarialto], tazzina Sixty in maiolica di Faenza
con ossido di rame nero [Egal Ceramiche]; piatto piano
stoneware a righe e piattino pane stoneware con decoro palme
[Coincasa], posate Bamboo Cutlery
[Les-Ottomans], vassoio [Casarialto].
«Con Vanessa abbiamo fatto un lavoro
importante perché siamo riusciti a creare una
casa su misura per la mia famiglia di oggi
senza rinunciare del tutto al passato» dice
Wanda. «I dettagli come i colori, la posa del
parquet e le porte ci riportano agli Anni ’40,
l’epoca nella quale venne costruita, mentre la
ridistribuzione è contemporanea. La cosa
più bella? Aver trovato il giusto posto ai quadri
che i miei genitori collezionavano con amore».
L’altro lato del soggiorno
era adibito a studio ma
tra pavimento e arredi
era soffocante. Ora che è
stato trasformato in
stanza dei ragazzi è uno
spazio bianco e luminoso.
Letti Matteo
con cassetti/seconda rete estraibile, in lino bianco [Villa Salotti],
copriletto Dialogo colore Surf [Fazzini], cuscini Ray Vanilla
[Pappelina] e Ikat [Les Ottomans], vassoio Vera rosso [Pappelina] con
bicchiere Millerighe [Casarialto]. Armadio [Binova] su
disegno di Studio Pisk, sospensione Chand Pendant Round Natural
[Hubsch], applique Cylindrique Petite e Mini Lampe
De Marseille [Nemo Lighting], passatoia
Bob colore mud-vanilla [Pappelina]. Tavolino
Sablas rivestito in corda [La Redoute] con piatto Righe
rosso e bianco, bicchieri Rim e lampada
ricaricabile Ocean Cay, tutto [Zafferano].
Dei tanti mobili che
c’erano nella camera
da letto Wanda non
voleva tenere nulla,
anche perché la
maggior parte era
rovinata. Ma
Vanessa è riuscita a
convincerla a
conservare il
particolarissimo
armadio. Letto Tolò con tessuto bianco/panama e struttura in legno naturale
[Noctis] vestito con lenzuola in lino color mastice con angoli, sopra Pure e federe Pure più copriletto Pure reversibile colore avorio-mastice, tutto di [Il Borgo delle Tovaglie]. Copriletto
Dialogo colore Surf [Fazzini]. Cuscini in velluto a righe
prodotti da [Vecchio Mio], wallpaper Rayures colore verde
cactus [Papermint], sospensione Chand
Pendant Trapeze Natural [Hubsch], applique À Volet
Pivotant bianche [Nemo Lighting]. Sul letto, vassoio Bastian Contrario [Casarialto], piatto frutta [Coincasa] e mug
Guzzini vintage da [Vecchio Mio].
«Le righe, soprattutto in tonalità chiare,
portano subito alla mente le cabine e i lettini
degli stabilimenti balneari», racconta Vanessa,
«per questo abbiamo pensato di riportarle sia
sulla testata del letto (che ricorda una brandina
da spiaggia) sia sulla parete che lo accoglie».
L’atmosfera è leggera, avvolgente e rilassante. Prima
scompariva, ora
l’armadio con i
riquadri con uccellini
e fiori è protagonista
della camera. Tavolino Play rosso [Hubsch] con caraffa e mug Guzzini vintage da
[Vecchio Mio]. Parquet in rovere fornito e posato da [Paolo Colombo Parquet].
Il corridoio serviva da
stanza d’appoggio per la
cucina: adesso che fa
da antibagno accoglie un
grande armadio su misura
che nasconde anche
la zona lavanderia, che
così lascia libero il bagno. Armadio realizzato su disegno di
Studio Pisk da [Binova], passatoia
Bob colore mud-vanilla [Pappelina]; sul soffitto
dipinto come i muri con idropittura
cod. colore P0.10.40 di [Sikkens];
lampada Dioscuri [Artemide, ø cm
14].
Da cucina a... grande bagno
caratterizzato da
soluzioni decorative
di forte impatto che
vanno di pari passo
con la praticità d’uso
grazie alla maxi doccia
e ai sanitari sospesi. Mobile lavabo
realizzato da [Falegnameria F.lli
Casali] su disegno di Studio Pisk con
lavabo Happy Hour Slim [Hatria],
specchio Mood [Hubsch], sanitari Era [Ceramica
Cielo], rubinetteria serie Sprint
[Guglielmi]. Lampade Dioscuri da
parete e soffitto [Artemide],
spugne Nettare e Coccola color
petrolio [Fazzini]. Porte realizzate su
disegno di Studio Pisk da [Falegnameria
F.lli Casali], con maniglie Lama in
acciaio satinato [Olivari].
La tappezzeria con i pesci è
la prima cosa che colpisce
entrando in bagno: d’impatto
ma elegante è perfetta sia
con la boiserie verde petrolio
sia con il parquet posato
a spina ungherese sia con il
mobile moderno. Carta
da parati Acquario color inchiostro
[Fornasetti da Silva Tessuti], vasi
Lustro [Egal Ceramiche da €98 cad].
Un appartamento di famiglia in liguria è stato ristrutturato usando colore e piastrelle come elementi architettonici (anche per mimetizzare un pilastro). Risultato: un’atmosfera fresca ma accogliente in ogni stagione
Restaurare, conservando e valorizzando l’esistente, nuovi? Questo il dilemma di Wanda, quando ha ereditato la casa al mare che era stata dei nonni e poi dei genitori e in cui lei aveva passato weekend e vacanze fin da bambina.
Nel dubbio, ha chiesto aiuto a Vanessa Pisk: «Vedevo sempre le sue case su CasaFacile e su Instagram e l’ho chiamata perché mi aiutasse a trovare la strada giusta» racconta. «Ora posso dire che ho fatto bene, perché la casa che lei e il suo team sono riusciti a far (ri)nascere è bellissima e tutta la famiglia la adora!».
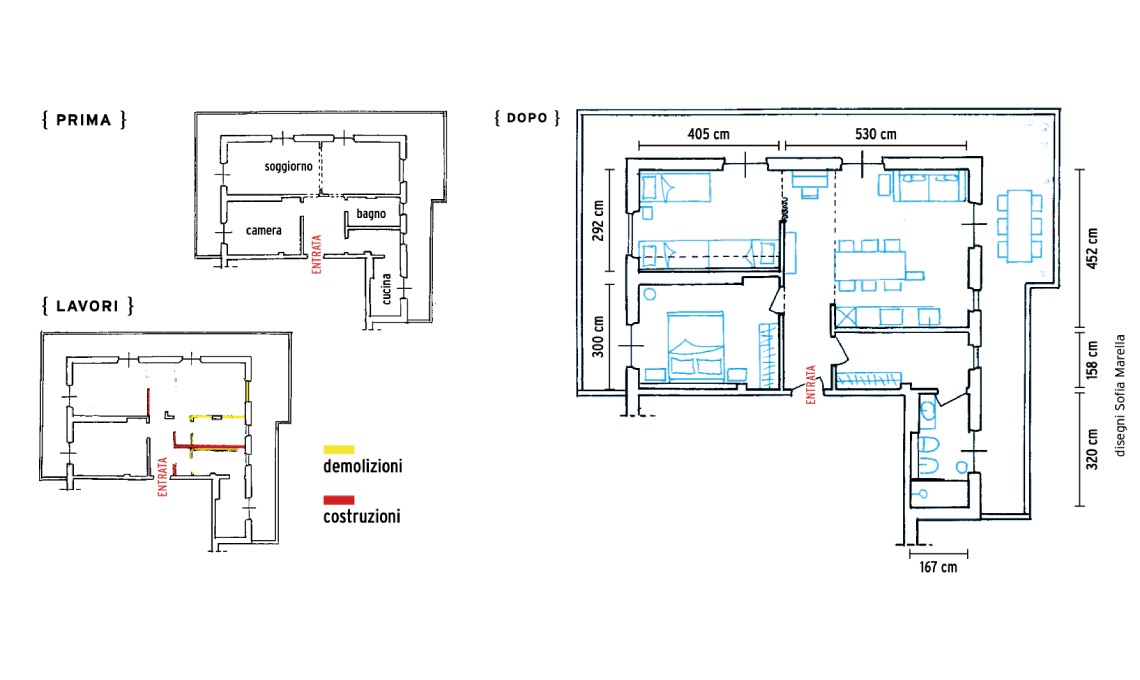
Le scelte fatte
«Abbiamo valutato subito la ridistribuzione degli spazi e in particolare lo scambio di bagno e 167 cm cucina per rendere l’appartamento più comodo da vivere», dice Vanessa. «Ci è sembrato naturale aprire la cucina sul soggiorno e realizzare una portafinestra per collegare questa zona al terrazzo».
Il living, adesso più ampio, mantiene zone funzionali precise che però si parlano, grazie anche alla scelta di usare un colore forte, il verde petrolio (è il preferito di Wanda) per sottolineare alcuni elementi architettonici, come il pilastro rimasto a vista, la trave e il controsoffitto per l’impianto di riscaldamento e raffrescamente canalizzato. Questo colore torna sul tavolo, su alcune pareti e sulle porte.
Il tocco di stile
I dettagli fanno da trait-d’union con lo stile originario dalla casa: le piastrelle diamantate, le porte a vetri, le maniglie di Gio Ponti, perfette con arredi e quadri di famiglia.
a cura di Studio Pisk @vanessapiskstudio - progetto tecnico Studio Geometra Marco Maini – foto Giandomenico Frassi – testi Elena Favetti