Credits: Kristian Septimius Krogh/House of Pictures/Living Inside
In cucina la parete grigio antracite è bilanciata dal soffitto dipinto di bianco. Lampade in garza Koushi lamp [Mark Eden Schooley su Heimelig Shop] e tavolino fratino rustico.
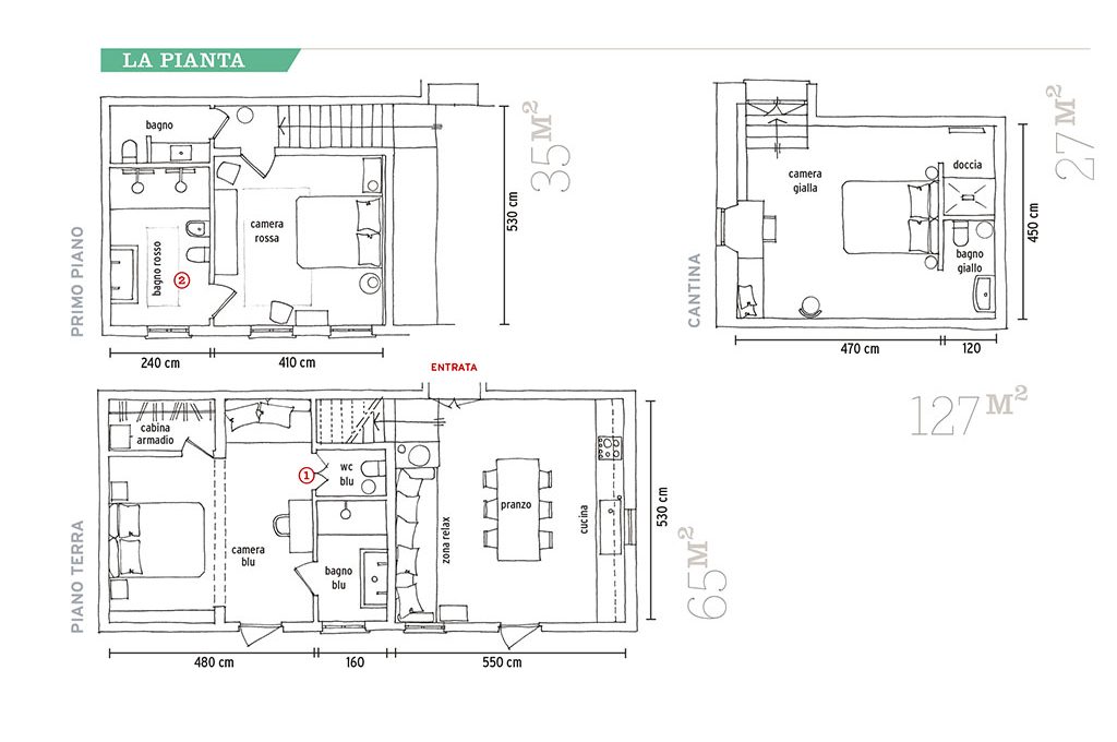
Rustico è chic: arredi in calcestruzzo e resina hanno fatto rinascere una vecchia casa contadina. Ecco come dare allo stile rustico un sapore ultramoderno e cosmopolita
A una prima occhiata non diresti di trovarti in Italia: con il suo sapore esotico, questa casa è un mix di colori strong e arredi ‘forestieri’.
Invece siamo alle porte di Spello, in Umbria, immersi nella magia del Monte Subasio, in quella che fino al secolo scorso era una povera casa contadina. Rimasta disabitata per più di 50 anni, oggi ha ripreso a vivere grazie alla creatività della proprietaria di casa, che ha origini australiane e spirito libero. Qui ha compiuto una ‘mission (quasi) impossible’: trasportare nel futuro una casa del passato, conservando e reinterpretando gli elementi rustici in chiave moderna.
Quando gli attuali proprietari hanno comprato la casa, l’edificio era in totale abbandono. La soluzione è stata escogitare idee funzionali ma décor, come quella del grande divano in calcestruzzo rivestito con resina bicomponente, replicata poi per la cucina e il pavimento.
Fuori, il giardino è uno scrigno verde incastonato tra i vecchi muri di pietra. E se gli amici capitano all’ora di pranzo, si fermano qui, all’ombra del grande albero di cachi, in una zona en plein air con sedie e tavolino in ferro di tanti colori comprati ai mercatini. La cisterna un tempo destinata alla raccolta dell’acqua è stata convertita in una piscina.
La cucina è in muratura: dipinta nello stesso colore scuro della parete e rifinita con la resina, invece del tipico sapore ‘ruvido’ del mattone intonacato regala un effetto ‘setoso’. Andrea ha poi scelto il verde brillante come colore dominante e lo ha richiamato dappertutto, sulle ceramiche, sui tessuti, sulle sedie da bistrot parigino appartenute alla nonna. Il tocco di genio è l’idea dell’infisso ‘fuso’ nella parete grazie al colore: senza tende, incornicia in modo suggestivo il panorama al di là del vetro.
La camera da letto è la ex cantina con una scenografica volta a botte: completamente intonacata di bianco, oggetti insoliti, provenienti dai vari viaggi dei proprietari, si fondono in un mix perfettamente equilibrato: cappelli in paglia cambogiani, specchi in vimini Anni '60... Una quinta color giallo zafferano nasconde una mini-toilette e una cabina armadio. Un'ottima idea per separare le zone senza alterare l'architettura del tetto a botte.