Tramite una 'finestra' ad angolo nel muro la cucina è in comunicazione con il corridoio e visivamente con le altre stanze. Sedute Eames DSW in diversi colori e gambe in legno effetto vintage [Vitra, cm 47x83h da €369].
Nella cameretta divano-tatami composto da diversi materassini sovrapposti. Cuscini [Bonton] e tessuti [Merci]. Tenda Teepee [Habitat €135] e guardaroba a forma di casa nordica di Marie-Louise Groot Kormelink [da The Conran Shop].
A Parigi un appartamento con ambienti aperti effetto open space, pezzi di design e ricordi di viaggio
I proprietari di casa sono grandi viaggiatori e si sono conosciuti in Cina.
Oggi vivono in questo grande appartamento nel 9° arrondissement di Parigi, un quartiere dove si respira un'aria internazionale che li rappresenta bene.
Anche la loro casa è così, piena di suggestioni da tutto il mondo e con stanze che dialogano tra loro grazie ad aperture inattese.
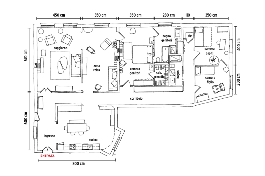
La cucina crea un effetto open space: le porte sono state eliminate ed è stata aperta una grande finestra tra la zona pranzo e il corridoio.
La cucina aperta sprigiona allegria e convivialità.
Arredi fusion, di design e opere d'arte si mescolano discreti. Niente soffre di protagonismo.
Nota dominante, invece, è il legno in diverse ssenze e forme: sul pavimento, nelle cornici, nel mobilio, negli accessori décor. È il materiale più amato perchè accogliente e naturale.
La massima apertura degli spazi ha portato anche tanta luminosità.
Per la camera da letto è stata pensata una parete vetrata con una divisione verticale che ricorda le serre da giardino di fine '800! Un'idea non impossibile da copiare! La vetrata divide la camera dal bagno, è il parquet a uniformare e unire i due ambienti.
Come in tutte le stanze della casa, anche in camera i diversi toni del legno creano una base calda e neutra su cui spiccano alcune fantasie dai colori accesi.