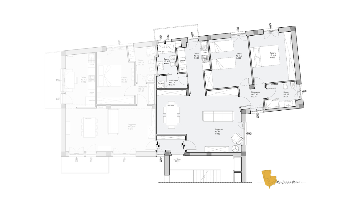
Dall'acquisto di un grande appartamento hanno ricavato due appartamenti distinti: uno da 100mq dedicato a loro e uno da 70mq dedicato ai nonni.
La ristrutturazione radicale dell'appartamento e la sua divisione è stata seguita da Andrea che ha curato il progetto fin dall'inizio.
Gli input erano dettati dalla presenza della loro prima figlia e dall'idea di allargare ulteriormente la famiglia (così è stato, attualmente hanno due bimbe), quindi le esigenze si sono così rimodulate: un soggiorno spazioso con cucina a vista, due bagni, due camere e uno spazio da adibire a lavanderia.
L'ingresso, vista l'impossibilità di creare una nuova apertura nel vano scale, è stato creato all'interno di un un disimpegno comune interno, una sorta di ulteriore pianerottolo da dividere con i nonni.
L'appartamento si presenta con un soggiorno aperto nel quale hanno voluto creare l'effetto di un blocco servizi che si inserisse all'interno dell'appartamento. Tale effetto è stato riprodotto attraverso delle grandi armadiature a muro nella zona soggiorno che nascondono la cucina e la zona lavanderia/bagno. Per caratterizzare il blocco e dare ulteriore importanza hanno usato un colore grigio-verde molto deciso, per le ante degli armadi e le pareti, che stacca nettamente rispetto al contesto. All'interno del blocco servizi, un ulteriore grande armadio contenitore su misura ingloba la lavanderia.
Per ristrutturare l'appartamento è stato praticamente demolito tutto, sono state fatte nuove divisioni interne, è stata ampliata la camera delle bimbe, sono stati fatti completamente nuovi tutti gli impianti, i pavimenti ed inserite controsoffittature in tutti gli ambienti.
Particolare riguardo è stato dato all'illuminazione attraverso l'inserimento di punti luce a sospensione, faretti per l'illuminazione di base, "gole" per l'illuminazione diffusa e d'accento.
PARTECIPA ANCHE TU ALLE CASE DEI LETTORI:
Vuoi spedirci le foto della tua casa per vederle pubblicate qui sul nostro sito? Scrivi a [email protected]
Le foto devono essere perfettamente a fuoco, ben illuminate e senza uso di filtri fotografici.
