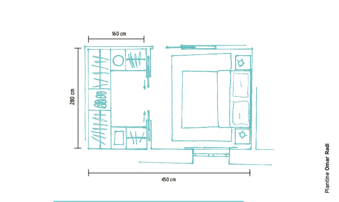
Se lo spazio lo consente, cioè se la stanza è stretta ma lunga almeno 4,5 metri, la cabina armadio può essere posizionata proprio di fronte al letto. Prima di tutto è importante valutare con attenzione la forma della camera e lo spazio disponibile, in modo da poter scegliere la giusta posizione. Se finestra e porta d'ingresso sono più o meno speculari, creando la cabina armadio avrete l'opportunità di rendere più proporzionata la stanza con un elemento dalla forte valenza scenografica.
Questa soluzione consente di attrezzarla in modo funzionale e su tre lati. Puoi optare per una porta a scomparsa ma attrezzarla con pareti a vetro la renderà sicuramente più ariosa e luminosa.
Questo tipo di soluzione, permette di organizzare al meglio la disposizione degli abiti, magari creando una divisione simmetrica tra gli spazi dedicati agli abiti di lei e di lui. Con la cabina armadio di fronte al letto, avrai anche la possibilità di inserire un pouf o una poltrona per facilitare le operazioni di vestizione.
