Arredare

3 progetti salvaspazio per la casa di vacanza

Mare, montagna e... città: ecco 3 soluzioni smart e funzionali che i nostri architetti CF Style hanno curato per sfruttare al massimo gli spazi delle case per le vacanze.

Gli spunti sono tantissimi: dai divani letto in ogni stanza al soppalco/cameretta, dallo studio che in un lampo diventa stanza dei bambini alla cabina armadio in cui chiudere tutte le cose del proprietario. Il trucco fondamentale? Scegliere mobili pratici ma super resistenti, finiture indistruttibili e rivestimenti per imbottiti asportabili e lavabili in lavatrice. Ma soprattutto creare un’atmosfera accogliente e di charme. 

PROGETTO MARE di Marzia Filatrella: da magazzino + garage a bilocale per 4/6

I due ambienti avevano altezze diverse: uno è stato soppalcato e, sopra, si possono mettere due futon per i ragazzi. Sotto è stata organizzata la zona pranzo con piccola cucina. Il resto del living è a doppia altezza con divano letto. L’altra stanza, dalla quale con un disimpegno si accede al bagno con doccia, ha un altro divano letto.

  1. La mini cucina lunga 2 metri è organizzata con basi e pensili che arrivano a filo del del soppalco, così come la colonna da cui parte la penisola.
  2. La scala nasconde un guardaroba su misura e altri contenitori sono del disimpegno.
  3. il disimpegno del bagno ha 2 ingressi così è accessibile dai 2 locali in modo autonomo.
  4. Il soppalco letto è considerato un mobile (deve essere in legno e smontabile) quindi non c'è un'altezza minima tra il letto e il soffitto.

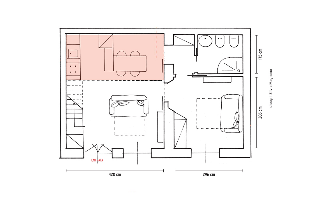
PROGETTO CITTÀ di Amodo, studio di architettura:   trilocale trasformista per affitti brevi

La proprietaria lavora da casa e vuole affittare a settimana anche a famiglie di 4 persone. Come fare? Con arredi versatili che consentono di utilizzare lo studio come cameretta, e mantenendo cabina armadio e bagno en suite a suo uso esclusivo. Gli armadi nel disimpegno e nella stanza piccola, nonché il bagno in più con maxi doccia, vanno agli ospiti.

  • Il living con cucina a vista è articolato in 3 zone funzionali: il tavolo da pranzo ospita fino a 6 persone, il sofà è un 3 posti con penisola e la lavatrice è in cucina (per lasciare liberi sia il bagno sia il disimpegno).
  • Da studio a camera per due: grazie all'armadio a ponte e al letto a castello, la stanza si trasforma senza spostare nulla.
  • Cabina armadio e bagno rimangono a uso esclusivo della proprietaria di casa che li chiude a chiave. Per gli ospiti ci sono il secondo bagno, ampio e funzionale, e l'armadio del disimpegno.

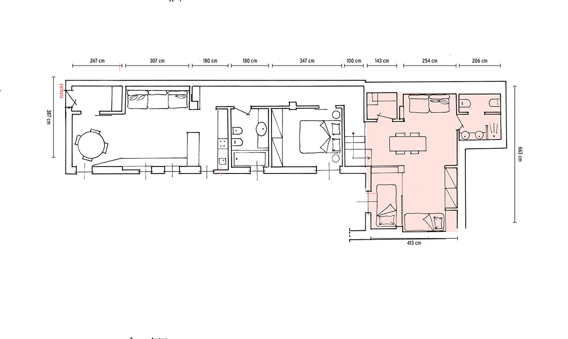
PROGETTO MONTAGNA di Carlotta Pesce: trilocale con area kids separata

L’appartamento è a elle, con una prima parte lunga e stretta in cui si susseguono living con cucina a vista, bagno e camera matrimoniale. Salendo qualche gradino si entra nella seconda parte della casa: un grande locale giorno/notte con tavolo, divano letto, un letto a castello e un altro letto singolo più secondo bagno, ripostiglio e armadiature... Così i ragazzi sono autonomi!

  • Nel living i mobili sono versatili per sfruttare al meglio lo spazio stretto: il sofà 3 posti large diventa all'occorrenza un letto singolo, il tavolo rotondo si allunga, la cucina ha una penisola che serve anche per dividere visivamente l'ambiente e un mobile basso e poco profondo serve da contenitore.
  • La bussola d'ingresso è arredata con una panca che ha la base a contenitore in cui lasciare gli scarponi; gli sci si appoggiano al muro.
  • La zona ragazzi ha alcune nicchie create per contenere e, se serve, isolare i numerosi posti letto. Il tavolo centrale è perfetto per fare i compiti o per cenare qui quando ci sono ospiti.

 

 

Guarda anche
Prima & Dopo

Da garage a casa di vacanza

Guarda anche
Arredare

17 sedie pieghevoli salvaspazio

Guarda anche
Camera

Letti con contenitore

Testi

Elena Favetti – shopping Marta Mariani

Progetto

Marzia Filatrella, Amodo - studio di architettura, Carlotta Pesce

Foto

disegni Silvia Magnano