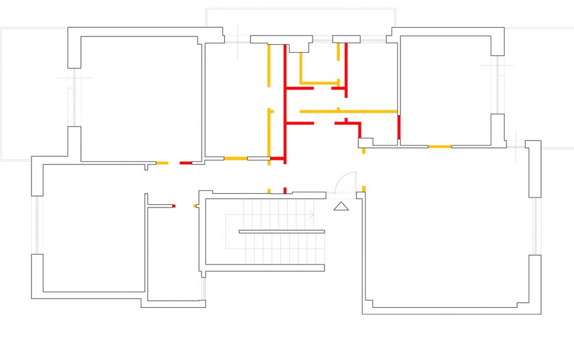
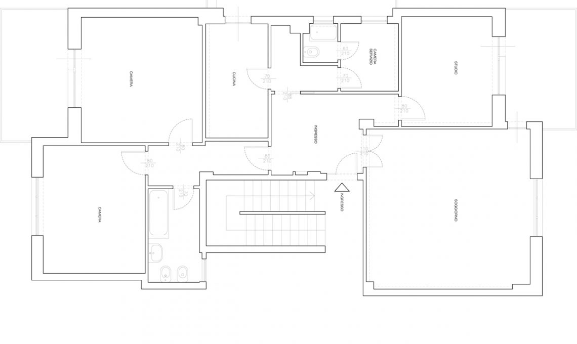
L'appartamento di 120 mq riprogettato: la cucina si sposta dove c'era lo studio, al posto di bagno e camera di servizio ci sono lavanderia e secondo bagno, la terza camera prende il posto della vecchia cucina.
Prima la cucina era nella zona notte, accanto al soggiorno c'era uno studio troppo grande, mancava un secondo bagno 'bello' e la terza camera per i figli.
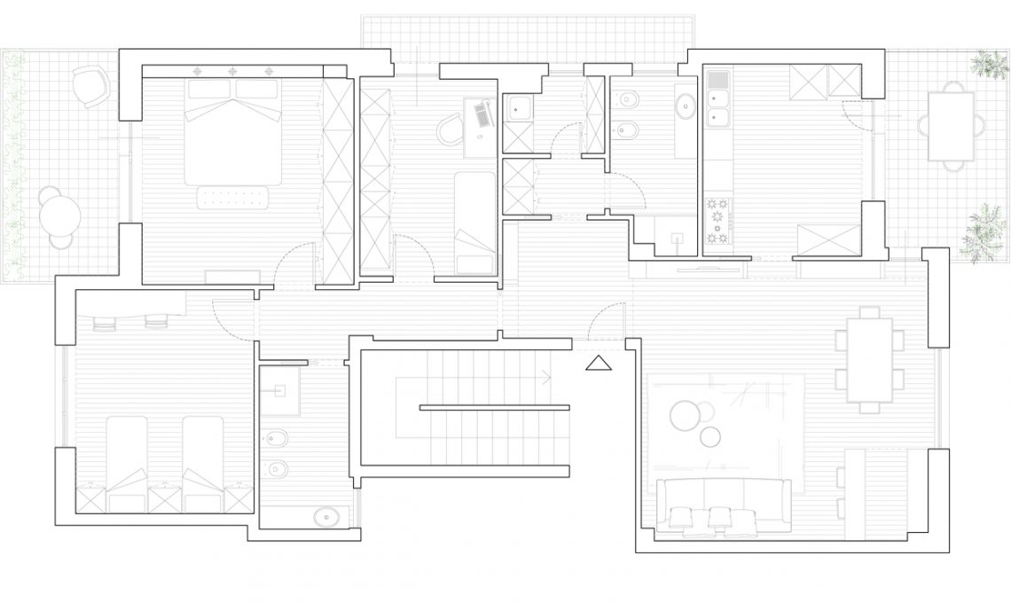
Tra le zone relax e pranzo è stato ricavato un angolo bar, con bancone realizzato su disegno degli architetti e interamente in legno, dedicato alla collezione di vini, grande passione dei proprietari di casa.
Il nuovo accesso alla cucina, direttamente dal soggiorno, è stato integrato in una libreria passante in cartongesso, che con il suo disegno diventa elemento caratterizzante e fulcro della nuova zona giorno.
La zona operativa della cucina è organizzata sulla parete di fronte alla portafinestra: le basi hanno ante antracite, i pensili sono laccati bianchi. Come paraspruzzi è stata posata una fascia di piastrelle effetto cementine.
Una giovane coppia ha interpellato i nostri architetti Cf Style per ottimizzare la disposizione degli spazi. E ricavare così una terza camera da letto
L'appartamento acquistato da una coppia di nostri lettori è molto grande (120 mq) ma distribuito in modo poco funzionale: la cucina si trova nella zona notte, lo studio è sovradimensionato e c'è una mini-camera di servizio che proprio non serve. È necessario, invece creare una cameretta e un bagno in più: ecco la proposta dei nostri architetti Cf Style Claudia Gigli e Anna Chiara Novelli di EMMEQ Studio.
La cucina viene spostata dove c’era lo studio. Ora è più grande, si affaccia sul terrazzo e comunica con il soggiorno grazie alla porta a vetri inserita in una parete attrezzata.
Nel living, tra pranzo e zona relax, è stato inserito l’angolo bar, realizzato su misura.
Il vecchio bagno e la camera di servizio, ridimensionati, sono diventati bagno padronale con lavanderia e disimpegno.
Al posto della cucina ora c’è la terza camera da letto.
Vuoi anche tu una consulenza di un architetto CF style? Clicca qui.