PORTAFINESTRA
SCORREVOLE
La traversa a terra non
deve esser più alta di
2,5 cm o, meglio, la soglia
deve essere ribassata
il più possibile per
agevolare passaggi sicuri
a bimbi, anziani e a chi
ha problemi motori. In
foto, scorrevole Modern
Slide [WnD, su progetto].
IL PARQUET ULTRA-SOTTILE Se scegli tavole
spesse 10 mm puoi sovrapporle su qualunque pavimento
preesistente per evitare lavori invasivi. In foto, formato
Tavola Slim 120 Coll. Dream [Woodco].
SCALA A 2 RAMPE Per chiudere il sottoscala la scala deve avere gradini ad alzata chiusa, quindi privi di spazi vuoti tra le pedate. Ogni rampa deve avere massimo 15 gradini, con pedate profonde almeno 25 cm e alzate di 15-17 cm. In foto, scala in acciaio Knee TR 10 [Roversi, su progetto].
CHIUSURE PER IL VANO SOTTOSCALA Per ricavare un ripostiglio si realizza una parete in cartongesso e si adottano pannelli di chiusura dotati di telai integrati nel muro e di ante trapezoidali filomuro che, da chiuse, risultano invisibili. In foto, di 15-17 cm. In foto, sistema filomuro Skema [FerreroLegno, su progetto].
PORTA SCORREVOLE
A SCOMPARSA
Il muro in cui va installato il
controtelaio della porta
deve essere di 9-15 cm se
in muratura e di 10-15 cm
se in cartongesso. La porta
NM00 in finitura frassino
poro aperto Bianco si
adatta a controtelai posati
su entrambi i tipi di pareti
[Flessya].
La tua casa ha bisogno di un restyling? Ti aiuta l’interior designer. Devi riorganizzare gli spazi e rifare gli impianti? Serve l’architetto. E se si ‘toccano’ strutture (muri portanti, solai o tetto) serve anche un ingegnere. Partendo da 4 progetti degli architetti CFstyle ti aiutiamo ad affrontare la ristrutturazione districandoti tra regole e permessi. Qui parliamo di accorpare 2 appartamenti
Si possono unire due appartamenti per renderli un'unica casa solo se appartengono allo stesso proprietario.
Come procedere
Se gli immobili sono già della stessa proprietà si procede subito con le varie fasi di progettazione e ristrutturazione insieme all’architetto. Se il secondo alloggio è da acquistare, si può usufruire delle agevolazioni prima casa a patto che il compratore al rogito si impegni a effettuare tutti i lavori necessari a dimostrare che l’immobile finale sarà uno solo.
È anche possibile acquistare solo una parte dell’appartamento da accorpare: prima di procedere è necessario eseguire un frazionamento e l’acquisto della sola parte da unire al proprio immobile (vedi pag. 102). Attenzione che potrebbe essere necessario ottenere il consenso anche da parte del condominio se il regolamento condominiale ponga dei limiti su frazionamenti e accorpamenti di immobili.
Le pratiche
L’accorpamento è considerato manutenzione straordinaria quindi, per eseguirlo, va presentata in Comune una CILA se non si toccano strutture portanti o una SCIA se si aprono porte su muri portanti o si interviene sui solai per collegare i due piani con una scala; in questo caso servirà oltre al progetto di ristrutturazione dell’architetto anche la relazione sulla statica e sul rispetto della normativa antisismica preparata dall’ingegnere strutturista.
Finiti i lavori, l’architetto/ingegnere/geometra presenta al Catasto la variazione con fusione delle due unità e la Segnalazione Certificata di Agibilità mentre un tecnico certificato stilerà la nuova Certificazione Energetica APE.
Un esempio
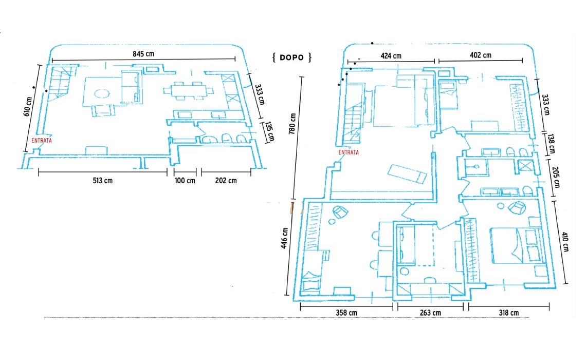
A Milano una famiglia decide di ampliare la propria abitazione acquistando e annettendo parte dell’appartamento al piano di sotto. Eseguito il frazionamento e l’acquisto della parte di immobile interessata, l’architetto CF style Marco D’Andrea ha definito il progetto da allegare alla SCIA collaborando con lo strutturista che ha prodotto le pratiche antisismiche e di verifica statica per l’intervento sul solaio che divide i due alloggi in modo da metterli in comunicazione con una scala.
Al piano terra è stata organizzata la zona giorno-cucina con 1 bagno, di sopra la zona notte con 4 camere, 2 bagni e una stanza tv. A chiusura lavori sono state depositate tutte le variazioni e le certificazioni richieste.