Mobili fai da te

Come realizzare una cabina armadio fai-da-te

Lucia Pasini Lucia Pasini

Per realizzare una cabina armadio fai-da-te ti basta una larghezza di 120 cm. Scopri quello che ti serve e i passaggi per realizzarla in camera tua!

Ho sempre desiderato una cabina armadio per questioni di comodità (non sono molto ordinata!) e perché non amo molto gli armadi... soprattutto quelli di fronte al letto che rendono impossibile appendere la tv sulla parete. Ho quindi creato una cabina personalizzata, sfruttando moduli base già pronti. Lo ‘schienale’ è stato poi rivestito con un intervento fai-da-te super basic. 

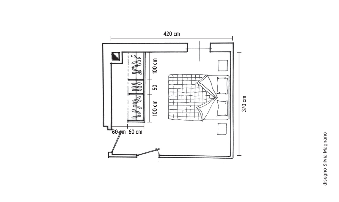
Valuta bene gli spazi

Tra i piedi del mio letto e la parete c’erano 210 cm di spazio, così ho potuto costruire la cabina (larga 120) e avere ancora 90 cm per passare comodamente. Se tu hai meno spazio e qualche dubbio in più, puoi simulare gli ingombri dei vari elementi sul pavimento con un nastro di carta adesiva (come Fabo Metro che ha il dorso centimetrato). L’interno della cabina armadio dovrà essere ben illuminato, quindi verifica la posizione degli attacchi elettrici.

Arreda la cabina

Ho posizionato 3 moduli Pax di Ikea con la parte ‘aperta’ rivolta verso la parete: così ho potuto sfruttare il muro (per appendere comodi ganci) e anche lo schienale dei moduli per appendere la tv.

Rivesti con fantasia

Ho ricoperto lo schienale con pannelli in fibra di legno alti fino al soffitto, rinforzando lo spazio vuoto in alto con uno ‘scheletro’ di listelli grezzi. Ho poi fissato con le viti le perline di legno che avevo già fatto tagliare a misura e infine le ho dipinte. Puoi anche fissare dei pannelli di legno e rivestirli con della carta da parati.

 

BUDGET

  • moduli Pax Ikea e accessori interni €230
  • pannelli in fibra e perline in legno €45
  • pittura, ferramenta e illuminazione € 35

Totale €310

Guarda anche
Cabina armadio

Le misure per realizzare la cabina armadio

Guarda anche
Cabina armadio

Salva-budget: la cabina armadio

Testi

Lucia Pasini

Progetto

Lucia Pasini

Foto

Lucia Pasini