Il tavolo è un pezzo vintage portato al grezzo: la sua patina fa pendant con la cucina. La vetrina non ha schienale: il verde valorizza bottiglie e oggetti preziosi.
Ante Moka: per un look più naturale, l’inserto laccato usa il tono del caffellatte, che sembra ’sparire’ nel legno. Più funzioni: frigo, libreria e vano storage sono tutti in un unico blocco.
Il letto diventa divano con una fila
di cuscini. La scelta del rivestimento coordinato alla parete verde lo ‘fonde’ con precisione cromatica al bow window, rendendolo non un semplice arredo ma quasi parte della struttura della casa.
Con diffusore in vetro soffiato e telaio in ottone: è la celeberrima IC Lights di Michael Anastassiades per [Flos]. Coffee table in sughero della designer sudafricana Laurie Wiid di Wiid Design.
Nella cartella colori di [Wilson & Morris]: Green Transition è molto simile a quello che vedi in foto e che ha riqualificato tutti gli elementi architettonici di pregio della casa.
Rivestire in legno: Le perline sono assi spesse 8-12 mm e larghe 10-12 cm, con incastro maschio/femmina, che trovi con facilità nei negozi di fai-da-te. In commercio esistono sia grezze che non: da Leroy Merlin, cerca il modello in verde ’verniciato spazzolato anice’
[€16,90/mq].
Il parquet in faggio è originale della casa. La sua essenza ’gialla’ ha suggerito il verde, ripreso anche dal tappeto in seta della camera. Ai lati del sommier, le lampade a braccio sono le celebri Tolomeo [Artemide a partire da €191].
Cerchi complementi antichi e in ottone?
Da [Muselli Officine Luce] nella sezione
accessori da bagno trovi delle chicche incredibili! Con [Officina Nicolazzi], invece, puoi optare per le rubinetterie di nuova produzione nella finitura rétro ’ottone spazzolato’.
Gli elementi che più caratterizzano le stanze da bagno sono i mobili da lavabo che invitano a sfruttare lo spazio con nicchie e mensole di cristallo o legno e che funzionano pure da supporto per lo specchio: ci avevi mai pensato?
L’assetto multilivello è reso più evidente
da due ’pontili’ attrezzati che massimizzano lo spazio sul pendio roccioso e si tuffano nell’architettura naturale della vegetazione. In costruzioni
analoghe, come nella copertura di terrazze, il legno di Balau si rivela adatto per la sua incredibile capacità di resistenza agli agenti atmosferici e all’abrasione.
Il verde ha immerso la casa in un’atmosfera rilassante, oscillando tra le tonalità salvia, menta e pistacchio a seconda della luce del giorno. Una palette colori che 'fa vacanza' e uno spirito 'bungalow' tutto da copiare!
Misty Cliffs è un piccolo villaggio a circa un’ora da Città del Capo e deve il suo nome alle scogliere nebbiose che puntellano l’Atlantico. Qui, immerso nella vegetazione di un’altura, si trova il magico rifugio di Cameron Munro e Justin Rhodes.
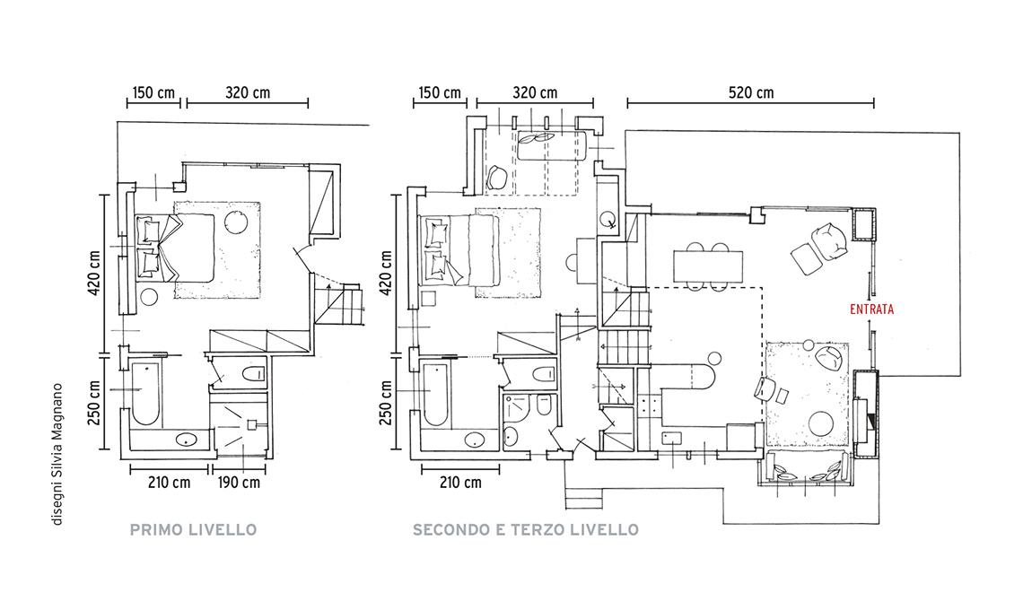
Le scelte fatte
La casa, disposta su tre piani, ha due camere da letto: una al livello più basso e una in mansarda, sotto il soffitto a falda rivestito di canne che, insieme alla pietra e alle boiserie di perline, crea un esotico mood ‘capanna’. Gli arredi? su misura e in legno grezzo.
Il tocco di stile
Un verdeazzurro in varie sfumature, usato in blocco... incanta! I soffitti in canniccio donano ancora più carattere alla casa.
La canna palustre, anticamente usata per coperture e ornamenti, torna alla ribalta nella bioedilizia per le qualità ecosostenibili: garantisce un ottimo isolamento termico e acustico, è naturale, traspirante e non inquinante.