Sul tavolo, lampade Aim [Flos
a partire da € 650 cad]; piatti, posate e bicchieri [Bitossi Home], tovaglioli [La Fabbrica del Lino], mug Taika [Iittala € 21,90]. Sul mobile realizzato su disegno, simile al mod. Leon Wood [Casamania & Horm], vaso Isole [Bosa] e Millemolature di [Carlo Moretti].
Il tavolo inglese di recupero, con una tonalità molto simile al noce, arreda in maniera meno formale se accostato a un tris di luci contemporanee, come queste dei fratelli Bouroullec. Il tappeto diventa un ulteriore elemento attrattivo.
Parquet in rovere prefinito posato a spina ungherese [Unikolegno], tappeto March Free Shape collezione Garden of Eden [Golran, a partire da € 4.380 cm 310x230]. Poltroncina LC1 di Le Corbusier [Cassina] e poltroncina in legno e tessuto di [Spazio Ampio € 1.400 in velluto]. Lampada da terra Anni ’60 [Stilux € 750] e lampade jappo serie Fares in carta di riso [Hayashi
€ 300 cad] tutte da [Spazio Ampio].
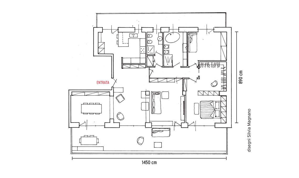
La libreria in listellare di Rovere è un diaframma che irraggia la luce e disimpegna la zona giorno da quella notte e i servizi, grazie a due porte che chiudono o aprono il sistema a seconda delle esigenze.
La pannellatura che insiste sotto la ’finestra’ tra living e cucina nasconde un termosifone e riprende i listelli della porta basculante agganciata alla libreria.
Sul piano della cucina moka [Bialetti], piatto frutta e teiera [Bitossi Home], piccoli elettrodomestici [Smeg]. sedute DSW [Vitra, a partire da € 400].
L’armadio quattro stagioni su misura, nasconde un pilastro che entra all’interno del volume della stanza. Lampada a soffitto Ariette disegnata da Tobia Scarpa per [Flos, a partire da € 260].
Le nicchie sostituiscono il comodino fisso: in caso di necessità, l’anta inferiore si apre a ribalta e diventa un piano d’appoggio. Lenzuola e federe [La Fabbrica del Lino].
Gli arredi sono realizzati su disegno: in bianco, aumentano il contrasto con gli elementi in rovere e la biancheria da letto. Le ante permettono una divisione del reparto ’lui’ e ’lei’. Le controsoffittature a vela segnano attraverso dei giochi di luce diffusa gli ambienti e celano la complessa rete tecnologica degli impianti, tra cui quello di condizionamento.
Faretto orientabile Tolomeo [Artemide a partire da€145], lavabo Miniwash 75 [Ceramica Flaminia], rubinetteria collezione On [Bongio]. Sul piano profumi, prodotti corpo e da bagno [Dyptique].
Rivestimento a parete Silk diamantato [Tonalite, cm 10x30], pavimento coll. Materia finitura Honed colore 04 [Florim Casa Mood].
CasaFacile > CASE > Idee e soluzioni > Ridisegnare i volumi e valorizzare gli elementi strutturali con il colore e la luce
Un'architettura a tratti invasiva ridisegnata dai volumi, dal colore, dalle aperture e da una libreria che, ora dopo ora, filtra la luce cangiante del giorno e della sera.
Tutto, in questa casa nel cuore del quartiere Prati a Roma, è disegnato in funzione della luce – portata in maniera indiretta da ovest verso est – e degli elementi strutturali che creano una sorprendente scansione dello spazio.
L’appartamento, di proprietà della famiglia di Giovanni già prima del restyling, per anni era stato abbandonato perché utilizzato come archivio di uno stabilimento vicino. Ma lui e Cristina non potevano lasciarsi scappare l’occasione di una casa in città con un terrazzo di 40 mq da sfruttare soprattutto in estate...
Le scelte fatte
«Poiché l’appartamento era usato come ufficio, non c’era mai stato un pensiero circa l’uso degli spazi. Non si capiva quale fosse la zona giorno» racconta l’architetto Roberto Mercoldi, founder dello studio RM\Architecture. Le opere di demolizione hanno finito per liberare dalle tramezzature il pilastro centrale e le travi, di cui una ad arco curvilineo. Sottolinearli è stata la scelta più giusta.
Il tocco di stile
Sul parquet gli arredi di design riscaldano il mood aggiungendo una nota tabacco al verde delle quinte: «Eravamo scettici perché quel verde ci sembrava azzardato. Ma aveva ragione Roberto: ha dato profondità!» esclama soddisfatto Giovanni!