I genitori di Lisa, 12 anni, hanno avuto il piccolo Marco 5 anni fa: i bambini, dunque, non solo hanno sesso diverso ma un a discreta differenza d'età che allo stato attuale fa in modo che le esigenze dei ragazzi siano completamente diverse.
La richiesta:
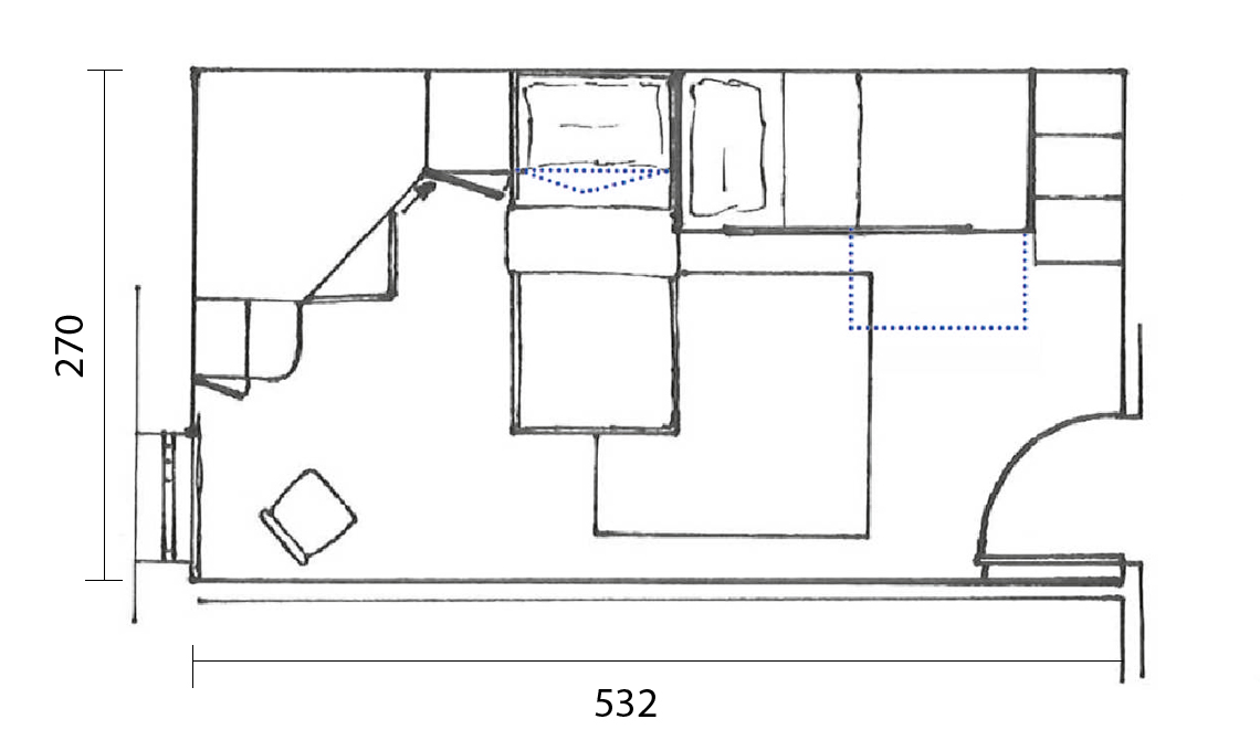
I figli, distanti per età ed interessi condividono la stanza che deve rispettare esigenze e abitudini di entrambi L’arredo deve quindi individuare spazi per ciascuno.
La soluzione:
La camera è grande (14 mq) e rettangolare e nella nostra proposta ha due zone distinte, una per lei con il letto a terra più una comoda cassettiera con scrivania estraibile, e una per lui con il letto sul soppalco e contenitori per i giochi nella scala. Per lei c’è una grande cabina angolare a tutta altezza, per lui l’armadio da cm 50 e il modulo a ponte sopra il letto di Lisa. Quando tra qualche anno anche Marco dovrà studiare, si potrà aggiungere una seconda scrivania sotto finestra.
In questa versione la cameretta Smile #6 dI Giessegi è organizzata a L in finitura faggio e laccato Mattone e Biancopuro.
