I vecchi appartamenti hanno spesso delle suddivisioni difficili: piccole stanze poco sfruttabili e che non vanno incontro al gusto attuale che predilige ambienti ampi ed ariosi. In questo progetto, lo spazio è stato razionalizzato e in solo 70 mq ci sono tutti gli elementi necessari compresa, anche, una suite privata!
IL PROGETTO
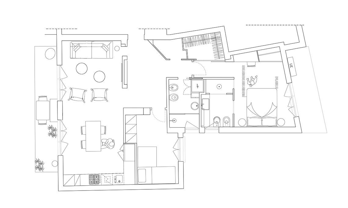
I troppi ambienti separati e alcuni muri ‘storti’ non rendevano ben fruibile la casa, senza contare che serviva un bagno in più.
- Eliminati quasi tutti i tramezzi, gli spazi vengono ridistribuiti.
- L’ex cucina, ampliata, si trasforma in camera da letto singola, dotata di una capiente armadiatura.
- Il salotto e la camera matrimoniale, uniti, diventano maxi living con cucina a vista angolare, da un lato, e area relax dall’altro; al centro, la zona pranzo.
- In ingresso, una quinta attrezzata con mensole da una parte e televisore dall’altra maschera il soggiorno.
- Il nuovo bagno prende il posto della stanzina adiacente la camera; in quello esistente ora c’è anche la lavanderia.
- La stanza padronale ha bagno privato, armadio con zona studio e cabina armadio (vicino al ripostiglio).
Tra living e ingresso non ci sono porte: unico divisorio è la quinta con la tv che consente un doppio passaggio ai lati. In più, la parete a ‘S’ tra cucina e camera crea una doppia nicchia che dal lato living accoglie il volume del frigo, dal lato stanza ospita un armadio a 3 ante. Per dare luce e continuità ai locali, si è scelto per tutta la casa un parquet a maxi listoni in rovere e tutte le pareti sono dipinte di bianco.
Nel vecchio bagno è stata creata una nicchia, per ospitare la colonna lavanderia. La quinta in ingresso ha un vano con un piano di appoggio in legno dal forte spessore, nella stessa essenza del parquet.
La camera padronale ingloba alcune ex zone di servizio: il ripostiglio, ingrandito, ora è cabina armadio; la stanzina è diventata un bagno privato che sfrutta gli attacchi di quello accanto e la parete ‘storta’ è sfruttata con un armadio completo di zona studio. Per guadagnare luce, la zona doccia ha una ‘finestra’ fissa in vetro che riprende nelle finiture la porta adiacente.
