Progetti degli architetti

Ricavare 3 camere da letto in 80 metri quadri

Può un appartamento di medie dimensioni guadagnare una stanza, un bagno e una cabina armadio in più? Sì, con un progetto che ottimizza gli spazi a partire da ingresso e soggiorno, ridimensionati ma più funzionali.

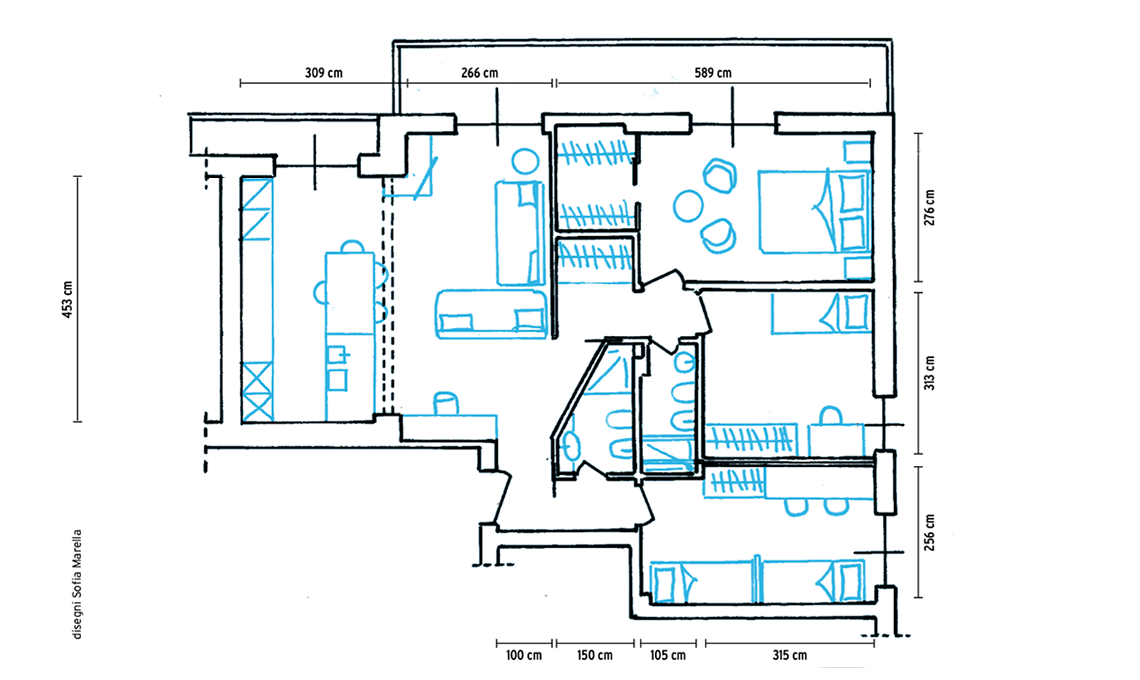
Un classico trilocale con gli spazi già ben divisi: cucina abitabile separata, due stanze e un bagno, un doppio affaccio angolare e un lungo terrazzo... Ma i figli crescono e la proprietaria vorrebbe disporre di una camera e un bagno in più, nonostante la metratura non particolarmente importante. Come fare? Ecco la proposta che ha sviluppato l’architetto CF style Manuela Marconi che ha rivisto gli spazi ricavando anche una cabina armadio... non richiesta ma molto gradita!

La soluzione

Si abbattono quasi tutti i tramezzi: la cucina e il living diventano un tutt’uno e inglobano anche parte del vecchio ingresso, inutilmente ampio. Un tavolo accostato alla penisola operativa è comodo per 5 e si può staccare e allungare quando ci sono ospiti, in più la zona relax organizzata a elle risulta più raccolta e trova spazio perfino per un’utile zona studio. La terza camera di 9 mq, ricavata tra le due esistenti, sfrutta la finestra del vecchio bagno; la stanza padronale adesso si allunga verso il soggiorno per ospitare la preziosa cabina armadio e nel nuovo disimpegno c’è il capiente armadio a muro. Il bagno principale e quello secondario di nuova realizzazione vengono traslati come un unico blocco proprio al centro dell’appartamento, come elemento di separazione tra la zona giorno e la zona notte. Entrambi i servizi sono ciechi e quindi, come vuole la legge, dotati di aerazione forzata; due porte scorrevoli, inoltre, danno vita ai disimpegni.

BUDGET*

  • Demolizione tramezzi in muratura, vecchi rivestimenti e porte €6.000
  • Costruzione tramezzi in muratura €8.000
  • Nuovo impianto idrico sanitario per nuovi bagni e cucina €11.800
  • Nuovo impianto elettrico €7.500
  • Fornitura e posa piastrelle per nuovi bagni e cucina €5.500
  • Fornitura e posa pavimento in parquet di tipo flottante €4.300
  • Fornitura e posa nuove porte interne €3.600
  • Tinteggiatura pareti e soffitti comprese opere di finitura €8.200

Totale (iva esclusa) €54.900

 

* il preventivo si riferisce a questo progetto; l’immobile si trova a Genova.

Testi

Elena Favetti

Progetto

Arch. Manuela Marconi