Nell'assonometria della cameretta sono ben in vista i due letti disposti ad angolo; armadio e scaffalatura a lato della porta e la piccola scrivania vicino alla portafinestra.
DOPO - il progetto della casa ristrutturata. La cucina è aperta sul soggiorno con ampia portafinestra vista mare. Il bagno esistente si allarga e raddoppia per crearne un altro dedicato alla figlia e agli ospiti.
I nostri lettori Anna e Giulio vorrebbero fare delle modifiche alla casa appena comprata, per migliorarne la vivibilità
Anna ci spiega: «Ci piacerebbe avere la cucina aperta sul soggiorno, che ha l’unica finestra da dove si vede il mare. Inoltre, dato che ospitiamo spesso amiche di nostra figlia adolescente, e anche nostri amici, sarebbe bello poter creare un 2° bagno».
Ecco come potrebbe diventare la vostra nuova casa, un’idea da copiare anche in città per chi ha una situazione simile.
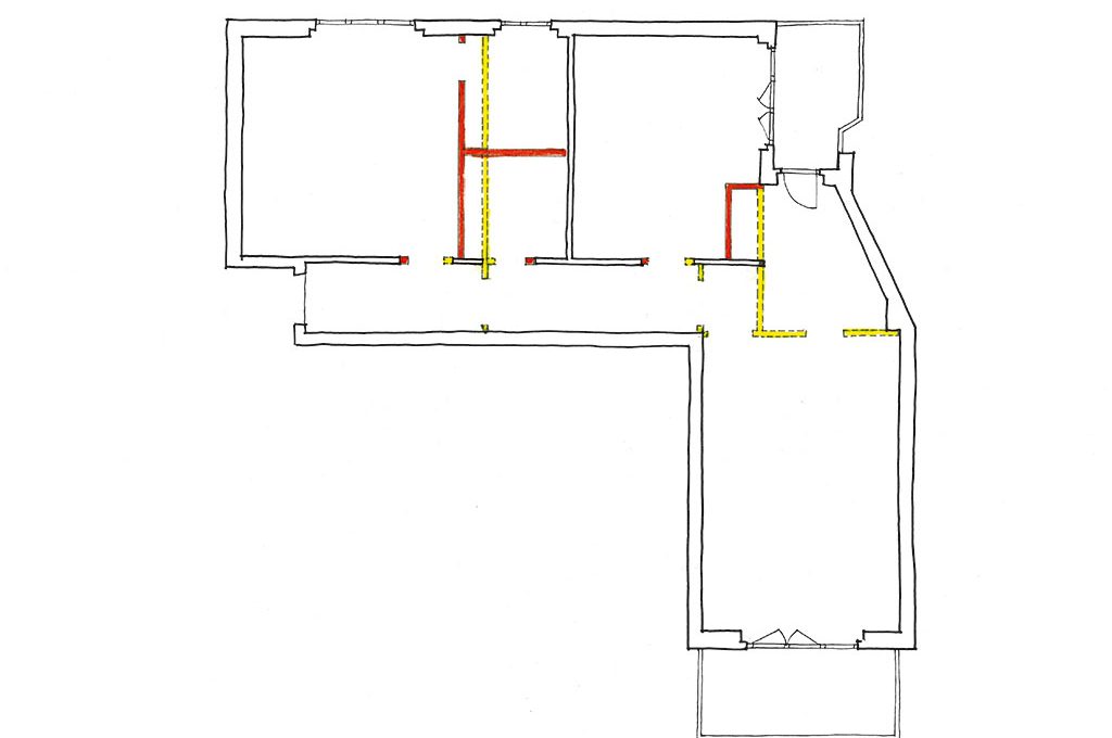
_ In effetti la cucina attualmente è un po’ sacrificata. Demolendo le 2 pareti che la delimitano si ingrandisce, acquista più luce e consente a chi cucina un contatto diretto con chi è in soggiorno. Suggerisco di creare una nicchia di cm 120x60 a lato della finestra, per frigorifero e colonna dispensa. I mobili lungo la parete inclinata, con lavastoviglie, lavello e fuochi, continuano poi con una base ad angolo retto che si affaccia sul soggiorno, che termina nell’angolo con un contenitore alto da usare come credenza, apribile verso il tavolo da pranzo.
_ Sul lungo corridoio si eliminano 2 porte ormai superflue per lasciare solo quella che divide la zona giorno. E si realizza un controsoffitto in cartongesso da usare come prezioso ripostiglio. Vi si accede da una botola nella parte iniziale e da sportelli sopraporta all’interno di bagno e camera di vostra figlia.
_ La camera della ragazza, già pensata per avere 2 letti ad angolo, armadio e angolo studio con scrivania e scaffalatura, rimane com’è, ad eccezione della nicchia a beneficio della cucina.
_ La camera matrimoniale, invece, si stringe di cm 40 per allargare lo spazio centrale dedicato ai due bagni. Oltre a letto e comodini, ha un armadio a tutta parete, che comprende un pensile sopraporta.
_ Dovendo in ogni caso rifare il bagno, come avete detto, e allargando lo spazio a disposizione fino a cm 180, creare il 2° bagno è facile. Il primo (lungo cm 200),sarà a vostro uso esclusivo con accesso diretto dalla camera matrimoniale. Comprende un’ampia doccia, mobile lavabo e i sanitari nella stessa attuale posizione. Al bagno nuovo, perfettamente quadrato, si accede dal corridoio. Ci saranno l’aspirazione forzata e, se vi piace l’idea, un vetro fisso nella parte alta della parete che lo divide dal primo (da cm 220 da terra fino al soffitto) per avere la luce naturale. Anche qui c’è lo spazio per una grande doccia e un mobile lavabo, con in più la lavatrice, e solo il wc.