Sedie Louis [Maisons du Monde
€199]. Sul tavolo: vasi [Bosa Ceramiche] e [Ravarini Castoldi];
campana [Ferm Living], centrotavola Niu [Bosa]. divani
Ektorp [Ikea da €279], poltrona Oxford [Maisons du Monde
€599], piantana [Galleria Mia], libreria [TeeBooks].
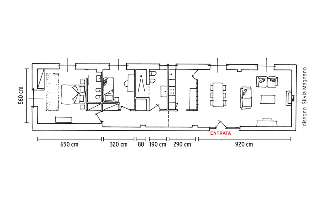
La ’stanza di vetro’ che accoglie la cucina è una soluzione che ha risvolti pratici ed estetici: ’intrappola’ fumi e vapori, alleggerisce il passaggio verso la zona notte e, in un contesto classico, rende la visuale più chic.
Letto Newport [Maisons du Monde €399], lenzuola [La Fabbrica del Lino]. lampada in ottone coll. Lanterne Marine [Moretti Luce]: sul loro sito trovi diversi modelli. In bagno, asciugamani [La Fabbrica del Lino].
A Roma, la casa di Giulio si rifà al décor Haussmaniano degli interni della capitale francese... e lo stile diventa viaggio!
Il proprietario di casa aveva un sogno: portare l’aria di Parigi alla Garbatella, nella casa acquistata al quinto piano di un edificio di epoca fascista. La sfida è stata affidata all’architetto Maurizio Vellucci dello studio Wow Architettura.
Ho sempre desiderato vivere la magia della Ville Lumière senza averlo mai potuto fare per molteplici motivi. Non ultimo il fatto che parlo un francese inaccettabile!
Le scelte fatte
Prima del relooking, l’assetto longitudinale del layout creava molte perplessità: viene eliminata così l’inutile sequenza di microstanze e si riformula un living arioso, con la cucina incapsulata in un’elegantissima scatola di vetro.
Il tocco di stile
Nella richiesta della committenza, tre ‘must’: il parquet a spina francese, un camino Luigi XVI e delle boiserie in perfetto stile Haussmann da rivisitare in chiave... mediterranea.