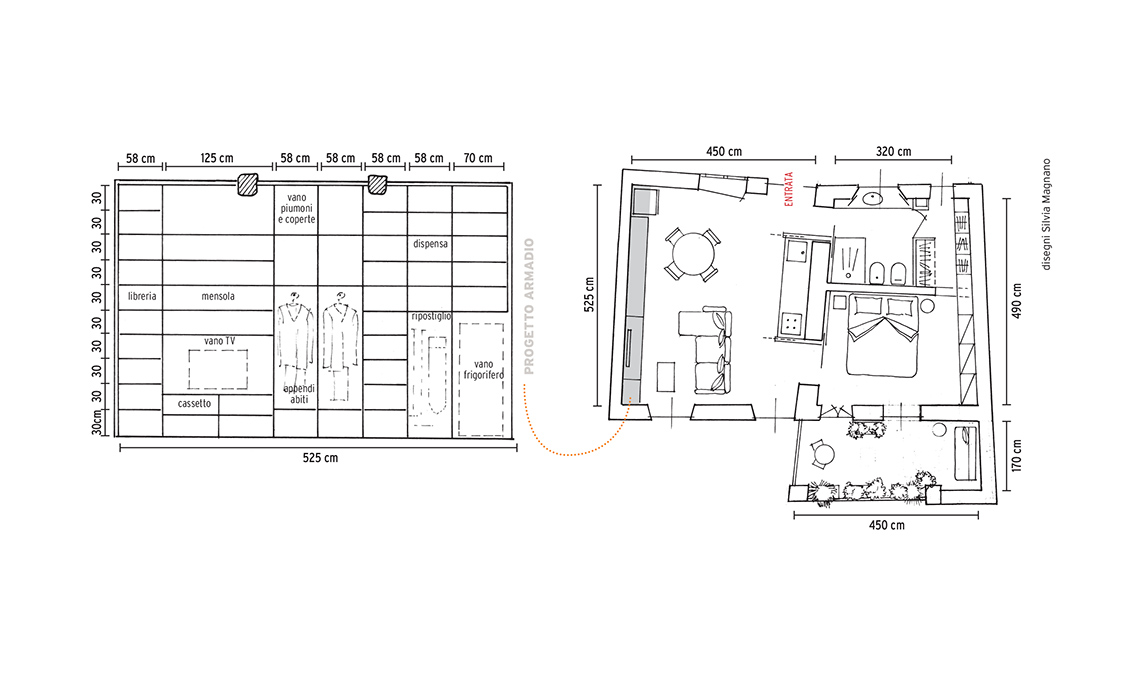
In un bilocale, lo spazio contenitivo non basta mai. Qui non solo con la cucina
a scomparsa, ma con la parete della zona giorno si è fatta una vera magia! Una struttura su misura, lunga 5 metri e alta 3 ospita molti vani, grandi e piccoli; dietro le ante, mensole, cassetti e spazi che assolvono a varie funzioni: libreria e armadio, ma anche dispensa e ripostiglio, oltre a ospitare il frigorifero e la tv.
Struttura cucina (vedi a sinistra)
realizzata su progetto di [Puntozero Architetti]; rivestimento parete della cucina Mosaico DOT nero lucido, serie Unicolor [Hisbalit].
Lo studio di architettura ha progettato
un mobile cucina in legno laccato,
con ante a battente e retrattili che
scompaiono sui due lati. Realizzata
dal falegname in legno laccato grigio
chiaro, quando è chiusa sembra
un armadio e si uniforma alla parete
attrezzata che ha di fronte.
Nessino arancione è la versione mini di Nesso, storica lampada di [Artemide]. Biancheria [La Fabbrica del Lino]; sospensione Sola [Renzo Serafini, ø cm 6x7h, cavo cm 200 max €158, lampadina globo 125 Led incl.].
Una cucina che scompare, la cabina armadio e tanti spazi contenitivi in appena 46mq... senza rinunciare allo stile. Un progetto tutto da copiare!
Nato e cresciuto a Napoli, Alberto si è trasferito a Roma pochi anni fa, dopo averla scelta come luogo dove vivere ed esercitare la sua professione.
Allora non conoscevo molto della città, ma non ho avuto dubbi che Monti potesse essere un quartiere nelle mie corde, con una vita ‘da borgo’ che mi ha subito ricordato alcune zone di Napoli a me care.
Le scelte fatte
Anche la casa di Alberto rispecchia quella autenticità che lui ricerca in tutte le cose. Il recupero studiato da Giorgio Marchese e Arianna Nobile ha riportato alla luce molti degli elementi originari dell’appartamento, come le travi in legno e le finestre d’epoca, ed è riuscito a razionalizzare spazi non ampi, rendendo gli ambienti godibili.
Il tocco di stile
Al proprietario piaceva l’idea di un mood ‘maschile’sobrio ma non banale e desiderava arredi dalle forme lineari, ai quali affiancare pochi, piccoli pezzi di famiglia. E la cucina apri-e-chiudi? È l’idea geniale degli architetti, perfetta se invita gli amici per un dopocena...