Pentole, teiere e vasetti spiccano in ogni scorcio, a partire dalla zona cottura a due soli fuochi, animando una giocosa ’collezione vissuta’ da utilizzare ogni giorno. Per non soffocare la cucina con i pensili, padelle e casseruole pendono dal telaio nudo di un vecchio lampadario!
L'avio è l'unico colore a contrasto nella casa con cui sono ridipinti dei mobili di recupero. Hai notato la libreria porta dvd sul muro inclinato? Una soluzione da barca!
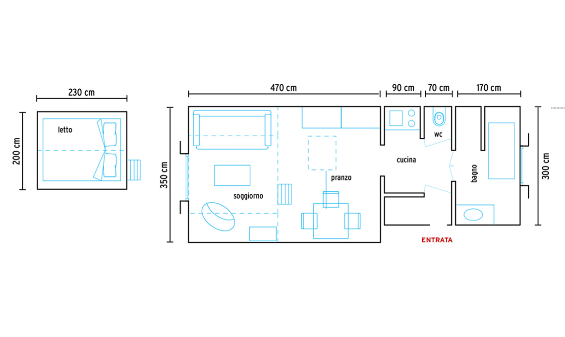
Mini casa ma senza rinunciare alle comodità: la doccia è stata sostituita da una vasca. La paretina in
vetrocemento fa da separè per creare intimità: a questo locale manca un’autentica porta, il wc è separato da due battenti a spinta, come nei saloon.
Mobiletti ridipinti, foto di ogni epoca e pezzi in latta smaltata: è la girandola di dettagli che rende unico questo nido in soffitta, scanzonato e accogliente
All’ultimo piano di una tipica villetta a schiera olandese, questo mini-appartamento ha davvero tutto quello che serve. Un bell’ingresso in cui è stata ricavata la cucina, un soggiorno romantico che ingloba zona pranzo e living, con tanto di sedia sospesa; e una camera da letto appartata sul soppalco. La scelta di introdurre alla zona acqua del bagno con una porta da saloon ha una motivazione furba: la porta permette alla luce che entra dalla finestra del bagno di raggiungere la cucina.
Basta uno sguardo per abbracciare questo succinto monolocale: qui il tempo si snoda fra il soppalco, costruito dal papà della ragazza che lo abita, e l’area intorno al divano in ferro battuto, punteggiata di accessori rétro.
L’arredo è quasi interamente recuperato fra i mercatini di diverse città europee, qualche rigattiere e... il soggiorno della mamma: da lì provengono i due mobili color avio, volutamente ridipinti nell’unica tinta a contrasto della stanza.