Spesso si parla di case prefabbricate, ma raramente si immagina il livello di lusso e comfort che possono offrire. Ci ha scritto Laura Cavalli, architetto, che ne ha costruita una per la propria famiglia sulle colline piacentine. La casa è stata "posata" a metà settembre e completata ai primi di dicembre del 2013. E Laura ci racconta passo passo come è nata.
«Durante una vacanza estiva in maremma, ci è venuta l'idea di avere una piccola casa in campagna, per rilassarci nei fine settimana e per passare le vacanze in tranquillità, lontani dalle mete più affollate, insieme al nostro Labrador. Ci sarebbe piaciuto un giardino per avere degli spazi all'aperto dove trovarci con gli amici e dove provare a coltivare piante e fiori...e magari un orto.
Ci sarebbe piaciuto trovare un luogo tranquillo, non ancora scoperto dal turismo, a poca distanza da Milano, dove risiediamo abitualmente, per andarci più spesso possibile. Mio marito ha iniziato le ricerche in Emilia, io sono originaria di Fidenza, in provincia di Parma, conosciamo bene la bellezza dei territori collinari vicini alla via Emilia: in pochi mesi siamo riusciti a trovare un incantevole angolo di campagna, nel piacentino, sui primi morbidi declivi coltivati a vigneti.
IL PROGETTO
La mia idea, subito condivisa da mio marito, è stata progettare un edificio molto semplice che ci permettesse di vivere a contatto diretto con la natura in tutte le stagioni: per questo abbiamo pensato a una costruzione a un piano solo e con grandi vetrate.
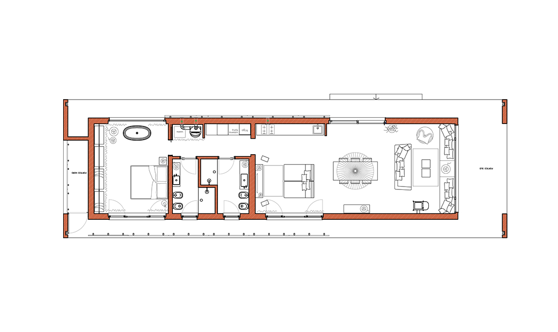
Il desiderio di avere uno spazio abitativo pienamente vivibile, comodo e accogliente, ci ha portato a definire una forma molto lineare per la planimetria dell'edificio.
Il living occupa la metà della superficie della costruzione ed è suddiviso in più zone: il soggiorno è accanto alla grande vetrata sud, da dove si abbraccia la vista di tutta la vallata. Nelle giornate invernali è piacevole sedersi sul divano o sulla panca sottofinestra, accanto al focolare, in particolare all'ora del tramonto.
Nella stanza si trovano anche una zona per la tv e la musica, e la zona pranzo con la parete cucina.
Nella seconda metà dell'edificio sono stati creati due bagni e una ampia camera da letto con due grandi vetrate orientate una ad est e l'altra ad ovest, per avere sempre la luce naturale.
TECNOLOGIA COSTRUTTIVA E IMPIANTI
L'obiettivo nelle scelte della tecnologia costruttiva era ridurre al minimo il consumo energetico, sia per ottenere un risparmio nei costi di gestione, essendo una seconda casa, sia perché desideravamo avere l'edificio in tempi brevi e con una ragionevole certezza della spesa.
La metodologia costruttiva della prefabbricazione ci ha subito interessato e ci è sembrata la scelta più soddisfacente per gli obiettivi, sia per le potenzialità di ottimizzazione del risparmio energetico, sia per la possibilità di costruire in tempi più rapidi rispetto alla metodologia tradizionale in laterizio, mantenendo i costi pattuiti con l'impresa.
Inizialmente la mia perplessità rispetto a questa tecnica era dettata dal fatto che i manufatti edificati in questo modo, visti sui siti e dal vero, hanno un aspetto più tradizionale, non stilisticamente rispondente ai nostri desideri, con tetto a due falde, porticati rustici, ecc...
Inoltre, erroneamente, pensavo che si potessero realizzare solo costruzioni preconfezionate dal loro ufficio tecnico, limitandosi a modificare le finiture interne. E invece...
Abbiamo constatato che non è così: con le case prefabbricate è possibile costruire un edificio su progetto, completamente personalizzato.
Un volta fatta una indagine tra i vari produttori di edilizia prefabbricata, abbiamo concluso un contratto che prevedeva la realizzazione completa dell'opera, con maestranze dell'impresa appaltatrice, escluse le fondazioni e le urbanizzazioni, per le quali abbiamo incaricato una impresa edile locale.
L'involucro è costituito da pareti strutturali a telaio, tamponate con uno strato di materiale termoisolante, cioè lastre in lana di roccia rivestite esternamente di pannelli in OSB ed internamente di pannelli in fibrogesso, un materiale con buona stabilità meccanica, strutturale e resistenza al fuoco.
Le pareti sono poi rivestite esternamente da un ulteriore strato di pannelli in polistirene intonacato, il cosiddetto “cappotto”.
Il solaio di copertura, piano, è in X-LAM: sono tavole strutturali composte di strati a fibre incrociate di legno incollate fino a formare uno spessore tale da essere portante e resistente come una soletta in cemento armato, fissato mediante giunti meccanici.
Esternamente, la soletta è protetta da una guaina impermeabile, da uno strato di coibentazione e infine da uno strato di calpestio di ghiaia.
L'aspetto e la forma della costruzione, dettata sia dal nostro gusto che dai vincoli della conformazione del terreno, è tale per cui l'orientamento delle vetrate verso il paesaggio e verso i punti cardinali diventa fondamentale per contribuire al comfort ambientale interno e al risparmio energetico.
La disposizione delle aperture, infatti, permette di sfruttare l'irraggiamento solare durante l'inverno per il riscaldamento degli ambienti, mentre nella stagione estiva, il frangisole esterno e il portico orientato a sud, molto profondo, proteggono dall'eccessivo riscaldamento. Inoltre, la posizione reciproca dei serramenti esterni garantisce nella stagione estiva la ventilazione naturale ed un efficace raffrescamento diurno.
L'irraggiamento naturale contribuisce insieme alla piccola stufa a legna al riscaldamento ambientale, mentre negli ambienti bagno e camera da letto è integrato con radiatori svedesi elettrici; l'acqua sanitaria è riscaldata da impianto a pompa di calore.
Il consumo di energia elettrica per gli impianti ( anche il piano cottura a induzione è elettrico) dell'edificio è più che controbilanciato dalla produzione dell'impianto fotovoltaico predisposto in copertura ( produzione annua superiore a 3.000 KW).
Nella costruzione non è stato realizzato l'allaccio alla rete di distribuzione del gas.
L'impianto di smaltimento dei reflui domestici è conforme a quanto prescritto dalla normativa della regione Emilia Romagna per le abitazioni non collegate alla rete fognaria, cioè la depurazione mediante la fossa biologica ed il percolatore anaerobico.
LA REALIZZAZIONE
Una volta ottenuti i permessi dall'amministrazione comunale e dai vari gestori delle utenze, si è iniziato con lo sbancamento e la posa delle fondazioni.
Le difficoltà maggiori sono state incontrate proprio in questa fase: essendo la costruzione in mezzo alla campagna, le difficoltà di accesso e alcuni ritardi da parte dell'impresa esecutrice, hanno rallentato la prima fase di edificazione della soletta di appoggio per l'edificio e la realizzazione degli allacci.
Una volta completata questa fase, la costruzione del prefabbricato ha richiesto pochissimo tempo, solamente due giorni per essere eseguita.
I due mesi successivi sono stati impiegati per svolgere le normali lavorazioni necessarie al completamento della costruzione: l'isolamento esterno “a cappotto”, i sottofondi, la posa degli impianti, l'esecuzione delle finiture, la posa dei serramenti dei sanitari ecc...come in un edificio di tipo tradizionale.
L'ARREDAMENTO
L'arredamento è stato pensato fin dall'inizio, insieme all'edificio. Abbiamo privilegiato nella zona giorno la possibilità di avere molte sedute e un grande tavolo da pranzo per i numerosi amici che molto spesso vengono a trovarci.
La parte operativa della cucina si trova nell'ambiente living, per condividere con gli ospiti anche i momenti della preparazione dei pasti, mentre le colonne che fungono da dispensa e gli elettrodomestici sono localizzati sulla parete del disimpegno, per alleggerire il disegno della cucina, pur mantenendone la funzionalità.
La zona di soggiorno ospita una lunga panca dove sono stati posizionati dei materassini che all'occorrenza fungono da letti per gli ospiti, ma che sono accoglienti aree di relax nelle giornate e nelle serate invernali accanto alla stufa.
Nella zona tv, abbiamo posizionato anche uno stereo per ascoltare la musica, grande passione di mio marito e due dormeuse per ospitare noi e la nostra cagnolona.
Nei bagni abbiamo scelto di non posare i rivestimenti ceramici, ma una carta da parati vinilica (resistente agli schizzi d'acqua) e un tinteggio impermeabile; le docce sono rivestire in grès porcellanato, lo stesso ad effetto legno, del pavimento.
Infine nella camera da letto, dove due pareti sono completamente vetrate, abbiamo posto un letto imbottito con contenitore, e il “canonico” armadio guardaroba è stato sostituito con una parete attrezzata nascosta da pesanti tendoni oscuranti, che proseguono come oscuramento notturno per le vetrate.
Per gli arredi abbiamo attinto a molte fonti: molti sono di Ikea, mescolati ad arredi di marchi italiani e stranieri e ad oggetti ed arredi di recupero dalla soffitta dei nonni, ma anche dalla soffitta dell'officina dei miei genitori.
GLI ESTERNI
Se inizialmente credevamo di accontentarci di un po' di erba spontanea, successivamente abbiamo capito che la possibilità di vivere all'aperto nei mesi estivi era una esigenza fondamentale, come la casa.
Quindi due anni dopo la casa è stata costruita la piscina, lunga e stretta per nuotare e giocare insieme alla nostra labrador, Gaia, che è la vera padrona di casa... La realizzazione del giardino, come anche altre cose all'interno dell'edificio, ci vede impegnati in prima persona al lavoro sulla terra: con i consigli e l'aiuto per le operazioni più pesanti dei nuovi vicini agricoltori, abbiamo creato un prato, le aree inghiaiate, le piantumazioni, l'impianto di irrigazione e quello di illuminazione ecc...
Il giardino è un progetto ancora in divenire, ma i piccoli cambiamenti fatti con le nostre mani, ci fanno apprezzare ancora di più la vita all'aperto».
