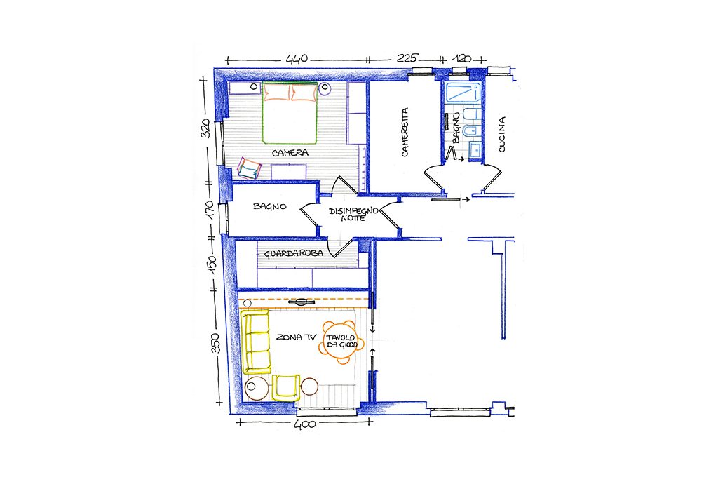
Dopo: la zona notte matrimoniale con il nuovo guardaroba; il salottino tv accessibile dal soggiorno che può farne parte grazie alla grande apertura; e il minibagno completo di tutto
Una camera da letto ampia e squadrata, tipica di molte case d'epoca, può essere razionalizzata creando una cabina armadio. Segui il nostro progetto: si parla anche di come razionalizzare un bagno di servizio
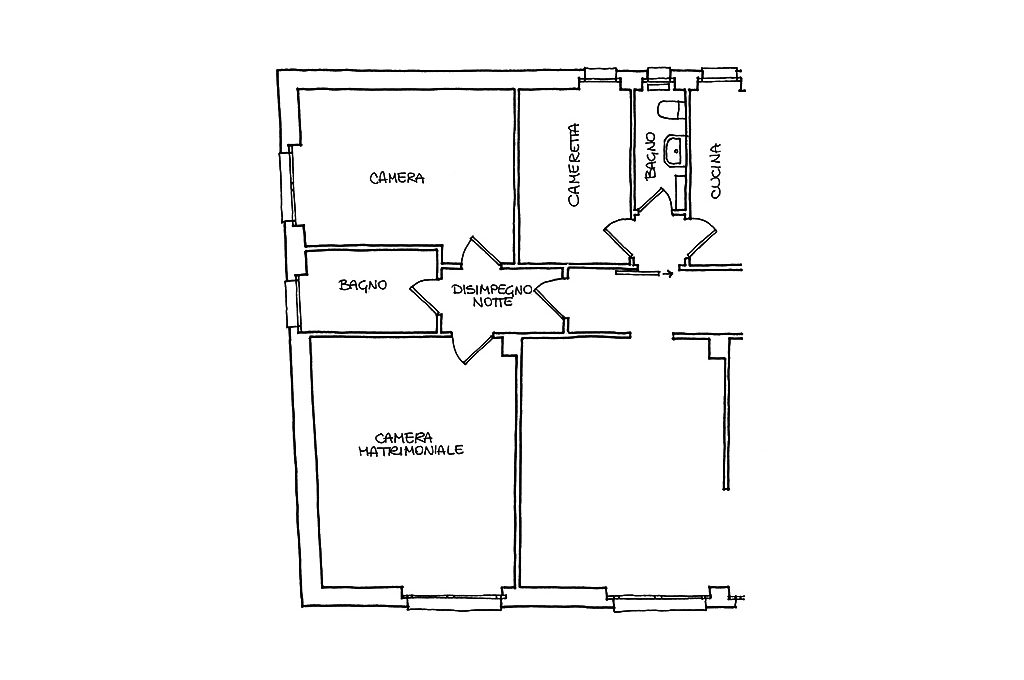
Camilla sta meditando di spostare la camera da letto nel locale di fronte, eliminando due grossi armadi per ricavare unacabina armadio. La cabina vorrebbe ricavarla in una parte dell’attuale camera. Nello spazio rimanente del nuovo locale disponibile desidera invece creare un salottino tv, accessibile dal soggiorno adiacente, da poter unire all’occorrenza. Ci chiede se sia un’idea fattibile, vuole sapere le misure per un guardaroba comodo e ben sfruttabile e spera in un consiglio su come arredare il salottino.
Un altro desiderio di Camilla riguarda il piccolo bagno di servizio vicino alla cucina: può renderlo più comodo da usare?
L'idea di Camilla è certamente realizzabile con pochi interventi in muratura sul locale da trasformare e sul bagno da allargare.
La cabina armadio, lunga quanto l’intero locale e profonda cm 150 circa, utilizza la porta esistente sul corridoio e richiede solo la costruzione di una nuova parete divisoria, anche in cartongesso. Sarà attrezzata su due lati a tutta altezza, per un totale di superficie ben maggiore agli attuali 9 mq corrispondenti ai due armadi che ci sono adesso.
Nel nuovo salottino tv è prevista un’apertura larga 2 metri, al centro della parete verso il soggiorno adiacente. Sarà chiudibile con 2 porte scorrevoli che potranno essere a vista, incassate a scomparsa rifacendo l’attuale parete, oppure mascherate da una controparete in cartongesso, come indicato nel disegno. Per l’arredamento suggeriamo un'intera parete attrezzata a libreria, lungo la parete adiacente la cabina armadio; un divano a tre posti e una poltrona, oltre al tavolo rotondo da gioco, con diametro di cm 110.
Per quanto riguarda il bagno è necessario allargarlo almeno a cm 110-120, a scapito della cucina. Sarà attrezzato con una doccia a tutta larghezza sotto la finestra, wc, bidet e lavabo. Il termosifone sotto la finestra sarà sostituito da uno scaldasalviette e la porta a battente con una pieghevole.