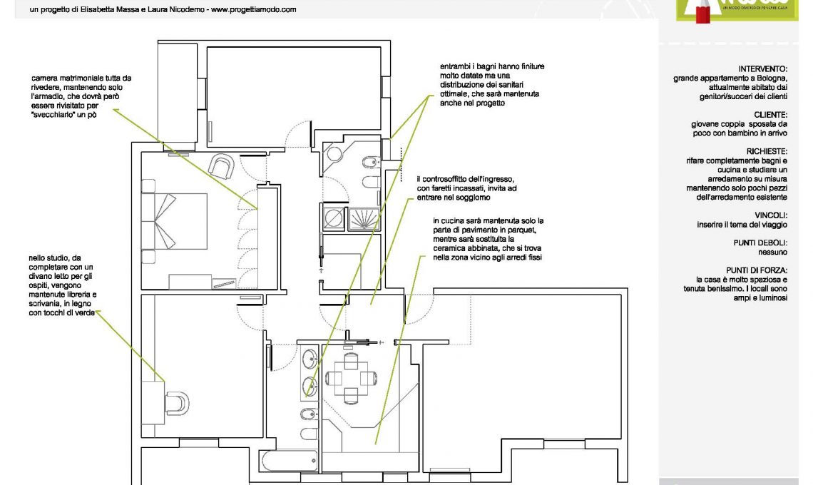
Il rifacimento dei due bagni e della cucina. La volontà di progettare interamente l'arredamento dell'appartamento che i genitori/suoceri hanno lasciato loro. Questo punto di partenza diventa una opportunità per una giovane coppia per un vero e proprio viaggio attravero il colore.
Il colore predominante, il verde, si rincorre in diversi ambienti della casa, soprattutto nella zona giorno; di grande effetto in particolare in soggiorno, in questo ambiente è affiancato ad un bel giallo senape. La parete di fondo, visibile dall'ingresso, fa da catalizzatore allo sguardo di chi entra, dando profondità.
La maggior parte dei mobili è progettata e realizzata su misura. In questo modo è possibile rispondere alla perfezione alle necessità dei clienti, oltre che ottenere una buona armonia con i pezzi di design scelti.
Il tema del viaggio è richiamato soprattutto tramite l'utilizzo di carte da parati e del colore azzurro. Questo infatti porta alla mente immediatamente immagini di cielo e mare. Il tema ricorre in modo più esplicito nello studio e nella camera del bambino, in modo evocativo in camera da letto, richiamando terre lontane.
