La cucina di Francesca era un pò datata, colori tenui, stile classico e poca luce. Si apriva sul giardino, attraverso una portafinestra. Al portico si accedeva solo seguendo il marciapiede perimetrale alla casa. Nessun collegamento diretto.
Ho cambiato un pò di cose, collegato la cucina al portico con un’ampia portafinestra, sostituito la portafinestra con una finestra alta, tolto rivestimento e giallo dalle pareti. E l'ambiente si è riempito di luce.
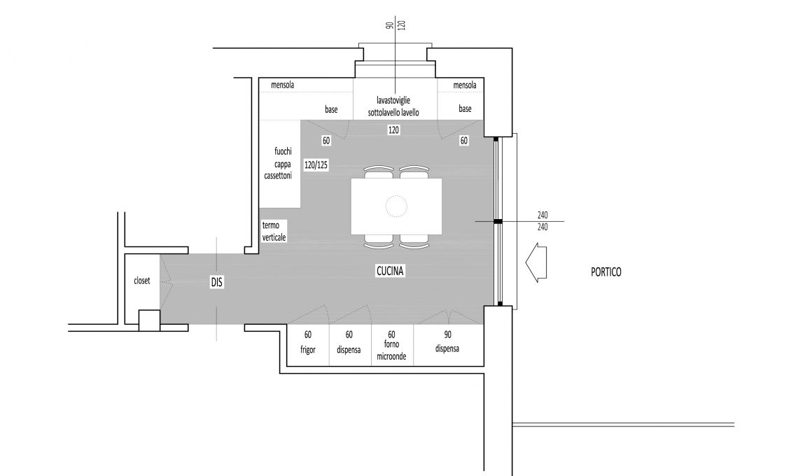
La portafinestra ampia permette l’accesso comodo al portico. Il serramento ha un’anta scorrevole su binario che evita l’ingombro della classica apertura a battente. La finestra alta consente l’affaccio sul giardino; l’apertura è doppia, a battente, utile per la pulizia, a vasistas, pratica per il ricambio dell’aria.
Mi sono ispirata a Francesca. Lei è una persona diretta, organizzata e pratica. Mi ha detto subito che la nuova cucina le sarebbe piaciuta bianca. L’ho disegnata su misura per lei. Comoda da utilizzare durante la vita quotidiana, facilmente riordinabile e contenitiva.
Nel disimpegno ho ricavato il ripostiglio, chiuso con due ante della stessa finitura della cucina. E’ utile per riporre (e per nascondere il pilastro).
Per una serie di motivi il pavimento non è stato toccato e fortunatamente per le tracce abbiamo risolto passando a parete. Le finiture moderne degli arredi permettono di alleggerire il peso del pavimento classico, il total white cattura immediatamente l’attenzione di chi entra. Il resto passa in secondo piano.
Loredana Gazzola www.homendco.it
