Sono stata contattata da una giovane coppia che per lavoro si sposta frequentemente ma che intendeva ristrutturare un piccolo appartamento (meno di 50mq netti) di famiglia in una località di mare del Lazio in cui rifugiarsi nei weekend e dove risiedere durante i non rari periodi di smart working. Quindi non una casa per vacanza ma per viverci, seppure non continuativamente, tutto l’anno.
Si tratta di una mansarda all’ultimo piano di un piccolo edificio non proprio al centro della cittadina ma vista mare, grazie ad una grande vetrata (da cui un po’ in lontananza si scorge anche il promontorio della bellissima città storica) ed a una porta finestra che si apre sul balcone. Dalle tre finestre sul lato opposto si scorgono invece le colline dell'entroterra.Planimetria dello stato di fatto prima dei lavori
Queste sono le richieste iniziali nella mail che ricevo dai clienti:
- bagno: rivedere interamente dimensioni e scarichi, togliere la vasca e inserire la doccia, la lavatrice con un mobile eventualmente che la copre, spostare il wc (adesso è avanti la porta del bagno), mettere sanitari sospesi.
- zona soggiorno: creare uno spazio con tv con il divano davanti, cercare di mascherare l'ingresso della porta del bagno (con un mobile ?), tavolo e sedie adatto anche a cene con amici.
- camera da letto: creare una cabina armadio, letto in stoffa o pelle.
- corridoio: creare una cabina armadio così da riporre le giacche e le scarpe, eventuale controsoffitto per mettere le valigie.
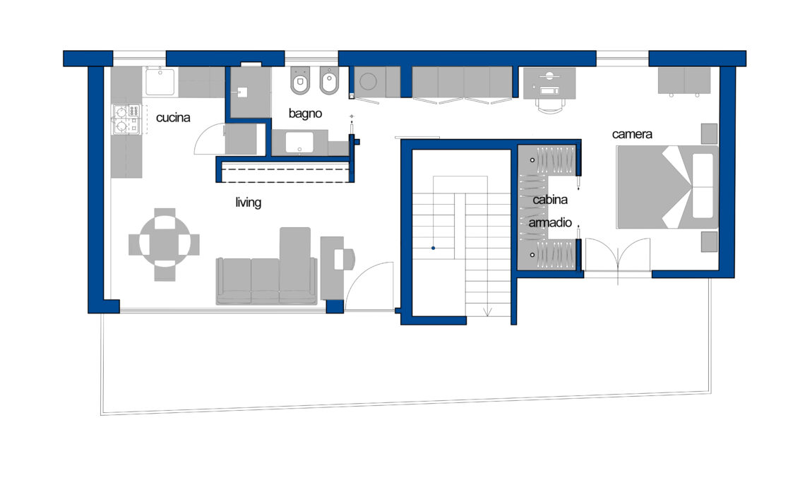
Planimetria di Progetto
Con un gioco di nicchie ho creato uno spazio per l’incasso sia della doccia nel bagno sia del frigo in cucina. Analogamente nel living ho definito la parete attrezzata per la tv con la realizzazione di due spallette.
Cucina e bagno sfruttano la luce naturale proveniente dalle due finestre preesistenti.
Attraverso una porta vetrata scorrevole esterno muro da realizzare su disegno, perché subito visibile per chi entra nell’appartamento, ed allungando leggermente la mazzetta del divisorio con il corridoio, ho creato un piccolo disimpegno da sfruttare anche per la realizzazione di un mobile lavanderia evitando così di dover collocare la lavatrice nel bagno.
Lungo il corridoio ho inserito un armadio a muro da realizzare su misura ma ho consigliato di non realizzare il soppalco richiesto per non ridurne troppo l’altezza.
La camera da letto è preceduta da una postazione di home office (l’altra è stata prevista realizzando un piccolo bancone su misura nel living in una posizione privilegiata per la vista sul borgo). In camera ho disegnato una piccola cabina armadio (richiesta specifica della cliente) con le porte a specchio per mitigare visivamente la riduzione di spazio.
Per quanto riguarda le scelte di finiture ed arredi si sono privilegiati colori chiari, utilizzo di semplici modanature e boiserie (lungo le due pareti corte del living e in camera dietro la testata del letto) per impreziosire un po’ gli ambienti e dettagli d’accento neri (lampade, rubinetti, porta in ferro).
Il progetto è stato pubblicato sul numero di Casa Facile di Dicembre 2023
