Trasformare la terrazza in un living. Questa l'idea progettuale alla base dell'intervento di ristrutturazione completa chiavi-in-mano realizzato per una giovane coppia che vive in centro a Bologna.
I nuovi proprietari di questo appartamento, amanti della musica e del giardinaggio, lo devono ristrutturare ripensandolo interamente.
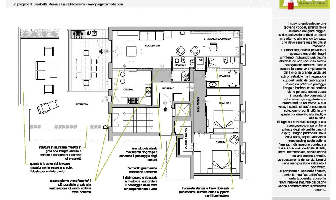
La riorganizzazione degli ambienti gira attorno alla grande terrazza, che viene resa fruibile al massimo, quasi un prolungamento del soggiorno.
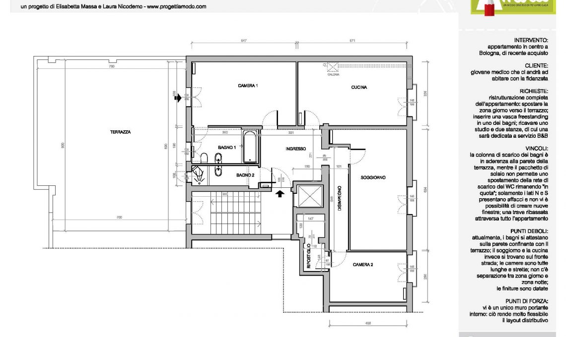
Per fare questo, è necessario rivedere completamente la distribuzione interna, giocando sul fatto che nell'appartamento è presente un solo muro portante interno. L'intervento è piuttosto impegnativo dal punto di vista impiantistico: si spostano infatti i servizi igienici e viene installato il riscaldamento a pavimento.
La casa, per volere dei committenti stessi, deve essere luminosa, retro, dai colori morbidi e dai materiali naturali. Un po' nordica, un po' parigina, un po' anni '40.
Abbiamo cercato di aiutarli soprattutto nella scelta e nella corretta messa in opera degli elementi di finitura che più si adattassero al loro gusto.

