Ristrutturazione di un piccolo appartamento con giardino

Il  progetto di cui vi parlo è quello pubblicato sul numero di Agosto 2022 di Casa Facile. Si tratta di un piccolo appartamento di  55mq ma con una grande risorsa che ha convinto il mio cliente all'acquisto: uno spazio esterno di circa 75 mq. L'appartamento, molto deteriorato, era  suddiviso in  soggiorno e camera da letto ( ambienti di circa 13 mq ciascuno), cucina, bagno, ingresso e corridoio entrambi bui ed angusti.

L'appartamento prima della ristrutturazione
 

Il progetto

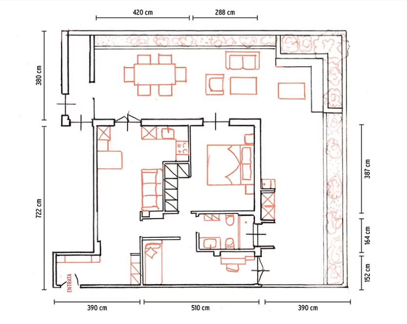
Ho ridisegnato completamente gli interni realizzando uno spazio fluido a forma di S con l'ingresso ad una delle due estremità, la cucina all'estremità opposta ed il living nella parte centrale.  Ridimensionando l'ingresso, che oggi accoglie una nicchia guardaroba, e mettendolo in comunicazione con il living  si è creato uno spazio unico, molto più luminoso, da cui appena si entra in casa si scorge subito il piccolo giardino, ma non l'area operativa della cucina, nascosta in una rientranza. Alla camera da letto principale, si accede oggi attraverso una sorta di  cabina armadio passante, mentre dove c'era la vecchia cucina è stata realizzata un'ulteriore camera ospiti/studio per lo smart working.

Planimetria di progetto con la nuova distribuzione

Materiali e dettagli

Sono stati utilizzati materiali chiari e dall'aspetto neutro (come il parquet di rovere naturale posato a 45 gradi per accentuare la continuità degli spazi ed indirizzare lo sguardo) e le piastrelle effetto cemento, ma evitando di cadere in un banale stile minimalista, che non avrebbe valorizzato l'immobile, impreziosendolo invece con elementi decor: dalla carta da parati dell'ingresso, ben visibile dal living, a quella della camera da letto (entrambe a soggetto foliage come richiamo allo spazio esterno), dalla parete grigia del soggiorno tinteggiata ricreando un effetto raso opaco, alle piastrelle color ottanio in stile marocchino nella doccia (utilizzate anche per alcuni dettagli dello spazio esterno), all'azzurro della tinteggiatura a smalto delle pareti del bagno.  
Dettaglio del bagno e delle piastrelle

Il giardino

Per il giardino sono state ridisegnate le aiuole ed è stato eliminato l'inutile gradino che circondava l'immobile per ottenere una superficie complanare da utilizzare come vera e propria estensione "en plein air" dell'appartamento. Sono  state utilizzate piastrelle in gres effetto pietra non solo per il pavimento ma anche anche per rivestire alcune porzioni degli alti muri che circondano il giardino il cui impatto si è cercato di minimizzare creando dislivelli con le aiuole rialzate e la panca in muratura. Ho scelto con cura inoltre le piante che verranno messe a dimora per accentuare il disegno architettonico dello spazio esterno e valorizzare un piccolo acero, unica pianta recuperabile tra quelle preesistenti. Un'ala del giardino ad L verrà arredata come living esterno, nell'altra è stata organizzata un'area operativa per lavatrice, asciugatrice ecc.  
Vista del giardino

La luce

Ho prestato grande cura allo studio dell' illuminazione, immaginando come mio solito, diversi scenari luminosi,  utilizzando strisce led nascoste per creare effetti suggestivi, e corpi illuminanti bianchi che quasi si mimetizzano per rendere la luce sempre  protagonista. Unica eccezione la grande lampada tessile artigianale nella zona di passaggio tra l'ingresso ed il soggiorno. Nel giardino le applique color acciaio corten accentuano la scansione del muro rivestito e faretti nelle aiuole  valorizzeranno le piante scelte.  
L'illuminazione radente valorizza e mette in evidenza la carta da parati
   

Per vedere altre immagini dell'appartamento guarda la galleria in cima all'articolo.

     
Ristrutturazione di un piccolo appartamento con giardino