Falegnamerie su misura, parquet a spina francese Listone Giordano, bagni in resina e boiserie a parete hanno ridato vita ad un appartamento che meritava di più.
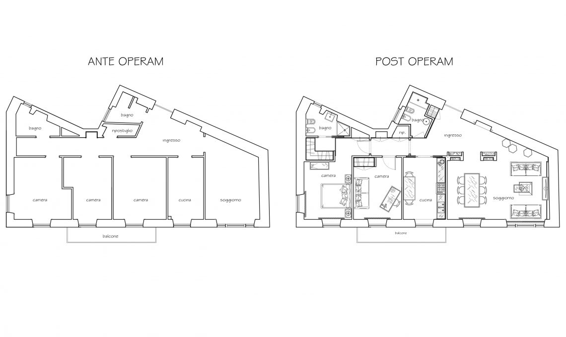
Prima del nostro intervento questo appartamento aveva il classico impianto tipico delle case dei primo ‘900 caratterizzato da un lungo corridoio e da varie stanze in successione. I clienti ci hanno chiesto di modificare la struttura per creare una casa più raccolta e accogliente in cui il salone fosse molto ampio e ben connesso con l’ingresso. La progettazione non è stata banale perché tra ingresso e salone c’erano gli impianti del sistema di riscaldamento che non era possibile spostare in alcun modo. Come cerchiamo sempre di fare nei nostri progetti, abbiamo a questo punto trasformato l’ostacolo in punto di forza con un’intuizione e un pizzico di creatività: grazie all’inserimento di due librerie bifacciali disegnate da noi, e realizzate dai nostri artigiani, abbiamo reso l’ingresso e il salone uno spazio unico e ampio, mascherando allo stesso tempo gli impianti.
Quanto agli arredi, parte integrante dei nostri lavori di ristrutturazione, abbiamo scelto di aggiungere allo stile elegante e classico pezzi di design per creare un mix fra stile classico e contemporaneo che, quando è ben calibrato, ci piace molto! L’uso accorto di una boiserie classica a parete ci ha permesso di dare eleganza e uniformità all’appartamento con soluzioni tecniche ingegnose: ad esempio la porta di un bagno all’ingresso è stata mimetizzata nella boisierie, creando una vera e propria porta invisibile, mentre la televisione è nascosta dietro due pannelli apribili.
Grazie al nostro intervento, l'appartamento a Piazza Verdi è diventato un luogo in cui si respira un’atmosfera speciale dove il passato e il presente si fondono in perfetta armonia. Le foto del progetto testimoniano la nostra capacità di trasformare gli spazi, adattandoli alle esigenze dei nostri clienti e valorizzando le loro caratteristiche specifiche. Se siete interessati a scoprire come possiamo realizzare il vostro progetto di ristrutturazione, non esitate a contattarci.
