Il progetto di restyling prevede l'uso di colori diversi per la resina a pavimento e per le pareti in modo da contribuire a legare i vari arredi dell'appartamento che saranno in parte tradizionali in legno massiccio scuro ed in parte bianchi e modern
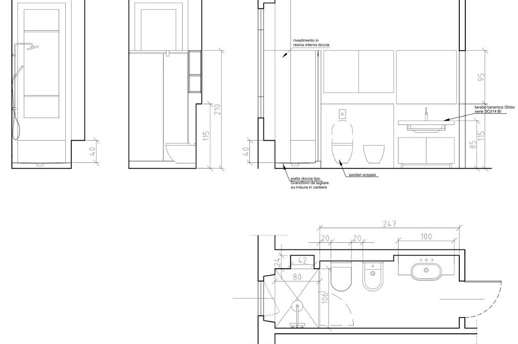
Il progetto di arredo e restyling del trilocale prevede pochi interventi di manutenzione ordinaria ed alcune scelte estetiche che contribuiscono a valorizzare i diversi ambienti presenti. In particolare il bagno è stato ripensato completamente in quanto attualmente presenta una vasca all'entrata e tutti i sanitari in successione. Vista l'esigenza di una doccia al posto della vasca si è scelto di posizionarla in fondo al vano, mentre all'entrata è collocato un lavabo ampio ed in successione i sanitari sospesi.
La cucina-pranzo è stata studiata per essere un ambiente accogliente mantenendo l'originaria disposizione degli elementi tecnici. Per la camera da letto si è optato per un sistema armadio-gaurdaroba che non fosse completamente chiuso e totalmente in linea, scegliendo quindi due elementi differenti per un uso più informale. Il soggiorno infine ha una distribuzione classica che lascia spazio anche ad una zona studio con scrivania e alcuni mobili già appartenenti alla committente.
Tutto il progetto di restyling di questo appartamento è connotato dalla composizione di colori differenti utilizzati per le pareti, per la resina della pavimentazione e per la resina sulla parete della doccia.
I colori sono stati scelti ispirandosi alle scale cromatiche che Le Corbusier realizzò per la ditta Salubra, la prima – di 43 colori – negli anni ’30 del Novecento, la seconda – di 20 colori – negli anni ’50.
A pavimento c’è una resina di un colore neutro (NCS S1005 Y10R).
Sia in camera che nel soggiorno le pareti che si vedono entrando sono caratterizzate da un colore verde (NCS S2010 G30Y), che aiuta a legare i diversi arredi che saranno presenti nell’appartamento, quelli già esistenti in legno scuro e quelli più moderni che si aggiungeranno.
Per l’area doccia si è optato per un blu ceruleo (NCS S2020 B40G), mentre le altre pareti saranno tutte più chiare (NCS S1505 Y20R).
La cucina infine ha una tonalità più accesa (NCS S2030 Y80R) solo sulla parete del piano di lavoro principale.
Il progetto è stato realizzato in collaborazione con l’arch. Francesca Corazzina consulente del colore (Color Consultant IACC)
