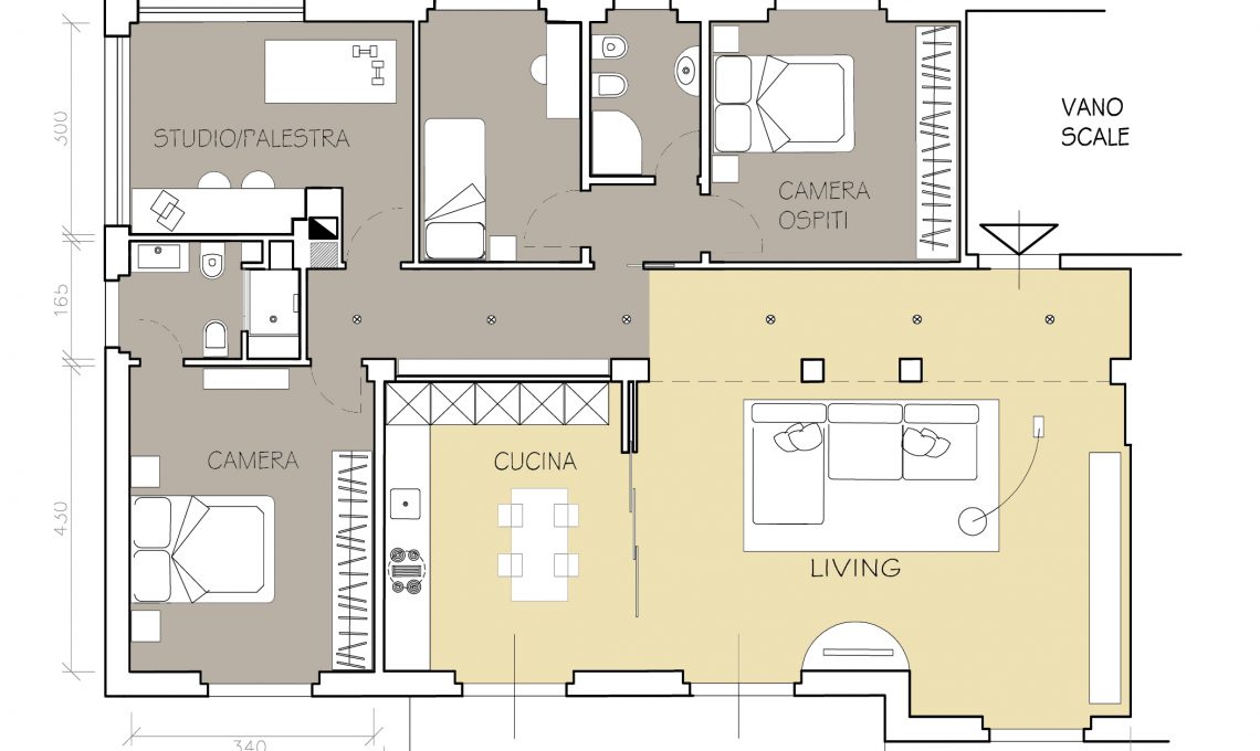
CasaFacile > Progetti > Dividere soggiorno e cucina con la parete scorrevole 11 Novembre 2019 Marconi Manuela architetto