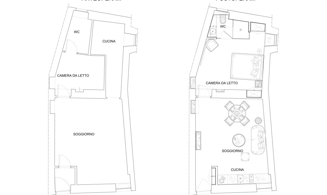
L'appartamento a Monti era un gioiellino ma con un impianto poco funzionale.
Il salotto era triste e la camera da letto completamente cieca. Abbiamo deciso di progettare una cucina aperta sul salone e una camera da letto con ampia finestra e bagno in camera anch'esso finestrato e totalmente vetrato.
Abbiamo scelto un parquet molto particolare di Listone Giordano, undici, in cui le doghe in rovere sono stampate con undici grafiche differenti, e creano un effetto davvero unico. Le pareti sono state decorate con cornici in gesso essenziali, adatte alle piccole dimensioni dell'appartamento.
Come sempre nei nostri progetti, abbiamo progettato una serie di armadi su misura per sfruttare al massimo tutte le nicchie presenti nell'appartamento. I colori scelti sono il bianco, il rovere e l'oro come richiesto dalla nostra cliente che voleva un tocco classico.
Abbiamo integrato anche delle piante, sia da interno che da esterno. I rampicanti sulla facciata stanno decorando tutto l'edificio. Inoltre, un tavolino in marmo e due sedie bistrot sulla stradina riservata e tranquilla, permettono di godersi anche lo spazio esterno.
Grazie alla nostra ristrutturazione, l'appartamento a Monti è diventato un gioiello funzionale e accogliente, in cui ogni spazio è stato sfruttato al meglio.
